Bénéficiez des services de nos partenaires locaux soigneusement sélectionnés
pour vous accompagner dans votre parcours d'achat immobilier

Appartement 3 pièces de 71,25 m² rénové, sans vis-à-vis, avec balcon et box fermé – étage élevé avec climatisation – Rue des Cha

— Villeurbanne 69100 —
335 000 €
71 m²
3 pièces
parkingbalcon/terrasseascenseur

Nos partenaires locaux
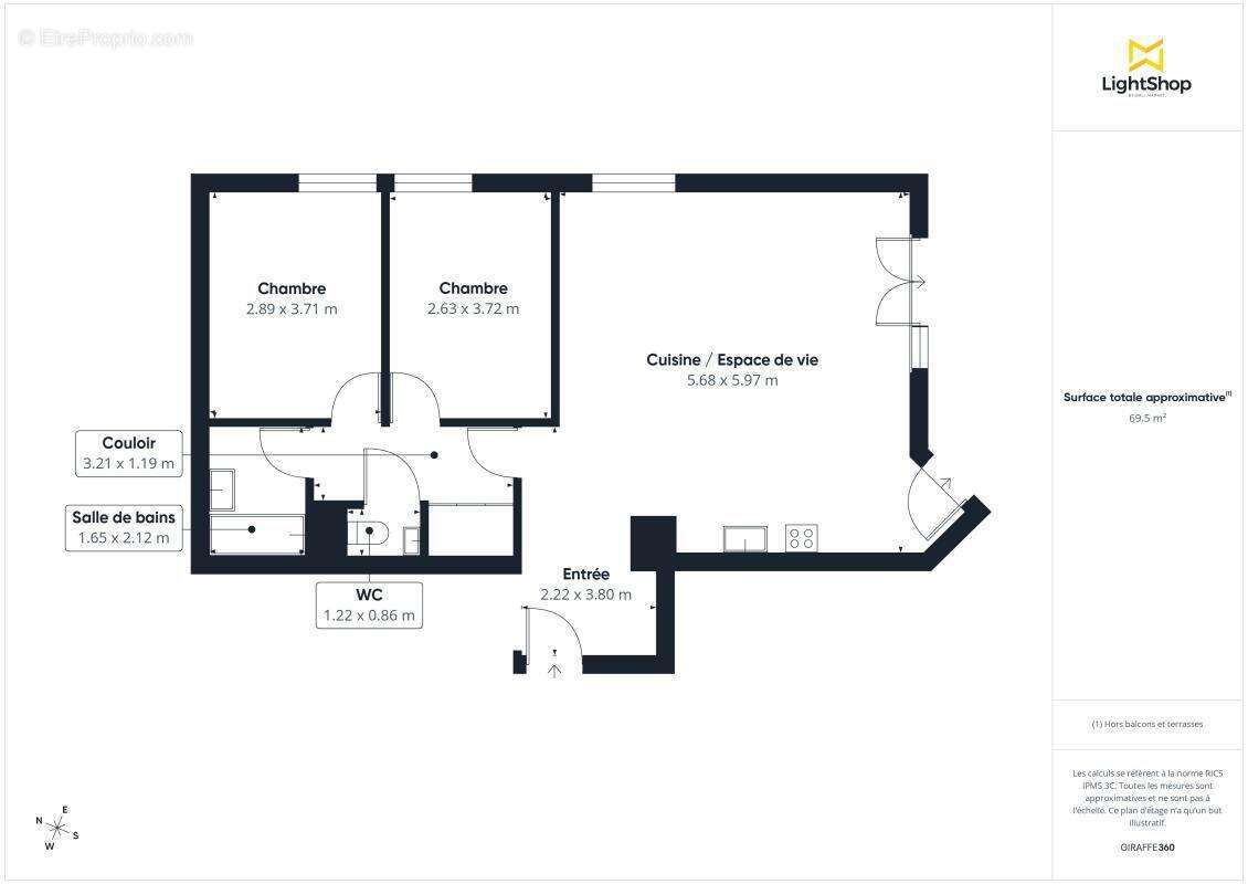
Découvrez cet appartement T3 de 71,25 m2 situé au 7ème étage sur 8 avec ascenseur d'une résidence des années 90 située Rue des Charmettes à Villeurbanne.

L'appartement sans vis-à-vis est exposé sud-est, il offre une belle luminosité et une vue dégagée.
Il a été intégralement rénové, vous n'aurez qu'à poser vos valises!
La résidence est située dans une rue calme du quartier Charpennes mais à proximité de toutes les commodités (transports, commerces, écoles etc.).
L'appartement offre un balcon, un jardin collectif clos, un local à vélos, une cave et un garage boxé pour faciliter le quotidien.

Planifiez facilement votre visite en choisissant le créneau qui vous convient depuis le site d'Hosman.

L'appartement se compose comme suit:
- une entrée avec placard
- Une belle pièce de vie lumineuse avec cuisine ouverte, moderne et équipée et donnant sur un balcon à la vue dégagée.
- Un espace nuit doté de deux chambres
- Une salle de bain et des WC séparés

Un balcon, une cave et un box complètent ce bien.
Un local à vélos est présent dans la résidence.

Le bien est soumis au statut de copropriété.
Les charges de copropriété s'élèvent à 525 € par trimestre (ascenseur, entretien des communs et des espaces verts etc.)
La taxe foncière annuelle est de 1351 €.
Le chauffage est individuel gaz. Le séjour est équipé de la climatisation.

L'arrêt de métro "Charpennes" (Lignes A et B) est à 5 minutes à pied.
La gare SNCF la Part Dieu est à 2 arrêts de métro.
Les lignes de tram T1 et T4 sont également accessibles en 5 minutes à pied.
Le parc de la Tête d'Or est à 10 minutes à pied.

Hosman s'efforce de réinventer l'agence immobilière en offrant un service innovant et transparent aux acheteurs et aux vendeurs. Nos frais d'agence sont de 8900 euros fixes à la charge du vendeur.

Si vous êtes un professionnel de l'immobilier (agent, mandataire ou chasseur immobilier), sachez que toutes les annonces Hosman sont ouvertes à la collaboration. N'hésitez pas à nous contacter pour en discuter.
Voir plus

Référence: f19399
Bien en copropriété. Nombre de lots : 29. Charges de copropriété : 175 €.
Honoraires à la charge du vendeur.
DPE
A
B
C
D
E
F
G
GES
A
B
C
D
E
F
G
Appartement à VILLEURBANNE
Appartement à VILLEURBANNE
Appartement à VILLEURBANNE
Appartement à VILLEURBANNE
Appartement à VILLEURBANNE
Appartement à VILLEURBANNE
Appartement à VILLEURBANNE
Appartement à VILLEURBANNE
Appartement à VILLEURBANNE
Appartement à VILLEURBANNE
Appartement à VILLEURBANNE
Appartement à VILLEURBANNE
Appartement à VILLEURBANNE
Appartement à VILLEURBANNE
Appartement à VILLEURBANNE
Appartement à VILLEURBANNE
Appartement à VILLEURBANNE
Géorisques

Les informations sur les risques auxquels ce bien est exposé sont disponibles sur le site Géorisques : www.georisques.gouv.fr

Ce site est protégé par hCaptcha Politique de confidentialité et Conditions d’utilisation s’appliquent.

En poursuivant votre navigation sans modifier vos paramètres, vous acceptez l'utilisation de cookies susceptibles de réaliser des statistiques de visite. Cliquez ici pour plus d'informations