Bénéficiez des services de nos partenaires locaux soigneusement sélectionnés
pour vous accompagner dans votre parcours d'achat immobilier

Vue mer, calme et jardin à Bandol – T4 en triplex de 95 m² Carrez

— Bandol 83150 —
480 000 €
95 m²
5 pièces
parking

Nos partenaires locaux
En seulement 15 mn A PIED vous êtes à la plage du Capelan, ou à celle de Rénécros, ou au centre ville de Bandol, au Tennis Padel Club et au début du sentier du littoral.

Petite copropriété de 5 appartements, pas de bruit de la route et pas de vis à vis.
Vue mer depuis la loggia et la tropézienne.
2 places de parking.

JARDIN exposé au Nord, très précieux durant les mois chauds de l'été pour pouvoir manger dehors, vous utiliserez la terrasse au SUD les autres mois de l'année.
Vous y accédez par l'extérieur ou par un escalier depuis la cuisine.

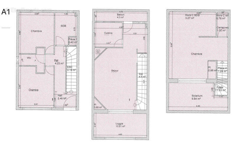
TRIPLEX
En rez de jardin : 2 chambres et 1 salle de bain - env 125 m² de JARDIN
Au 1er étage : 1 cuisine séparée, 1 grand séjour donnant sur une loggia VUE MER
Au 2e étage : une suite parentale climatisée avec salle de bains et wc et un solarium avec VUE MER

Triple exposition - Bâti isolé - la cuisine est à refaire

3 triplex et 2 T2 dans la copropriété, je peux vous les présenter.

Contactez-moi pour plus d'information Nadine Ferrier [Coordonnées masquées].
Nombre de lots de la copropriété : 4, Montant moyen annuel de la quote-part de charges (budget prévisionnel) : 940€ soit 78€ par mois. Les honoraires sont à la charge du vendeur.
Les informations sur les risques auxquels ce bien est exposé sont disponibles sur le site Géorisques : www. georisques. gouv. fr.

Réseau Immobilier CAPIFRANCE - Votre agent commercial (RSAC N°909 253 668 - Greffe de AIX EN PROVENCE) Nadine FERRIER Entrepreneur Individuel [Coordonnées masquées] - Réf.907961
Voir plus

Référence: 340933411144
Bien en copropriété. Nombre de lots : 4. Charges de copropriété : 78 €.
Honoraires à la charge du vendeur.
DPE
A
B
C
D
E
F
G
GES
A
B
C
D
E
F
G
Appartement à BANDOL
Appartement à BANDOL
Appartement à BANDOL
Appartement à BANDOL
Appartement à BANDOL
Appartement à BANDOL
Appartement à BANDOL
Appartement à BANDOL
Appartement à BANDOL
Appartement à BANDOL
Appartement à BANDOL
Appartement à BANDOL
Appartement à BANDOL
Appartement à BANDOL
Appartement à BANDOL
Appartement à BANDOL
Géorisques

Les informations sur les risques auxquels ce bien est exposé sont disponibles sur le site Géorisques : www.georisques.gouv.fr

Ce site est protégé par hCaptcha Politique de confidentialité et Conditions d’utilisation s’appliquent.

En poursuivant votre navigation sans modifier vos paramètres, vous acceptez l'utilisation de cookies susceptibles de réaliser des statistiques de visite. Cliquez ici pour plus d'informations