Comme une maison: 4 pièces avec 141 m2 de jardin résidence récente

— Choisy-Le-Roi 94600 —
335 000 €
82 m²
4 pièces
parkingbalcon/terrasse

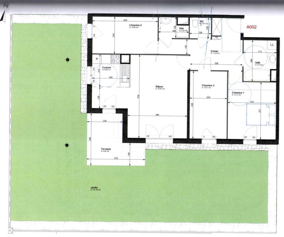
Vous hésitez entre une maison et un appartement ? Ce bien est le compromis idéal. Situé au sein d’une résidence récente, sécurisée et bien entretenue de 2016, et à 5mn à pied du tramway, cet appartement en rez-de-jardin vous séduira par ses volumes et son extérieur exceptionnel de 141 m2, offrant un véritable cadre de vie comparable à celui d’une maison. Il se compose d’une entrée, d’un séjour lumineux, d’une cuisine équipée indépendante (avec possibilité d’ouverture selon vos envies), ainsi que de trois chambres donnant toutes sur le jardin, garantissant calme et confort au quotidien. L’espace nuit est complété par une salle de bains avec WC, une salle d’eau ainsi que des WC séparés. Un stationnement en sous-sol vient parfaire ce bien. Côté confort : les charges incluent l’eau froide, l’eau chaude et le chauffage, avec compteurs individuels, vous permettant de maîtriser précisément votre consommation. Un bien rare sur le secteur, à proximité des commerces, des transports, idéal pour une famille ou pour ceux qui recherchent les avantages d’une maison sans les contraintes.
Cette annonce vous est proposée par BESCHNIDT Andreas - SAS - NoRSAC: 753511872, Enregistré à Greffe du tribunal de commerce de CRETEIL - Annonce rédigée et publiée par un Agent Mandataire -
Voir plus

Référence: 104314
Bien en copropriété. Nombre de lots : 219. Charges de copropriété : 3550 €.
Barème des honoraires
DPE
A
B
C
D
E
F
G
GES
A
B
C
D
E
F
G
Appartement à CHOISY-LE-ROI
Appartement à CHOISY-LE-ROI
Appartement à CHOISY-LE-ROI
Appartement à CHOISY-LE-ROI
Appartement à CHOISY-LE-ROI
Appartement à CHOISY-LE-ROI
Appartement à CHOISY-LE-ROI
Appartement à CHOISY-LE-ROI
Appartement à CHOISY-LE-ROI
Appartement à CHOISY-LE-ROI
Appartement à CHOISY-LE-ROI
Appartement à CHOISY-LE-ROI
Appartement à CHOISY-LE-ROI
Géorisques

Les informations sur les risques auxquels ce bien est exposé sont disponibles sur le site Géorisques : www.georisques.gouv.fr

Ce site est protégé par hCaptcha Politique de confidentialité et Conditions d’utilisation s’appliquent.

En poursuivant votre navigation sans modifier vos paramètres, vous acceptez l'utilisation de cookies susceptibles de réaliser des statistiques de visite. Cliquez ici pour plus d'informations