Bénéficiez des services de nos partenaires locaux soigneusement sélectionnés
pour vous accompagner dans votre parcours d'achat immobilier

Paris 10ème - Appartement 4 pièces traversant

— Paris-10e 75010 —
660 000 €
65 m²
4 pièces

Nos partenaires locaux
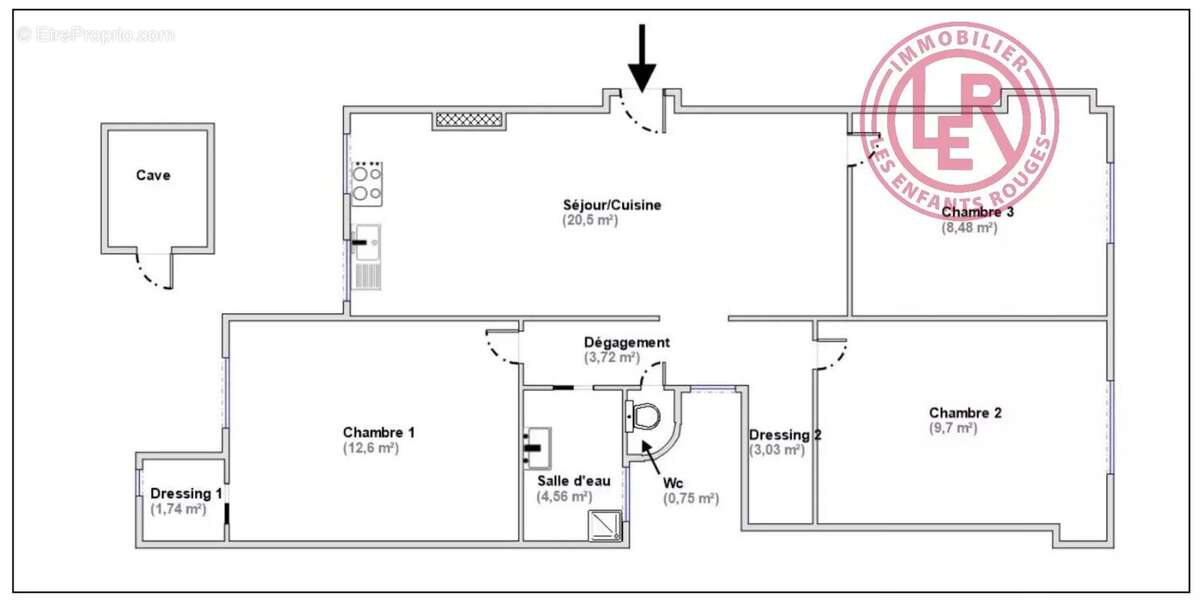
EXCLUSIVITÉ. À proximité immédiate du Marché Saint‑Quentin, Rue des Petits Hôtels, dans un immeuble du début du XXᵉ siècle, au troisième étage, appartement traversant rue / cour d’une surface de 65 m² Carrez. Il se compose de : un séjour exposé Sud avec deux grandes fenêtres et cuisine américaine équipée (20,5 m²), trois chambres (dont une avec petit dressing), un dressing supplémentaire, une salle d’eau avec coin buanderie, WC séparés, Une cave complète ce bien. Rack à vélos dans la cour.
Plan optimisé, avec possibilité de supprimer une chambre afin de créer un grand séjour traversant Sud-Nord (pour une surface d'environ 30 m²).
Appartement lumineux et ensoleillé. Copropriété saine, avec plusieurs travaux importants déjà réalisés : toiture, ravalement de façade, assainissement des caves.

Les informations sur les risques auxquels ce bien est exposé sont disponibles sur le site Géorisques : www.georisques.gouv.fr
Agent commercial immatriculé au Registre spécial des agents commerciaux du greffe du tribunal de commerce de Paris sous le numéro 798 425 583 00019.9.
Voir plus

Référence: 86893659
DPE
A
B
C
D
E
F
G
GES
A
B
C
D
E
F
G
Appartement à PARIS-10E
Appartement à PARIS-10E
Appartement à PARIS-10E
Appartement à PARIS-10E
Appartement à PARIS-10E
Appartement à PARIS-10E
Appartement à PARIS-10E
Appartement à PARIS-10E
Appartement à PARIS-10E
Appartement à PARIS-10E
Appartement à PARIS-10E
Géorisques

Les informations sur les risques auxquels ce bien est exposé sont disponibles sur le site Géorisques : www.georisques.gouv.fr

Ce site est protégé par hCaptcha Politique de confidentialité et Conditions d’utilisation s’appliquent.

En poursuivant votre navigation sans modifier vos paramètres, vous acceptez l'utilisation de cookies susceptibles de réaliser des statistiques de visite. Cliquez ici pour plus d'informations