Bénéficiez des services de nos partenaires locaux soigneusement sélectionnés
pour vous accompagner dans votre parcours d'achat immobilier

SOUS OFFRE D'ACHAT - Varennes-Vauzelles – Maison 3 chambres sur sous-sol complet – Terrain clos 562 m²

— Varennes-Vauzelles 58640 —
153 900 €
80 m² / 562 m²
4 pièces
parking

Nos partenaires locaux
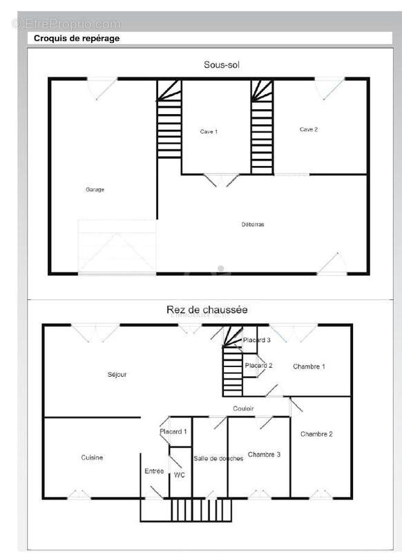
À deux pas de Nevers, côté campagne — le calme sans l'isolement. Idéalement située à Varennes-Vauzelles, aux portes de la campagne, cette maison de plain-pied sur sous-sol total vous offre un cadre de vie serein, sans vis-à-vis, entre verdure et commodités à portée de main. Ici, on rentre chez soi et on souffle. Au rez-de-chaussée, un beau séjour/cuisine lumineux de 42 m² donne le ton : de l'espace, de la lumière, de la vie. Trois chambres bien dimensionnées (9,7 m², 9 m² et 12 m²), un couloir, une salle d'eau et un WC complètent ce niveau pensé pour le confort du quotidien. En sous-sol, un espace généreux et polyvalent : garage avec porte motorisée, buanderie, deux caves et un débarras. De quoi ranger, bricoler, organiser — sans jamais manquer de place. Dehors, un terrain clos de 562 m² vous attend, verdoyant. Un jardin où il fait bon profiter des beaux jours. Les petits plus qui changent tout : fibre optique, volets roulants électriques, porte de garage motorisée. Taxe foncière : 1 281 €/an. Et demain ? Classée E au DPE, cette maison présente un beau potentiel énergétique : isolation des murs par l'extérieur — éligible à MaPrimeRénov' — et projection dans les combles permettraient d'atteindre la classe C. La projection en combles est quant à elle en partie accessible via le dispositif à 1€. Un audit énergétique est disponible sur demande. Pour les acquéreurs qui souhaitent personnaliser leur bien et maîtriser leur facture sur le long terme, c'est une vraie opportunité. Surface utile totale : 154,5 m²
Voir plus

Référence: 34665
Honoraires à la charge du vendeur.
Barème des honoraires
DPE
A
B
C
D
E
F
G
GES
A
B
C
D
E
F
G
Maison à VARENNES-VAUZELLES
Maison à VARENNES-VAUZELLES
Maison à VARENNES-VAUZELLES
Maison à VARENNES-VAUZELLES
Maison à VARENNES-VAUZELLES
Maison à VARENNES-VAUZELLES
Maison à VARENNES-VAUZELLES
Maison à VARENNES-VAUZELLES
Maison à VARENNES-VAUZELLES
Maison à VARENNES-VAUZELLES
Maison à VARENNES-VAUZELLES
Maison à VARENNES-VAUZELLES
Maison à VARENNES-VAUZELLES
Maison à VARENNES-VAUZELLES
Maison à VARENNES-VAUZELLES
Maison à VARENNES-VAUZELLES
Maison à VARENNES-VAUZELLES
Maison à VARENNES-VAUZELLES
Géorisques

Les informations sur les risques auxquels ce bien est exposé sont disponibles sur le site Géorisques : www.georisques.gouv.fr

Ce site est protégé par hCaptcha Politique de confidentialité et Conditions d’utilisation s’appliquent.

En poursuivant votre navigation sans modifier vos paramètres, vous acceptez l'utilisation de cookies susceptibles de réaliser des statistiques de visite. Cliquez ici pour plus d'informations