Bénéficiez des services de nos partenaires locaux soigneusement sélectionnés
pour vous accompagner dans votre parcours d'achat immobilier

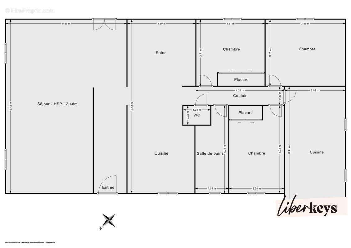
Saint rémy - villa plain pied non mitoyenne - salon 40 m² - 3 chambres - buanderie - 1185 m² terrain

— Saint-Remy 71100 —
258 000 €
123 m² / 1 185 m²
5 pièces
balcon/terrassejardin

Nos partenaires locaux
SAINT RÉMY,
en EXCLUSIVITÉ, votre agent immobilier local Liberkeys, Cyrille Bordet [Coordonnées masquées] vous propose à la vente.
*localisation : Située dans un quartier calme et résidentiel de Saint-Rémy, la maison se trouve à proximité des commerces, écoles et services( hôpitaux), avec des axes de circulation faciles pour rejoindre les pôles d'emploi locaux.
*l'habitation principale d'une superficie de 123.90 m² de plain pied :
- une grande pièce de vie de 40 m²,
- une cuisine spacieuse de 16 m² ouvert sur un salon de 10.50 m²,
- 3 chambres,
- 1 salle de bains et
- 1 toilette séparé
* la maison possède une buanderie de 17 m² équipée d'arrivées d'eau( MAL, évier).

* les + :
- 2 terrasses exposées Est et Ouest,
- terrain clos avec des haies, un portail et un portillon,
- une grande cour à l'avant, jardin,
- pas de mitoyenneté

la maison est équipée d'une PAC et d'un ballon thermodynamique : économie d'énergie.( voir DPE)

Ce bien vous plaît ? Visitez-le virtuellement en 3D sur le site de Liberkeys ou contactez directement votre conseiller. Bordet Cyrille, agent commercial immatriculé au RSAC de Mâcon sous le numéro 981 392 012. Référence annonce : DOM27781. Date de réalisation du diagnostic : 28/10/2025. Les honoraires sont à la charge du vendeur.
Voir plus

Référence: DOM27781
Honoraires à la charge du vendeur.
DPE
A
B
C
D
E
F
G
GES
A
B
C
D
E
F
G
Maison à SAINT-REMY
Maison à SAINT-REMY
Maison à SAINT-REMY
Maison à SAINT-REMY
Maison à SAINT-REMY
Maison à SAINT-REMY
Maison à SAINT-REMY
Maison à SAINT-REMY
Maison à SAINT-REMY
Maison à SAINT-REMY
Maison à SAINT-REMY
Maison à SAINT-REMY
Maison à SAINT-REMY
Géorisques

Les informations sur les risques auxquels ce bien est exposé sont disponibles sur le site Géorisques : www.georisques.gouv.fr

Ce site est protégé par hCaptcha Politique de confidentialité et Conditions d’utilisation s’appliquent.

En poursuivant votre navigation sans modifier vos paramètres, vous acceptez l'utilisation de cookies susceptibles de réaliser des statistiques de visite. Cliquez ici pour plus d'informations