Bénéficiez des services de nos partenaires locaux soigneusement sélectionnés
pour vous accompagner dans votre parcours d'achat immobilier

Appartement T3 Duplex – Dernier étage avec vue dégagée – Proche Tramway T2 Pont de Bezons

— Bezons 95870 —
189 000 €
66 m²
3 pièces
parkingbalcon/terrasseascenseur

Nos partenaires locaux
Bienvenue chez Abriculteurs, l'agence familiale qui s'engage à un service d'exception. Découvrez une présentation soignée de ce bien : des photos pro, un plan détaillé et une visite virtuelle immersive pour vous projeter. Faites confiance à notre expertise pour transformer vos projets immobiliers en réussites remarquables.

Un dernier étage avec vue dégagée

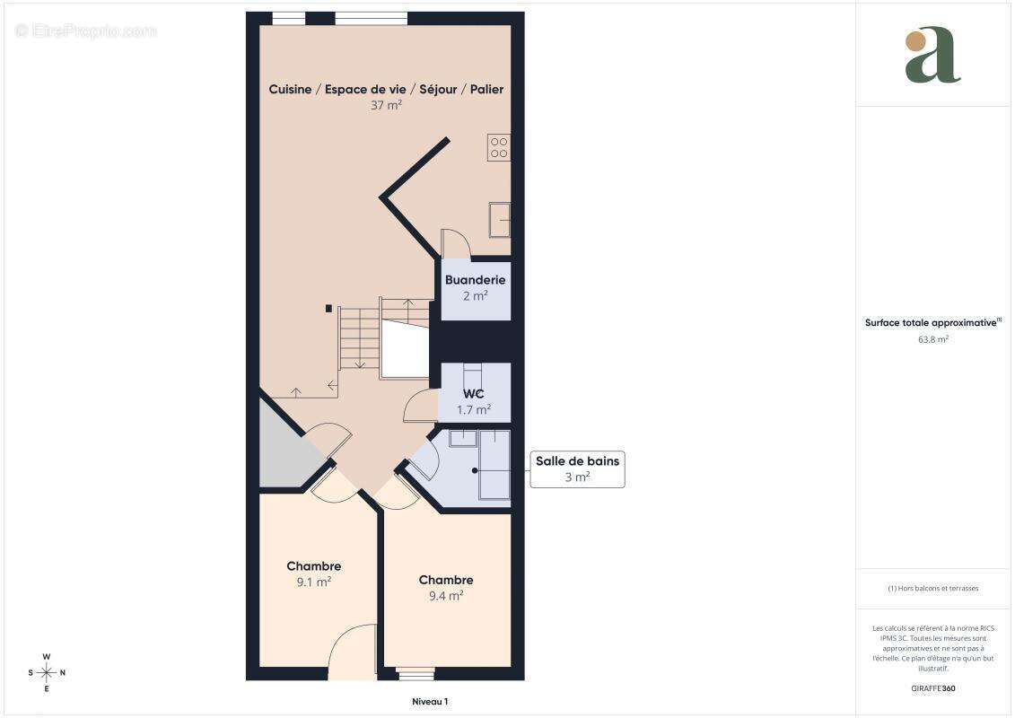
Perché au 8ème et dernier étage, ce duplex singulier offre une belle perspective et une tranquillité absolue, loin des rumeurs de la rue. Cet espace de vie lumineux se distingue par son agencement atypique en cascade.

Dès l'entrée, un sas vous accueille avant de dévoiler, après quelques marches, une vaste pièce de vie de plus de 30m². Cet espace de réception chaleureux intègre une cuisine ouverte — que vous pouvez choisir de cloisonner selon vos envies — un cellier pratique et un coin bureau dédié au télétravail.
Le niveau supérieur est consacré à l'espace nuit. Une pièce palière distribue deux chambres confortables ouvrant sur un jardin d'hiver attenant et un placard intégré. Une salle de bains et des toilettes indépendantes complètent cet étage pour un confort optimal.

Environnement et Localisation
Situé Robert Branchard à Bezons (95870), cet appartement bénéficie d'un emplacement privilégié dans un quartier bien desservi et recherché. Le Tramway T2 « Pont de Bezons » est à quelques minutes à pied, permettant de rejoindre aisément la Défense ainsi que Paris. Vous profitez également d'un accès rapide à l'A86, ce qui facilite vos déplacements en voiture. À proximité immédiate, vous trouverez commerces, écoles, et espaces verts comme le Parc de l'Île Marante, offrant un cadre de vie agréable entre ville et nature.

Les + du bien :
Dernier étage assurant calme et luminosité exceptionnelle.
Agencement en duplex offrant de beaux volumes et une séparation nette jour/nuit.
Emplacement stratégique proche des transports (T2) et des axes routiers (A86).

À noter :
VENDU LOUE (idéal investisseur).
Surface : 66m² Carrez (71m² au sol).
Stationnement : Une place de parking en sous-sol incluse.
DPE : Classe E.
Consommation conventionnelle (kWhEP/m2.an) : E (314)
Estimation des émissions (kg CO2/m2.an) : C (12)
Coût annuel de l'énergie minx / max : 2050-2810 €
Année de référence des prix : 2021, 2022, 2023
Copropriété : Immeuble de 1979
Nombre de lots à usage d'habitation : 63
Type de chauffage : Collectif
Charges : Incluent le chauffage au sol, l'eau chaude et l'eau froide.

Les informations sur les risques auxquels ce bien est exposé sont disponibles sur le site Géorisques : www.georisques.gouv.fr

Annonce rédigée sous la responsabilité éditoriale de Mme Audrey HEISER, agent commercial (EI), immatriculé au RSAC de PONTOISE sous le n° 517 949 368, agissant pour le compte de la SARL Abriculteurs immobilier, au capital de 5 000 €, immatriculée sous le SIREN n° 837 704 584, titulaire de la carte professionnelle n° CPI 75[Coordonnées masquées]25 842 délivrée par la CCI de Paris Île-de-France, dont le représentant légal est M. Adrien Piot, ayant son siège social au 12 rue des Halles, 75001 Paris.
Les informations sur les risques auxquels ce bien est exposé sont disponibles sur le site www.georisques.gouv.fr

Audrey HEISER
EI • RSAC PONTOISE 517 949 368
Voir plus

Référence: AHVA07046695870_1
Bien en copropriété. Nombre de lots : 72. Charges de copropriété : 267 €.
Honoraires à la charge du vendeur.
Barème des honoraires
DPE
A
B
C
D
E
F
G
GES
A
B
C
D
E
F
G
Appartement à BEZONS
Appartement à BEZONS
Appartement à BEZONS
Appartement à BEZONS
Appartement à BEZONS
Appartement à BEZONS
Appartement à BEZONS
Appartement à BEZONS
Appartement à BEZONS
Appartement à BEZONS
Appartement à BEZONS
Appartement à BEZONS
Appartement à BEZONS
Appartement à BEZONS
Appartement à BEZONS
Appartement à BEZONS
Appartement à BEZONS
Appartement à BEZONS
Appartement à BEZONS
Géorisques

Les informations sur les risques auxquels ce bien est exposé sont disponibles sur le site Géorisques : www.georisques.gouv.fr

Ce site est protégé par hCaptcha Politique de confidentialité et Conditions d’utilisation s’appliquent.

En poursuivant votre navigation sans modifier vos paramètres, vous acceptez l'utilisation de cookies susceptibles de réaliser des statistiques de visite. Cliquez ici pour plus d'informations