Bénéficiez des services de nos partenaires locaux soigneusement sélectionnés
pour vous accompagner dans votre parcours d'achat immobilier

Appartement T3/4 avec terrasse intérieure

— Marseille-1e 13001 —
246 000 €
72 m²
4 pièces
balcon/terrasse

Nos partenaires locaux
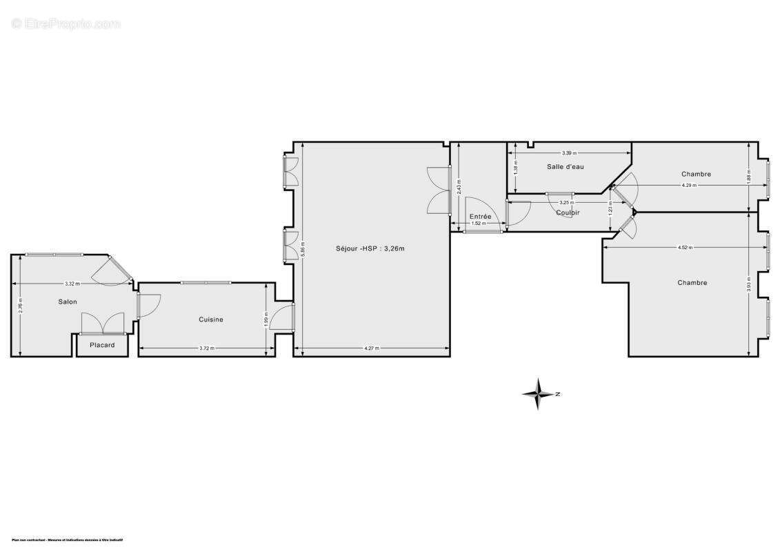
Situé en plein cœur du centre-ville de Marseille, dans un quartier vivant et à 5 minutes à pied du Vieux-Port à proximité immédiate des commerces, transports et toutes commodités, cet appartement de 72 m² offre de beaux volumes et un fort potentiel d'aménagement.
Il se compose de :
-Un séjour spacieux
-Deux chambres
-Un bureau (idéal télétravail ou chambre d'appoint)
-Une cuisine indépendante
-Une salle d'eau
-Une agréable terrasse intérieure, rare en centre-ville
L'appartement nécessite un rafraîchissement et une remise au goût du jour, offrant ainsi une belle opportunité de le repenser selon vos envies. Ses volumes généreux et sa configuration permettent d'envisager différentes possibilités d'aménagement.
Idéal pour :
Un projet de résidence principale personnalisée
Un investissement locatif (travaux à prévoir)
Un amateur de rénovation en quête d'un bien à fort potentiel
Emplacement central, vie de quartier dynamique
Extérieur appréciable
Beaux volumes

Un bien avec du caractère qui saura séduire les acquéreurs en quête d'un projet à façonner.
Une chambre de bonne vient compléter ce bien.

Annonce rédigée et publiée par Alice Manic
Mandataire immobilier indépendant - Agent commercial du réseau Valmi Expert
Immatriculation RSAC de Marseille : 834849168
RCP : RCACO-25-031167
Titulaire de la carte professionnelle CPI51[Coordonnées masquées]00006

Les honoraires sont à la charge du vendeur
Date et réalisation du diagnostic : 07/04/2025

Montant estimé des dépenses annuelles d'énergie pour un usage standard : entre 1120€ et 1560€ par an (prix moyen des énergies indexés sur les années 1er Janvier 2021)
Voir plus

Référence: 260308-173410
Bien en copropriété.
Honoraires à la charge du vendeur.
DPE
A
B
C
D
E
F
G
GES
A
B
C
D
E
F
G
Appartement à MARSEILLE-1E
Appartement à MARSEILLE-1E
Appartement à MARSEILLE-1E
Appartement à MARSEILLE-1E
Appartement à MARSEILLE-1E
Appartement à MARSEILLE-1E
Appartement à MARSEILLE-1E
Appartement à MARSEILLE-1E
Appartement à MARSEILLE-1E
Appartement à MARSEILLE-1E
Appartement à MARSEILLE-1E
Appartement à MARSEILLE-1E
Appartement à MARSEILLE-1E
Géorisques

Les informations sur les risques auxquels ce bien est exposé sont disponibles sur le site Géorisques : www.georisques.gouv.fr

Ce site est protégé par hCaptcha Politique de confidentialité et Conditions d’utilisation s’appliquent.

En poursuivant votre navigation sans modifier vos paramètres, vous acceptez l'utilisation de cookies susceptibles de réaliser des statistiques de visite. Cliquez ici pour plus d'informations