Situées proche centre-ville de Suresnes, nous vous proposons une surface de bureaux à la vente. Possibilités de normes PMR

— Suresnes 92150 —
226 200 €
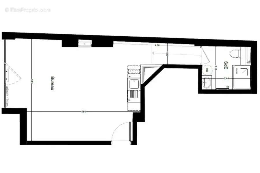
38 m²
parking

Immeuble mixte en cours de réhabilitation. Parties communes de standing. Accès PMR Interphone Accès sécurisé par badge Chauffage immeuble gaz Un lot donnant sur rue et un autre donnant sur un patio intérieur. Sanitaires privatifs et kitchenette. Chauffage électrique. Parkings en sus.

Référence: 9662
Honoraires d'agence de 7% à la charge de l'acquéreur
Commerce à SURESNES
Commerce à SURESNES
Commerce à SURESNES
Commerce à SURESNES
Géorisques

Les informations sur les risques auxquels ce bien est exposé sont disponibles sur le site Géorisques : www.georisques.gouv.fr

Ce site est protégé par hCaptcha Politique de confidentialité et Conditions d’utilisation s’appliquent.

En poursuivant votre navigation sans modifier vos paramètres, vous acceptez l'utilisation de cookies susceptibles de réaliser des statistiques de visite. Cliquez ici pour plus d'informations