Bénéficiez des services de nos partenaires locaux soigneusement sélectionnés
pour vous accompagner dans votre parcours d'achat immobilier

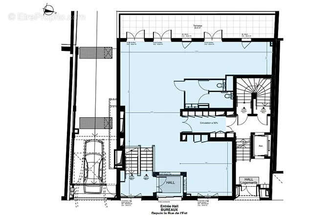
Corpimmo vous propose à la location plusieurs plateaux de bureaux situé en plein cœur de Boulogne-Billancourt et, offrant une gr

— Boulogne-Billancourt 92100 —
8 163 400 €
833 m²
ascenseur

Nos partenaires locaux
À proximité du métro. Immeuble restructuré livré en septembre 2026. Parties communes en très bon état. Contrôle d'accès, badges et visiophone. Immeuble relié à la fibre optique. Ascenseur desservant le parking. Accessibilité PMR. Plateaux traversants. Cloisonnement facile et modulable. 2 sanitaires par plateaux dont 1 PMR. Hauteur libre minimal : 2,50 m. Possibilité de division : Duplex RDC + RDJ : 390,50 m². Duplex 1er et 2è étages : 442,50 m². Climatisation réversible (système DRV). Présomption d'ERP. Un accès direct depuis la rue avec possibilité de vitrine. Terrasses : RDC (32;80 m²) - RDJ (18,70 m²).
Voir plus

Référence: 807
Honoraires d'agence de 5% à la charge de l'acquéreur
Commerce à BOULOGNE-BILLANCOURT
Commerce à BOULOGNE-BILLANCOURT
Commerce à BOULOGNE-BILLANCOURT
Commerce à BOULOGNE-BILLANCOURT
Commerce à BOULOGNE-BILLANCOURT
Géorisques

Les informations sur les risques auxquels ce bien est exposé sont disponibles sur le site Géorisques : www.georisques.gouv.fr

Ce site est protégé par hCaptcha Politique de confidentialité et Conditions d’utilisation s’appliquent.

En poursuivant votre navigation sans modifier vos paramètres, vous acceptez l'utilisation de cookies susceptibles de réaliser des statistiques de visite. Cliquez ici pour plus d'informations