Bénéficiez des services de nos partenaires locaux soigneusement sélectionnés
pour vous accompagner dans votre parcours d'achat immobilier

Maison 78 m² à Villebon-Sur-Yvette

— Villebon-Sur-Yvette 91140 —
323 000 €
78 m² / 400 m²
4 pièces
balcon/terrassejardin

Nos partenaires locaux
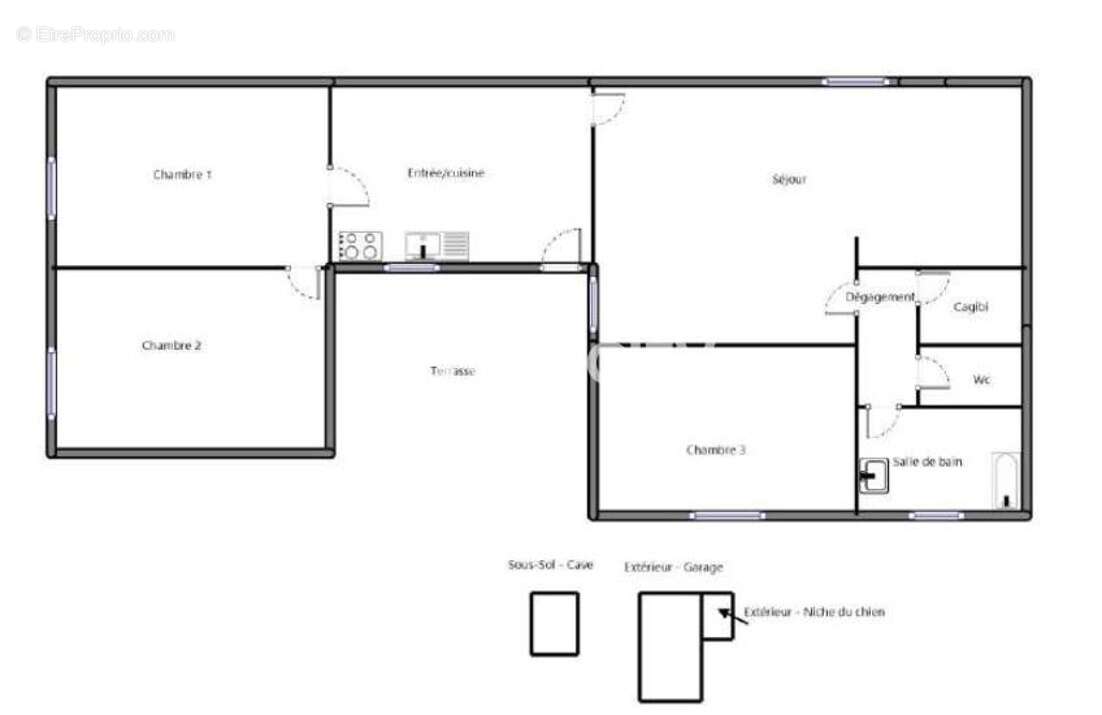
91140 – VILLEBON-SUR-YVETTE – QUARTIER SUISSE – MAISON – 4 PIÈCES – 78 M² – 3 CHAMBRES – GARAGE – TERRAIN 400 M² – VUE DÉGAGÉE

Présentée par Frédéric Dujour, consultant immobilier indépendant effiCity, cette maison individuelle pleine de potentiel, idéalement située dans le quartier recherché du Suisse à Villebon-sur-Yvette.

UN ENVIRONNEMENT PRIVILÉGIÉ
Implantée sur une parcelle d'environ 400 m², dans un cadre résidentiel calme et verdoyant, cette maison bénéficie d'une vue dégagée sur la vallée et d'un cadre de vie particulièrement agréable.

UNE MAISON FONCTIONNELLE À FORT POTENTIEL
D'une surface d'environ 78 m², cette maison construite dans les années 1960 propose une organisation optimale, avec une vie de plain-pied recherchée :

• Un séjour lumineux d'environ 21 m² ouvrant sur une terrasse
• Une cuisine indépendante donnant également accès à une terrasse d'environ 20 m²
• Trois chambres confortables (environ 10 à 12 m²)
• Une salle de bain

UN BIEN À PERSONNALISER SELON VOS ENVIES
La maison nécessite des travaux de rénovation (électricité, chauffage, modernisation globale), offrant une opportunité rare de repenser entièrement les espaces et d'optimiser la performance énergétique du bien.

UN PROJET ÉVOLUTIF
Édifiée sur une parcelle d'environ 400 m², cette maison présente un fort potentiel d'agrandissement :

• Possibilité de surélévation ou extension (sous réserve d'autorisation d'urbanisme)
• Création d'une surface habitable supplémentaire
• Valorisation patrimoniale à moyen terme

LES ATOUTS :
Quartier résidentiel recherché – calme et familial
Vue dégagée sur la vallée
Terrain d'environ 400 m²
3 chambres
Vie de plain-pied
Fort potentiel d'évolution
Garage indépendant et cave technique

Une maison idéale pour un projet familial ou pour des acquéreurs souhaitant créer un bien à leur image, dans un secteur prisé.

Pour plus d'informations ou organiser une visite :

Frédéric DUJOUR
Consultant immobilier indépendant effiCity

[Coordonnées masquées]

[Coordonnées masquées]

efficity.com/fdujour

Je reste à votre disposition pour vous accompagner dans la réussite de votre projet.
Les informations sur les risques auxquels ce bien est exposé sont disponibles sur le site Georisque : georisques. gouv. fr
Frederic Dujour - EI - est Agent Commercial mandataire en immobilier, immatriculé au Registre Spécial des Agents Commerciaux du Tribunal de Commerce de Évry sous le n°908728090.
Siège social du mandant : effiCity, 48 avenue de Villiers - 75017 PARIS - Société par Actions Simplifiée, société au capital de 132 373,05 euros, immatriculée au RCS Paris 497 617 746 et titulaire de la Carte professionnelle CPI 75[Coordonnées masquées]02 025 - CCI Paris IDF - Caisse de Garantie : GALIAN Assurances 89 rue de la Boétie 75008 Paris
Voir plus

Référence: 212169
Honoraires d'agence de 6.43% à la charge de l'acquéreur
Barème des honoraires
DPE
A
B
C
D
E
F
G
GES
A
B
C
D
E
F
G
Maison à VILLEBON-SUR-YVETTE
Maison à VILLEBON-SUR-YVETTE
Maison à VILLEBON-SUR-YVETTE
Maison à VILLEBON-SUR-YVETTE
Maison à VILLEBON-SUR-YVETTE
Maison à VILLEBON-SUR-YVETTE
Maison à VILLEBON-SUR-YVETTE
Maison à VILLEBON-SUR-YVETTE
Maison à VILLEBON-SUR-YVETTE
Maison à VILLEBON-SUR-YVETTE
Maison à VILLEBON-SUR-YVETTE
Maison à VILLEBON-SUR-YVETTE
Maison à VILLEBON-SUR-YVETTE
Géorisques

Les informations sur les risques auxquels ce bien est exposé sont disponibles sur le site Géorisques : www.georisques.gouv.fr

Ce site est protégé par hCaptcha Politique de confidentialité et Conditions d’utilisation s’appliquent.

En poursuivant votre navigation sans modifier vos paramètres, vous acceptez l'utilisation de cookies susceptibles de réaliser des statistiques de visite. Cliquez ici pour plus d'informations