Bénéficiez des services de nos partenaires locaux soigneusement sélectionnés
pour vous accompagner dans votre parcours d'achat immobilier

Appartement

— Saint-Germain-Au-Mont-D'or 69650 —
250 000 €
98 m²
4 pièces
parkingbalcon/terrassejardin

Nos partenaires locaux
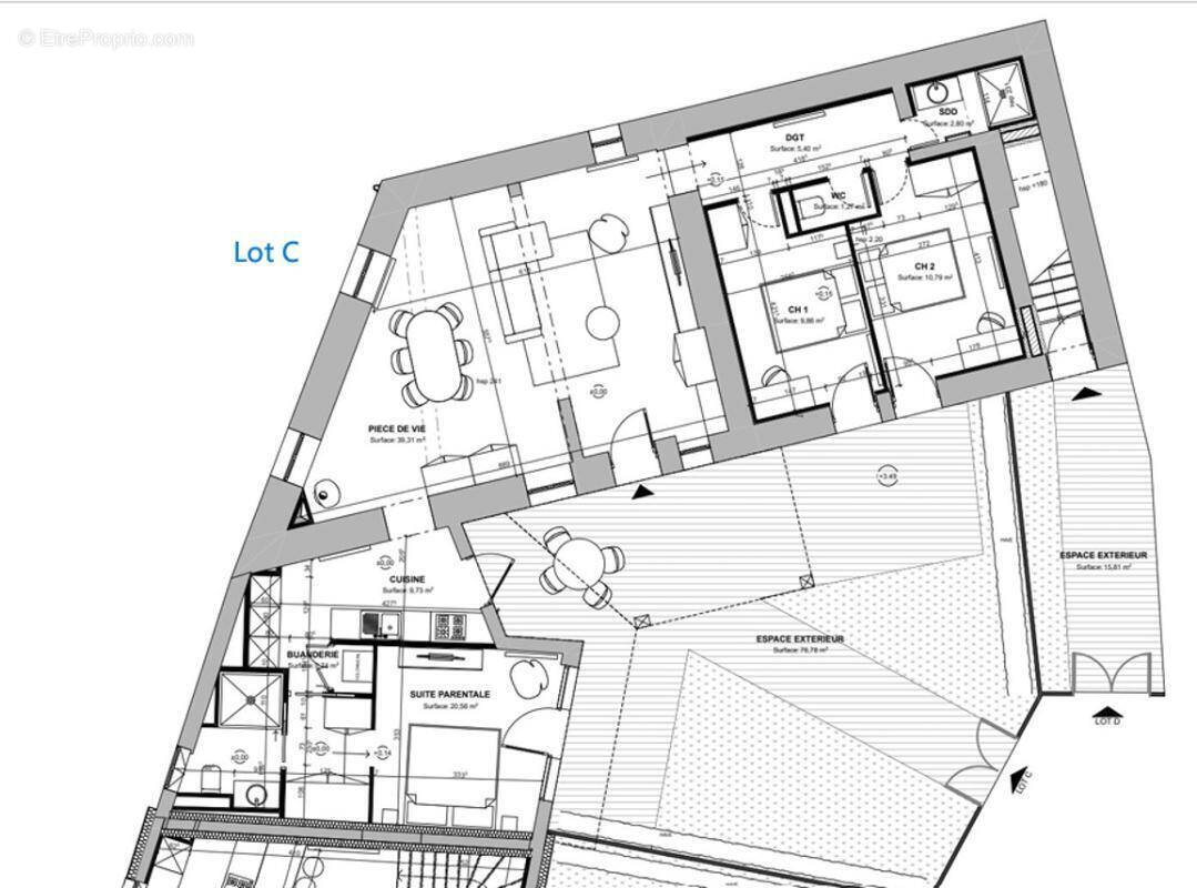
PLATEAU BRUT - ENTIEREMENT A RENOVER - REZ-DE-JARDIN - EXTERIEUR 76m2 PRIVATIF - A DEUX PAS DE LA GARE DE ST GERMAIN AU MONT D'OR - CADRE BUCOLIQUE ET CALME

Amandine ANDRE et EEFICITY, l'agence qui estime gratuitement vos biens en ligne, vous proposent ce Rez-de-Jardin de 98m2, situé à proximité immédiate de la GARE de ST GERMAIN AU MONT D'OR.

Issu d'un ancien corps de ferme, ce lot allie le charme du bâti ancien et un cadre verdoyant très agréable.

Cet plateau à aménager vous permet de disposer d'un intérieur de 98m2 à votre guise! Voir plans pour idées d'aménagements.

Un extérieur privatif et clôturé avec terrasse et jardinet, de 76m2 complète le bien.

2 places de stationnements sont prévues également.

La petite copropriété sera composée de 4 lots, chacun avec ses 2 places de stationnements.

En plus de prestations de qualités pour votre habitation, vous bénéficierez d'un superbe cadre, entouré de verdure, au calme, avec l'accès au jardin commun et sa petite marre sécurisée qui sera un lieu de repos idéal!
Accès gare très facile et rapide.

Disponible IMMEDIATEMENT!

Il est tout à fait envisageable de faire réaliser certains travaux par le lotisseur, il suffit d'en discuter. ;.)

Pour plus de renseignements, n'hésitez pas à contacter Amandine ANDRE au [Coordonnées masquées] ou par mail à [Coordonnées masquées].
Les informations sur les risques auxquels ce bien est exposé sont disponibles sur le site Georisque : georisques. gouv. fr
Amandine André - EI - est Agent Commercial mandataire en immobilier, immatriculé au Registre Spécial des Agents Commerciaux du Tribunal de Commerce de Bourg en Bresse sous le n°753350123.
Siège social du mandant : effiCity, 48 avenue de Villiers - 75017 PARIS - Société par Actions Simplifiée, société au capital de 132 373,05 euros, immatriculée au RCS Paris 497 617 746 et titulaire de la Carte professionnelle CPI 75[Coordonnées masquées]02 025 - CCI Paris IDF - Caisse de Garantie : GALIAN Assurances 89 rue de la Boétie 75008 Paris
Voir plus

Référence: 191729
Bien en copropriété. Nombre de lots : 4. Charges de copropriété : 31 €.
Honoraires à la charge du vendeur.
Barème des honoraires
DPE
A
B
C
D
E
F
G
GES
A
B
C
D
E
F
G
Appartement à SAINT-GERMAIN-AU-MONT-D'OR
Appartement à SAINT-GERMAIN-AU-MONT-D'OR
Géorisques

Les informations sur les risques auxquels ce bien est exposé sont disponibles sur le site Géorisques : www.georisques.gouv.fr

Ce site est protégé par hCaptcha Politique de confidentialité et Conditions d’utilisation s’appliquent.

En poursuivant votre navigation sans modifier vos paramètres, vous acceptez l'utilisation de cookies susceptibles de réaliser des statistiques de visite. Cliquez ici pour plus d'informations