Bénéficiez des services de nos partenaires locaux soigneusement sélectionnés
pour vous accompagner dans votre parcours d'achat immobilier

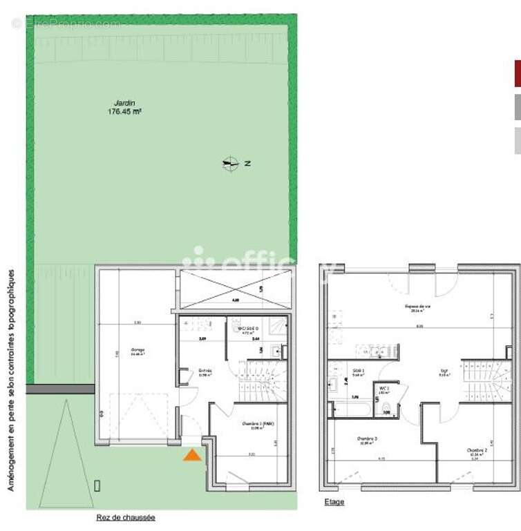
Maison 95 m² à Bellegarde-Sur-Valserine

— Bellegarde-Sur-Valserine 01200 —
315 000 €
95 m² / 179 m²
4 pièces

Nos partenaires locaux
VOUVRAY - 01200 VALSERHÔNE - ENVIRONNEMENT PRIVILEGIE POUR CE PROGRAMME NEUF :

CETTE VILLA T4 d'une surface habitable de 95.12 m2 BENEFICIE D'UN JARDIN DE 176 m2

La résidence " LE VERDI " propose des appartements du T2 AU T3 et des maisons mitoyennes du T4 AU T5.
Un espace vert commun sera aménagé pour le bonheur des familles.

Pour compléter le tout, chaque logement dispose d'un garage ou d'une place de parking. Depuis la résidence, vous rejoindrez en quelques minutes l'entrée autoroute A40 GENEVE/LYON, le futur village de marques, commerces
mais aussi le plateau du Retord pour les amoureux de la nature, du ski et des randonnées pédestres.
Une école se situe à 500m.

LIVRAISON JUIN 2026
ELIGIBLE AU PTZ
FRAIS DE NOTAIRE REDUITS

Pour plus d'informations : Patricia Bernasconi [Coordonnées masquées]
Les informations sur les risques auxquels ce bien est exposé sont disponibles sur le site Georisque : georisques. gouv. fr
Patricia Bernasconi - EI - est Agent Commercial mandataire en immobilier, immatriculé au Registre Spécial des Agents Commerciaux du Tribunal de Commerce de Bourg- En-Bresse sous le n°881205314.
Siège social du mandant : effiCity, 48 avenue de Villiers - 75017 PARIS - Société par Actions Simplifiée, société au capital de 132 373,05 euros, immatriculée au RCS Paris 497 617 746 et titulaire de la Carte professionnelle CPI 75[Coordonnées masquées]02 025 - CCI Paris IDF - Caisse de Garantie : GALIAN Assurances 89 rue de la Boétie 75008 Paris
Voir plus

Référence: 1656162
Honoraires à la charge du vendeur.
Barème des honoraires
DPE
A
B
C
D
E
F
G
GES
A
B
C
D
E
F
G
Maison à BELLEGARDE-SUR-VALSERINE
Maison à BELLEGARDE-SUR-VALSERINE
Maison à BELLEGARDE-SUR-VALSERINE
Maison à BELLEGARDE-SUR-VALSERINE
Géorisques

Les informations sur les risques auxquels ce bien est exposé sont disponibles sur le site Géorisques : www.georisques.gouv.fr

Ce site est protégé par hCaptcha Politique de confidentialité et Conditions d’utilisation s’appliquent.

En poursuivant votre navigation sans modifier vos paramètres, vous acceptez l'utilisation de cookies susceptibles de réaliser des statistiques de visite. Cliquez ici pour plus d'informations