Appartement en duplex a creer dans une grange

— Saint-Chef 38890 —
95 000 €
110 m² / 325 m²
4 pièces
jardin

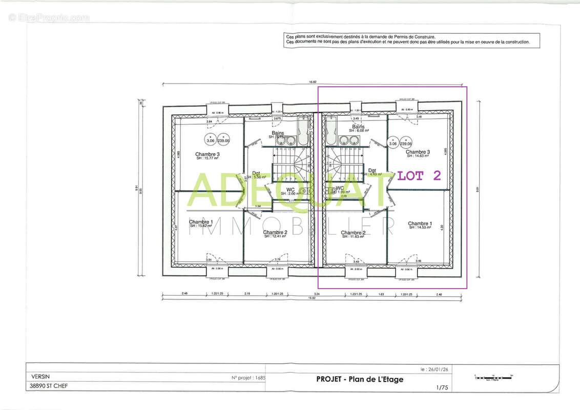
EXCLUSIVITE - SAINT CHEF - secteur VERSIN, 10mn de BOURGOIN JALLIEU dans une grange divisée en 2, APPARTEMENT T4 traversant en DUPLEX de 110m2 à créer. Vendu en l'état avec le Permis de construire ( PC modificatif possible pour adapter à vos besoins), Il dispose d'une cour abritée pour le stationnement et d'un jardin privatif exposé Est / sud et ouest..
A prévoir :

Viabilisations et raccordements (Enedis,Telecom, Eau )
Assainissement individuel ( micro station )
Travaux de rénovation

Pour touts renseignements complémentaires et visite, contacter Valérie PEROT 06x86x37x60x06 - Agente immobilière.
Les informations sur les risques auxquels ce bien est exposé sont disponibles sur le site Géorisques : www.georisques.gouv.fr
Voir plus

Référence: 1940 - 2
Honoraires à la charge du vendeur.
Barème des honoraires
Appartement à SAINT-CHEF
Appartement à SAINT-CHEF
Appartement à SAINT-CHEF
Appartement à SAINT-CHEF
Appartement à SAINT-CHEF
Appartement à SAINT-CHEF
Appartement à SAINT-CHEF
Appartement à SAINT-CHEF
Appartement à SAINT-CHEF
Géorisques

Les informations sur les risques auxquels ce bien est exposé sont disponibles sur le site Géorisques : www.georisques.gouv.fr

Ce site est protégé par hCaptcha Politique de confidentialité et Conditions d’utilisation s’appliquent.