Bénéficiez des services de nos partenaires locaux soigneusement sélectionnés
pour vous accompagner dans votre parcours d'achat immobilier

Nice - riquier - 3p 68m2 rénové

— Nice 06300 —
377 900 €
67 m²
3 pièces
balcon/terrasse

Nos partenaires locaux
des Châteaux, l’agence aux forfaits fixes pour la vente des biens immobiliers, vous propose :
EXCLUSIVITÉ :
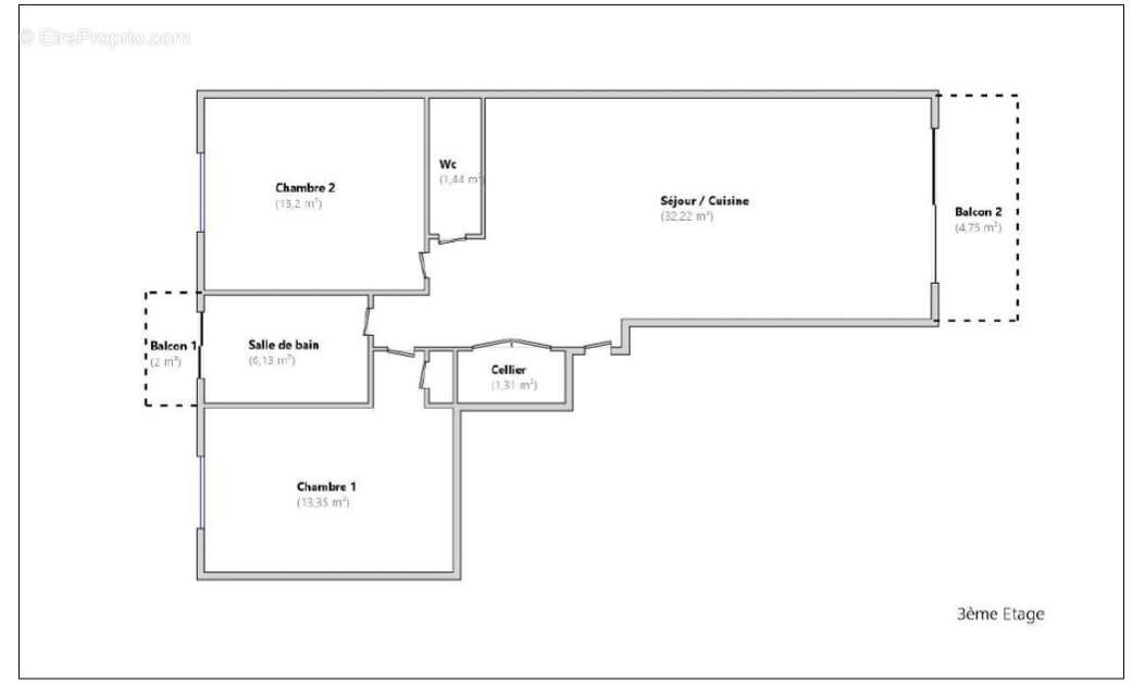
En plein coeur du secteur de Riquier, entièrement rénové et proche de toutes les commodités, ce précieux 3 pièces d'une superficie de 68m2.
Situé en 3ème étage avec ascenseur d'une copropriété bien tenue, il se compose d'une cuisine américaine de goût, ouverte sur un séjour/salle à manger avec beaucoup d'espace et donnant sur une terrasse plein sud. Le coin nuit au calme absolu vous séduira par ses deux belles chambres avec placards intégrés et sa salle de bain avec balcon côté cour, ainsi qu''un WC séparé.
Un appartement doté de nombreux atouts : Traversant, calme et lumineux, rénovation de standing (Climatisation réversible, double vitrage, coin buanderie et cellier, une cuisine utilisant tous les espaces et proposant tous les équipements, salle de bain avec un sèche serviettes et carrelage imitation marbre) et à proximité immédiate de :
- Centre commercial Carrefour TNL et commerces de proximité 
- Ecoles, collèges, lycées et université 
- Tramway ligne 1
- Station de bus toutes directions et gare SNCF 
- Port, place Garibaldi et Centre ville à quelques minutes en tramway 
Idéal pour une famille en quête d'une vie paisible.
Montant de la quote part des charges : 140€/mois incluant l'eau froide, l'ascenseur et l'entretien des parties communes, gestion du syndic et fonds de travaux loi Alur)
Taxe foncière 2025 de 1746€
Honoraires à la charge du vendeur.
Votre agence à commissions fixes, dès 5900€ des Châteaux
Voir plus

Référence: 0694
Bien en copropriété. Nombre de lots : 194.
Honoraires à la charge du vendeur.
Barème des honoraires
DPE
A
B
C
D
E
F
G
GES
A
B
C
D
E
F
G
Appartement à NICE
Appartement à NICE
Appartement à NICE
Appartement à NICE
Appartement à NICE
Appartement à NICE
Appartement à NICE
Appartement à NICE
Appartement à NICE
Appartement à NICE
Appartement à NICE
Appartement à NICE
Appartement à NICE
Appartement à NICE
Appartement à NICE
Appartement à NICE
Géorisques

Les informations sur les risques auxquels ce bien est exposé sont disponibles sur le site Géorisques : www.georisques.gouv.fr

Ce site est protégé par hCaptcha Politique de confidentialité et Conditions d’utilisation s’appliquent.

En poursuivant votre navigation sans modifier vos paramètres, vous acceptez l'utilisation de cookies susceptibles de réaliser des statistiques de visite. Cliquez ici pour plus d'informations