Terrain constructible Lens

— Lens 62300 —
44 000 €
295 m²
jardin

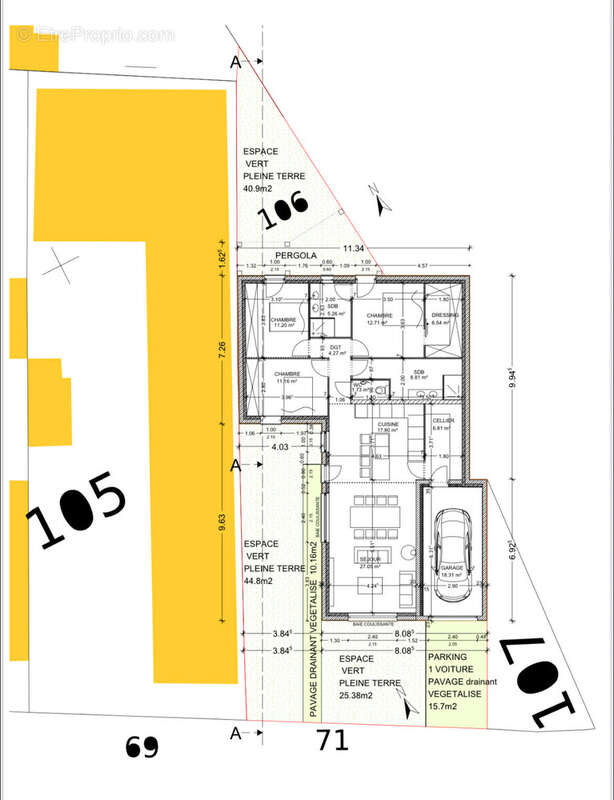
À VENDRE : Terrain constructible de 295 m2 !
Une opportunité à saisir ! Ce terrain d’une surface totale de 295 m2 est idéal pour construire votre future maison.
Situé proche du centre ville et proche de toutes commodités. Etude de sol réalisée, permis de construire valide. Terrain borné.
Contactez nous au [Coordonnées masquées] ou sur [Coordonnées masquées] pour plus d'informations ou programmer une visite.

Référence: 310
Bien en copropriété. Nombre de lots : 230.
Honoraires d'agence de 10% à la charge de l'acquéreur
Barème des honoraires
Terrain à LENS
Terrain à LENS
Terrain à LENS
Géorisques

Les informations sur les risques auxquels ce bien est exposé sont disponibles sur le site Géorisques : www.georisques.gouv.fr

Ce site est protégé par hCaptcha Politique de confidentialité et Conditions d’utilisation s’appliquent.

En poursuivant votre navigation sans modifier vos paramètres, vous acceptez l'utilisation de cookies susceptibles de réaliser des statistiques de visite. Cliquez ici pour plus d'informations