Bénéficiez des services de nos partenaires locaux soigneusement sélectionnés
pour vous accompagner dans votre parcours d'achat immobilier

A VENDRE DAX Plateau brut 100 m² ? projet loft ou division

— Dax 40100 —
115 000 €
100 m²
parking

Nos partenaires locaux
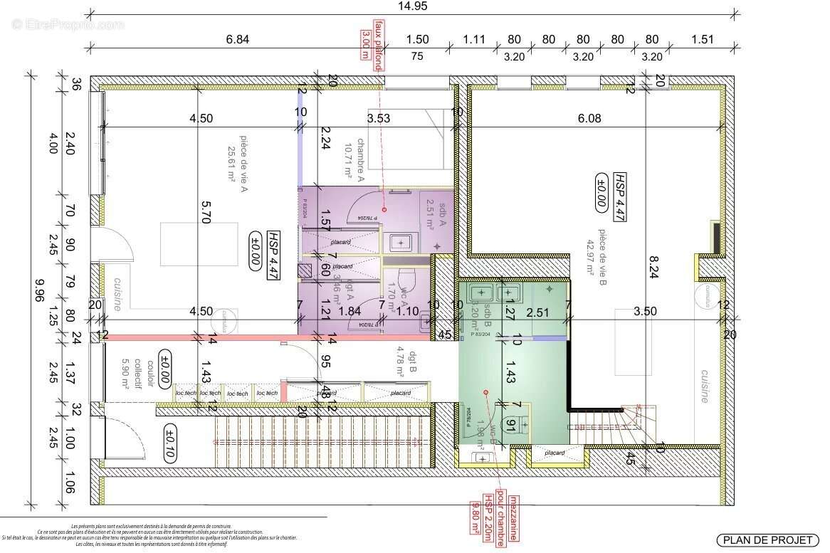
PROJET INVESTISSEUR ? DIVISION POSSIBLE ? LOCAL BRUT 100 m² ? DAX

Opportunité rare pour investisseurs, marchands de biens ou porteurs de projets immobiliers.

Situé sur un emplacement stratégique à Dax, ce plateau brut d'environ 100 m² Loi Carrez offre un potentiel exceptionnel de transformation et de valorisation.

Le bien est entièrement brut, permettant de repartir d'une page blanche et d'optimiser totalement l'aménagement.
Tout est à créer : réseaux, assainissement, électricité, isolation, distribution intérieure, cuisine et sanitaires.
DPE vierge. 3 places de parking existantes.

L'atout majeur du bien réside dans ses volumes et sa hauteur sous plafond d'environ 4,47 m, permettant d'imaginer des projets type loft, mezzanine ou duplex.

Un projet d'aménagement a déjà été étudié et prévoit notamment la création de deux appartements indépendants :
-un premier logement d'environ 40 m²
-un second logement d'environ 60 m² avec mezzanine

Ce type de configuration correspond parfaitement à la demande locative actuelle sur Dax.

Mais les possibilités sont multiples :
-création de deux logements locatifs
-transformation en loft atypique
-cabinet médical ou paramédical
-salle de sport / studio de coaching
-commerce ou showroom
-bureaux ou espace de coworking
-atelier créatif ou galerie

Son emplacement stratégique à Dax, sa bonne visibilité et ses volumes en font un bien particulièrement intéressant pour un projet de valorisation.

Projet idéal pour investisseur souhaitant créer de la valeur sur un bien atypique.

Déclarations & permis de construire déjà déposés et OK. Dossier urbanisme bien avancé. Plans et projections d'architecte disponibles. Appelez-moi !

Pour plus d'informations, contactez Vanessa au [Coordonnées masquées]
Annonce REF N° VPE2844 - Honoraires d'Agence à la charge du vendeur

Annonce rédigée par Vanessa PERCEVAULT E.I., Agent Commercial, immatriculé RSAC du Tribunal de commerce de DAX sous le numéro : 901 257 469, pour le compte de MONZEO, marque déposée par NEAXIA dont le siège social se situe 2 rue des Phénix 64600 ANGLET, et détentrice de la carte T n° CPI 64[Coordonnées masquées]22 277 délivrée par la CCI de Bayonne Pays Basque
Les informations sur les risques auxquels ce bien est exposé sont disponibles sur le site Géorisques : www.georisques.gouv.fr
Voir plus

Référence: VPE2844
Commerce à DAX
Commerce à DAX
Commerce à DAX
Commerce à DAX
Commerce à DAX
Commerce à DAX
Commerce à DAX
Commerce à DAX
Commerce à DAX
Commerce à DAX
Commerce à DAX
Commerce à DAX
Géorisques

Les informations sur les risques auxquels ce bien est exposé sont disponibles sur le site Géorisques : www.georisques.gouv.fr

Ce site est protégé par hCaptcha Politique de confidentialité et Conditions d’utilisation s’appliquent.

En poursuivant votre navigation sans modifier vos paramètres, vous acceptez l'utilisation de cookies susceptibles de réaliser des statistiques de visite. Cliquez ici pour plus d'informations