T3 vue mer en vente à Solenzara avec TEAM MARSEILLE PRADO-EUROMED

— Sari-Solenzara 20145 —
415 000 €
80 m²
3 pièces
parkingbalcon/terrasse

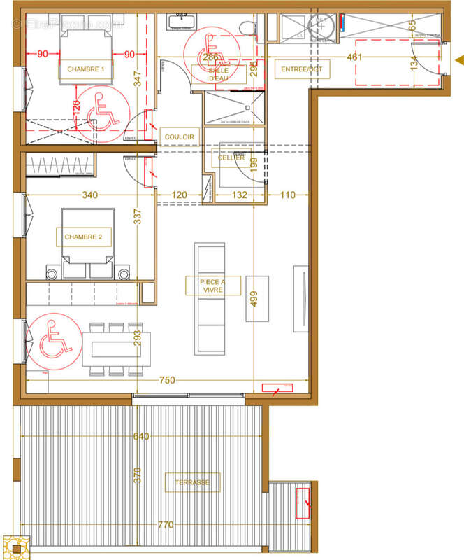
TRES RARE !! T3 VUE MER !!! Sur les hauteurs de la côte des nacres de Solenzara, à 200 mètres du port des commerces et des plages, cette très luxueuse residence en rooftop ultra chic et moderne offrira une vue panoramique sur la mer et le port avec terrasse panoramique. 2 places de parking incluse et cuisine sur mesure d'ébéniste offerte. Configuration et aménagement sur mesure possible. Possibilité de garage boxe et de cave. Saisissez vite cette opportunité de logement T3 car il n'y en n'a qu'un par étage au sein de cette résidence de luxe.

Cet appart t3 avec très grande terrasse en vente est intégralement pensé en prestations extraordinaires dernier cri, normes RT2012. Les sols interieurs seront en travertin 60x40 et les extérieurs en dalles sur plots soit 60x40 soit 60x60. La porte d'entrée est une porte blindée à 12 points. La chambre sera équipée de dressings, éventuellement aménageables en suite parentales et donnera sur la terrasse face à la mer et au port. Le plan d'aménagement est un exemple, mais il est intégralement personnalisable. Pour conserver un style traditionnel typique Corse, les fenêtres sont des ouvrants à la française, avec des volets en alu électrique. La salle d'eau elle est pensée en douche à l'italienne, avec cumulus thermodynamique (système de pompe à chaleur), miroir led, et meuble vasque. Les gardes corps des terrasses seront complètement en alu, ce qui n'occulte pas la vue et assure une sensation très vertigineuse. Les éclairages seront en spots led, possibilité d'installation domotique télécommandée depuis les mobiles.

La résidence implantée dans le maquis sauvage et parfumé de Solenzara et à 200 mètres du port des commerces et des plages sera intégralement arborée d'essences locales (lavandes, cyprès, pins...) pour garantir une sensation traditionnelle et des fragrances d'exception dans ce joli cocon de luxe.

Ce type de logement est parfait pour accueillir une famille, en résidence secondaire ou en résidence locative. Pour ce qui est du rendement locatif, il est estimé à partir de 13 000€ par an en location à l'année, et 35 000€ par an en location temporaire.

Pour visiter cet appartement ou découvrir notre résidence d'exception, votre agence immobilière TEAM MARSEILLE PRADO-EUROMED se tient à votre disposition. Contact immédiat : Mme Paccioni, [Coordonnées masquées] [Coordonnées masquées] rsac d'Ajaccio 917563439
Les informations concernant les risques liés à ce bien sont disponibles sur georisques.gouv.fr.- Présentation d'une pièce d'identité requise selon l'article L.561.5 du Code Monétaire et Financier pour l'organisation de la visite. - Les informations concernant les risques liés à ce bien sont disponibles sur georisques.gouv.fr.- Présentation d'une pièce d'identité requise selon l'article L.561.5 du Code Monétaire et Financier pour l'organisation de la visite.
Voir plus

Référence: 3292-2
Barème des honoraires
DPE
A
B
C
D
E
F
G
GES
A
B
C
D
E
F
G
Appartement à SARI-SOLENZARA
Appartement à SARI-SOLENZARA
Appartement à SARI-SOLENZARA
Appartement à SARI-SOLENZARA
Appartement à SARI-SOLENZARA
Appartement à SARI-SOLENZARA
Géorisques

Les informations sur les risques auxquels ce bien est exposé sont disponibles sur le site Géorisques : www.georisques.gouv.fr

Ce site est protégé par hCaptcha Politique de confidentialité et Conditions d’utilisation s’appliquent.

En poursuivant votre navigation sans modifier vos paramètres, vous acceptez l'utilisation de cookies susceptibles de réaliser des statistiques de visite. Cliquez ici pour plus d'informations