Bénéficiez des services de nos partenaires locaux soigneusement sélectionnés
pour vous accompagner dans votre parcours d'achat immobilier

Dernier etage et grande terrasse

— Toulouse 31400 —
698 000 €
117 m²
4 pièces
parkingbalcon/terrasseascenseur

Nos partenaires locaux
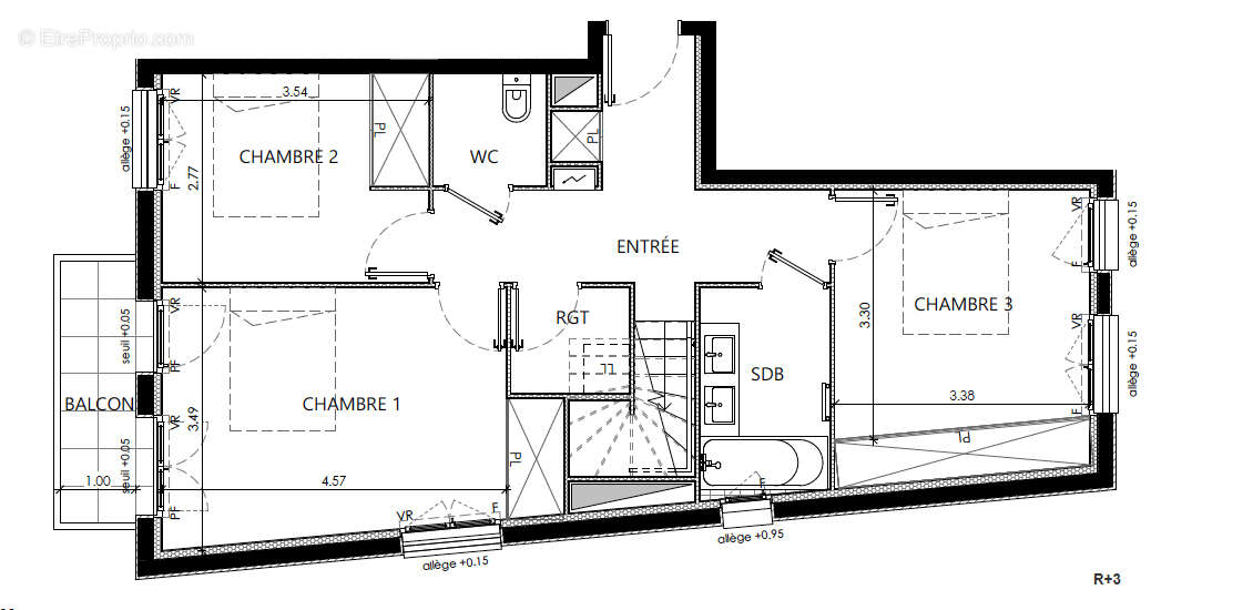
Toulouse L'Ormeau Grande terrasse de 106,51m2. Au 3ème et dernier étage d'une petite copropriété de 17 logements seulement on vous présente ici cet appartement 4 pièces en duplex inversé. Sur la partie basse on retrouve le coin nuit composé de 3 chambres de 16,17, 9,74 et 12,83m2, un bacon de 3,48m2, une salle de bain, un wc indépendant et un espace buanderie. Un escalier permet de rejoindre le 4ème étage où on retrouve la pièce de vie : séjour cuisine de 52,36m2 sur la terrasse de 106,51m2, de nombreux rangements et un second wc. 1 place de parking en sous-sol avec possibilité d'acheter une seconde place en supplément. Prestations soignées : carrelage 45*45 au sol, parquet stratifié dans les chambres, pompe à chaleur air-eau, peinture lisse, volets roulants motorisés .... Quartier aussi calme que vivant, l'Ormeau bénéficie de plus de 250 commerces de proximité dont des restaurants et un hypermarché. Pourvu de nombreux espaces verts tels que le Parc Alalouf et son plateau multisport, l'Ormeau affiche à la fois une ambiance paisible et dynamique, accentuée par la rencontre de deux axes majeurs de la ville : les avenues Antoine de Saint-Exupéry et Jean Rieux. Déjà desservi par les autoroutes A620 (accès n°20 Rangueil et 21 Pont des Demoiselles) et A61 (accès n°18 Montaudran), le quartier fait également l'objet d'un important remaniement en vue d'accueillir, à l'horizon 2028, deux stations de la 3ème ligne du métro toulousain reliant Labège à Colomiers en passant par le coeur de Toulouse. Pourvu de deux groupes scolaires et d'associations sportives et culturelles (16 sections sportives et 13 sections culturelles), le quartier est animé, vivant et jeune. Tout proche, le quartier de Montaudran, résolument moderne, comprend commerces, habitations et équipements publics, il répond aux besoins de tous ses habitants et reste constamment tourné vers l'avenir grâce à divers projets, dont celui de l'implantation d'entreprises de haute technologie. La réhabilitation d'anciens bâtiments historiques de l'aérodrome en musées (la Halle de La Machine, L'Envol des Pionniers) constitue la preuve qu'il s'agit bien d'un secteur en mouvement, sachant s'appuyer sur son passé pour assurer de prospères lendemains. BIEN NON SOUMIS AU DPE Pour tout renseignement : Féänor MAMEO [Coordonnées masquées]
Voir plus

Référence: SUZ-A301
Honoraires à la charge du vendeur.
Appartement à TOULOUSE
Appartement à TOULOUSE
Appartement à TOULOUSE
Appartement à TOULOUSE
Appartement à TOULOUSE
Appartement à TOULOUSE
Appartement à TOULOUSE
Appartement à TOULOUSE
Appartement à TOULOUSE
Appartement à TOULOUSE
Appartement à TOULOUSE
Appartement à TOULOUSE
Appartement à TOULOUSE
Appartement à TOULOUSE
Appartement à TOULOUSE
Appartement à TOULOUSE
Géorisques

Les informations sur les risques auxquels ce bien est exposé sont disponibles sur le site Géorisques : www.georisques.gouv.fr

Ce site est protégé par hCaptcha Politique de confidentialité et Conditions d’utilisation s’appliquent.

En poursuivant votre navigation sans modifier vos paramètres, vous acceptez l'utilisation de cookies susceptibles de réaliser des statistiques de visite. Cliquez ici pour plus d'informations