Bénéficiez des services de nos partenaires locaux soigneusement sélectionnés
pour vous accompagner dans votre parcours d'achat immobilier

Appartement Toulouse 4 pièce(s) 79.90 m2

— Toulouse 31500 —
419 100 €
79 m²
4 pièces
parkingbalcon/terrasseascenseur

Nos partenaires locaux
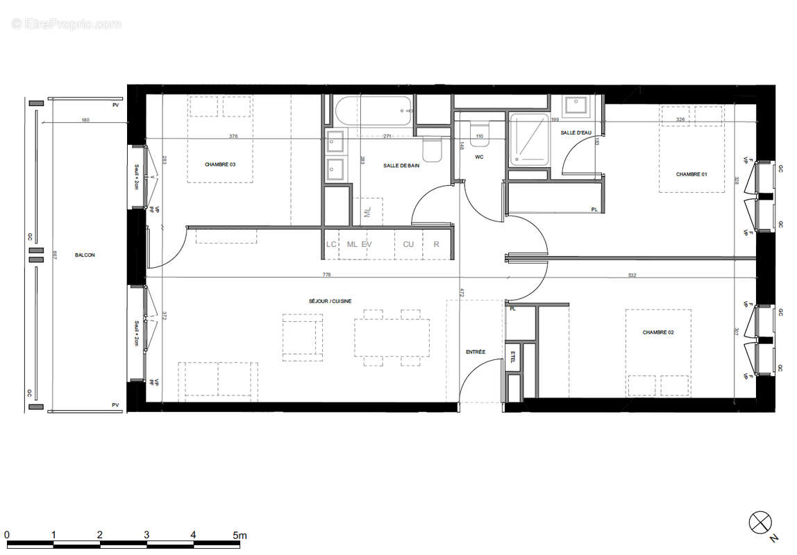
Toulouse Grand Matabiau Quai d'Oc En 2ème étage sur 6 cet appartement est composé d'une entrée avec vestibule, un wc indépendant, une salle de bain-wc, 2 chambres de 14,40 et 10,60 m2 , une chambre avec salle d'eau pour 17m2 et un séjour cuisine de 24,50m2 exposé sud-est sur loggia de 12,10m2 2 places de parking en sous-sol Prestations soignées : isolation renforcée, chauffage urbain, parquet stratifié au sol, carrelage 45*45 dans la salle de bain et wc, peinture blanche lisse, volets roulants électriques , wc suspendus .... Grand Matabiau Quais d'Oc, une reconversion urbaine exemplaire, inclusive et porteuse de nouveaux usages. Cette copropriété s'insère harmonieusement dans un quartier en pleine transformation qui reconnecte les berges du Canal, les mobilités et le centre-ville. L'appartement bénéficie d'une accessibilité remarquable : métro A (Matabiau) à 9 min, métro B (Jeanne d'Arc) à 12 min, plusieurs lignes de bus, et la place du Capitole à 9 min à vélo. La ligne C du métro viendra compléter cette offre dès 2028. Les commerces de proximité et les établissements scolaires sont accessibles à moins de 300 mètres. Ce renouveau mixte associe logements, commerces, une résidence intergénérationnelle et un hôtel, dans une démarche architecturale contemporaine réinterprétant l'identité toulousaine. La biodiversité retrouve sa place en ville grâce à 50 arbres plantés et de nombreuses toitures végétalisées. BIEN NON SOUMIS AU DPE Pour tout renseignement : Féänor MAMEO [Coordonnées masquées]
Voir plus

Référence: IMP-011AC21
Appartement à TOULOUSE
Appartement à TOULOUSE
Appartement à TOULOUSE
Appartement à TOULOUSE
Appartement à TOULOUSE
Appartement à TOULOUSE
Appartement à TOULOUSE
Appartement à TOULOUSE
Appartement à TOULOUSE
Appartement à TOULOUSE
Appartement à TOULOUSE
Appartement à TOULOUSE
Appartement à TOULOUSE
Géorisques

Les informations sur les risques auxquels ce bien est exposé sont disponibles sur le site Géorisques : www.georisques.gouv.fr

Ce site est protégé par hCaptcha Politique de confidentialité et Conditions d’utilisation s’appliquent.

En poursuivant votre navigation sans modifier vos paramètres, vous acceptez l'utilisation de cookies susceptibles de réaliser des statistiques de visite. Cliquez ici pour plus d'informations