Type 4 - 87,75 m2 - 5 ème étage Résidence récente

— Meythet 74960 —
551 800 €
87 m²
4 pièces
parkingbalcon/terrasse

Appartement type 4 très moderne au 5 ème étage d'une nouvelle copropriété, emménagement possible rapidement.
Idéalement situé dans un environnement à proximité immédiate de toutes les commodités, du centre ville et du lac à 15 minutes à pied.
L'appartement traversant est bien exposé et bénéficie des derniers équipements, ainsi que de matériaux de qualité.
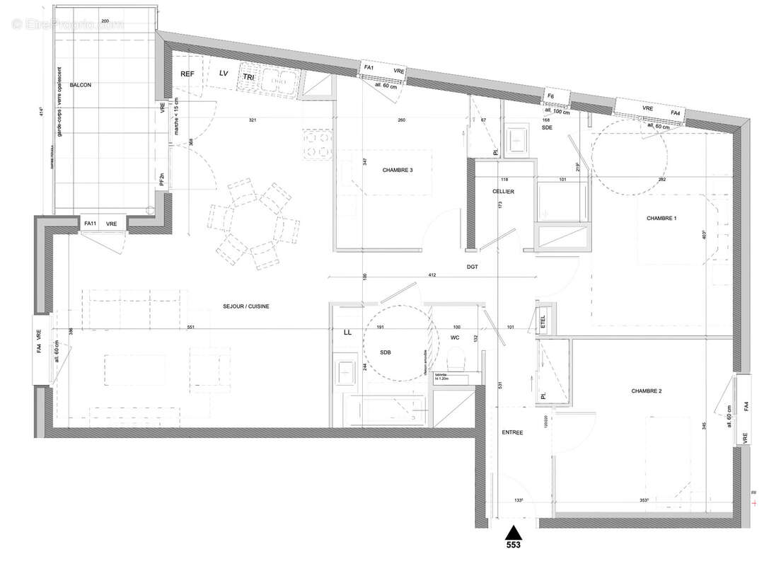
Cet appartement 4 pièces d'environ 87 m2 offre un confort optimal, et se compose comme suit :
L'entrée avec placard, a pièce de vie lumineuse de plus de 30 m2 avec cuisine ouverte non aménagée (option possible : cuisine aménagée et équipée via notre partenaire à moins de 5.000 euros), prolongée par la terrasse de 8,77 m2 environ, un cellier.
L'espace nuit comprend : Une chambre parentale de 13 m2 avec salle de douche, deux autres chambres dont une avec placard, la salle de bain avec baignoire, des toilettes séparées avec wc suspendu.

L'appartement dispose également d'un grand garage inclus dans le prix.

L'immeuble est équipé d'un ascenseur, d'un local vélo et bénéficie d'une isolation performante ainsi que de charges maîtrisées avec du chauffaghe collectif par pompe à chaleur.

Les avantages de ce bien :
- Volets roulants électriques à télécommande radio
- Résidence récente aux dernières normes énergétiques en vigueur
- Terrasse
- Environnement soigné et prestations de qualité
- Accès rapide au commerce, écoles et transports

Les informations sur les risques auxquels ce bien est exposé sont disponibles sur le site Géorisques : www.georisques.gouv.fr - Annonce rédigée par un Conseiller en coaching immobilier indépendant membre du réseau Vendez Seul Immo - - Annonce rédigée et publiée par un Agent Mandataire -
Voir plus

Bien en copropriété.
Barème des honoraires
DPE
A
B
C
D
E
F
G
GES
A
B
C
D
E
F
G
Appartement à MEYTHET
Appartement à MEYTHET
Appartement à MEYTHET
Appartement à MEYTHET
Appartement à MEYTHET
Appartement à MEYTHET
Géorisques

Les informations sur les risques auxquels ce bien est exposé sont disponibles sur le site Géorisques : www.georisques.gouv.fr

Ce site est protégé par hCaptcha Politique de confidentialité et Conditions d’utilisation s’appliquent.

En poursuivant votre navigation sans modifier vos paramètres, vous acceptez l'utilisation de cookies susceptibles de réaliser des statistiques de visite. Cliquez ici pour plus d'informations