Bénéficiez des services de nos partenaires locaux soigneusement sélectionnés
pour vous accompagner dans votre parcours d'achat immobilier

APpartement - 5 chambres - proche Golf de St Cloud

— Saint-Cloud 92210 —
1 350 000 €
245 m²
8 pièces

Nos partenaires locaux
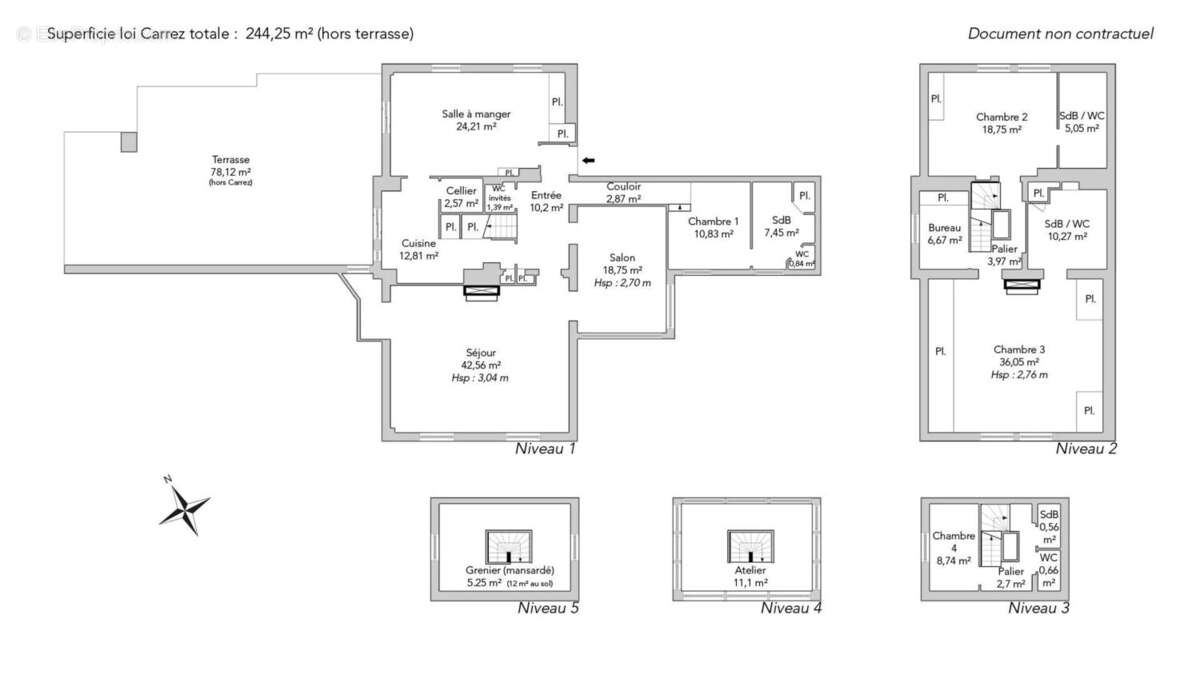
Golf de Saint Cloud Au coeur d'un écrin de verdure, nous vous proposons un hotel particulier de 245 M2. Il dispose d'une belle entrée desservant un beau séjour de 42 m2 , d'une cuisine dinatoire , d'une salle à manger prolongée par une terrasse de 78 m2 et d'une suite parentale. Au premier étage , vous découvrirez trois chambres et deux salles de bain, puis au deuxième étage une chambre supplémentaire et une salle d'eau. Enfin au dernier étage vous aurez accès à la tourelle profitant d'une vue exceptionnelle. Nombreux placard et rangements. Une cave complète ce bien. (3.05 % honoraires TTC à la charge de l'acquéreur.) Pierre de Jaham (EI) Agent Commercial - Numéro RSAC : 75[Coordonnées masquées]19 797 - Paris.
Voir plus

Honoraires d'agence de 3.05% à la charge de l'acquéreur
DPE
A
B
C
D
E
F
G
GES
A
B
C
D
E
F
G
Appartement à SAINT-CLOUD
Appartement à SAINT-CLOUD
Appartement à SAINT-CLOUD
Appartement à SAINT-CLOUD
Appartement à SAINT-CLOUD
Appartement à SAINT-CLOUD
Appartement à SAINT-CLOUD
Appartement à SAINT-CLOUD
Appartement à SAINT-CLOUD
Géorisques

Les informations sur les risques auxquels ce bien est exposé sont disponibles sur le site Géorisques : www.georisques.gouv.fr

Ce site est protégé par hCaptcha Politique de confidentialité et Conditions d’utilisation s’appliquent.

En poursuivant votre navigation sans modifier vos paramètres, vous acceptez l'utilisation de cookies susceptibles de réaliser des statistiques de visite. Cliquez ici pour plus d'informations