Bénéficiez des services de nos partenaires locaux soigneusement sélectionnés
pour vous accompagner dans votre parcours d'achat immobilier

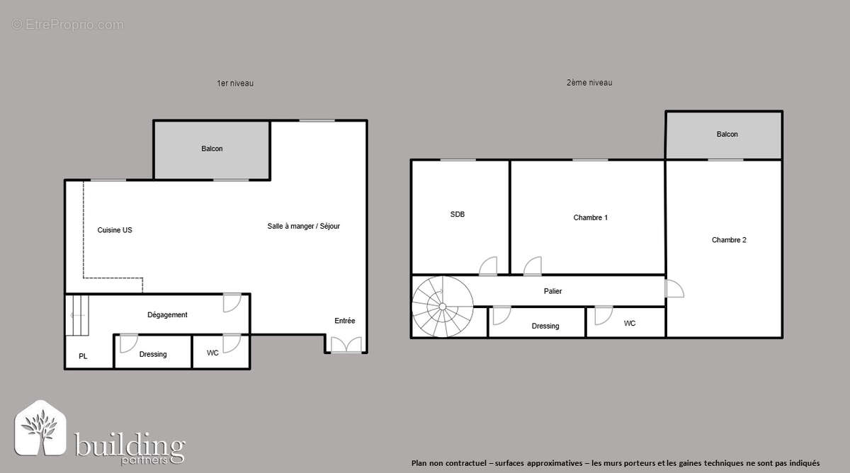
Courbevoie Faubourg de l'Arche - Appartement duplex 3 pièces de 73 m² avec espaces extérieurs

— Courbevoie 92400 —
510 000 €
73 m² / 10 m²
3 pièces
balcon/terrassejardinascenseur

Nos partenaires locaux
Au coeur du quartier recherché du Faubourg de l'Arche à Courbevoie, BUILDING PARTNERS vous propose à la vente cet appartement en duplex 3 pièces de 73 m² avec 2 balcons de 4 m² chacun, situé au 10e et dernier étage avec ascenseur d'un immeuble récent de bon standing, sécurisé et bien entretenu. En bon état général, cet appartement calme, lumineux et parfaitement optimisé offre un cadre de vie agréable sans aucune perte d'espace. L'appartement s'ouvre directement sur un séjour avec cuisine ouverte, formant un espace de vie avec salle à manger, bénéficiant d'une exposition Ouest et d'un accès à un balcon d'environ 4 m². Ce niveau comprend également un WC indépendant, un dressing dans le couloir, ainsi qu'un espace de rangement sous escalier de type cellier. A l'étage, l'espace nuit se compose de deux chambres, d'une grande salle de bain avec baignoire et douche, d'un second WC séparé, ainsi que d'un second balcon d'environ 4m². Une cave complète ce bien. Une place de parking en sus du prix est disponible dans l'immeuble. Son emplacement est idéal pour une vie de quartier pratique et agréable, à proximité immédiate des commerces, des crèches, des écoles, et des transports : ligne 1 (La Défense), RER A et tramway T2 à quelques minutes à pied. Ce bien rare à la vente séduira un couple ou une petite famille à la recherche d'un cadre de vie confortable, lumineux et parfaitement connecté à Paris. N'hésitez pas à nous contacter pour plus d'informations ou organiser une visite. Copropriété de 37 lots - dont 37 lots habitation. Charges annuelles : 4260.4 euros.
Voir plus

Référence: 17364
Bien en copropriété. Nombre de lots : 37. Charges de copropriété : 4260 €.
Honoraires à la charge du vendeur.
Barème des honoraires
DPE
A
B
C
D
E
F
G
GES
A
B
C
D
E
F
G
Appartement à COURBEVOIE
Appartement à COURBEVOIE
Appartement à COURBEVOIE
Appartement à COURBEVOIE
Appartement à COURBEVOIE
Appartement à COURBEVOIE
Appartement à COURBEVOIE
Appartement à COURBEVOIE
Appartement à COURBEVOIE
Appartement à COURBEVOIE
Géorisques

Les informations sur les risques auxquels ce bien est exposé sont disponibles sur le site Géorisques : www.georisques.gouv.fr

Ce site est protégé par hCaptcha Politique de confidentialité et Conditions d’utilisation s’appliquent.

En poursuivant votre navigation sans modifier vos paramètres, vous acceptez l'utilisation de cookies susceptibles de réaliser des statistiques de visite. Cliquez ici pour plus d'informations