Bénéficiez des services de nos partenaires locaux soigneusement sélectionnés
pour vous accompagner dans votre parcours d'achat immobilier

Grande terrasse

— Toulouse 31400 —
990 000 €
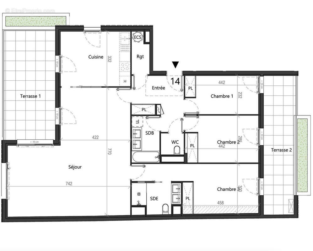
122 m²
4 pièces
parkingbalcon/terrasseascenseur

Nos partenaires locaux
Toulouse Demoiselle - Busca Appartement de standing avec 2 terrasses de 21,38 et 15,77m2. En 4ème étage sur 5 cet appartement développe une entrée avec placard, un séjour cuisine de 60,43m2 sur terrasse de 21,38m2, une salle de bain-wc, 2 chambres de 10,22 et 12,46m2 et une suite parentale de 21,86m2 salle d'eau-wc inclus. Les 3 chambres ont accès à la seconde terrasse de 15,77m2 2 places de parkings accessible depuis un monte voiture. Label RT2012, isolation renforcée, parquet contre-collé au sol, peinture lisse, volets roulants électriques, pompe à chaleur air, ballon thermodynamique ...... Quartier résidentiel très apprécié, le Busca abrite plusieurs sites incontournables tel que le jardin des plantes, le muséum d'histoire naturelle, le centre multiculturel le Quai des Savoirs ainsi que l'emblématique théâtre Sorano. Il offre d'agréables ballades au fil des rues, où artisans locaux et petites boutiques viennent compléter cet environnement exceptionnel. L'appartement est face aux Cales de Radoub et offre une vue imprenable sur cet ensemble classé monument historique ainsi que sur le Canal du Midi. Métro St Michel à 1,4km, Bus arrêt Crampel L9 en pied d'immeuble, Velo Toulouse à 1min, Rocade accessible en 5 minutes en voiture. BIEN NON SOUMIS AU DPE Pour tout renseignement : Féänor MAMEO [Coordonnées masquées]
Voir plus

Référence: VDE-14
Honoraires à la charge du vendeur.
Appartement à TOULOUSE
Appartement à TOULOUSE
Appartement à TOULOUSE
Appartement à TOULOUSE
Appartement à TOULOUSE
Géorisques

Les informations sur les risques auxquels ce bien est exposé sont disponibles sur le site Géorisques : www.georisques.gouv.fr

Ce site est protégé par hCaptcha Politique de confidentialité et Conditions d’utilisation s’appliquent.

En poursuivant votre navigation sans modifier vos paramètres, vous acceptez l'utilisation de cookies susceptibles de réaliser des statistiques de visite. Cliquez ici pour plus d'informations