Appartement 91 m² à Toulouse

— Toulouse 31300 —
525 000 €
91 m²
4 pièces
parkingbalcon/terrasseascenseur

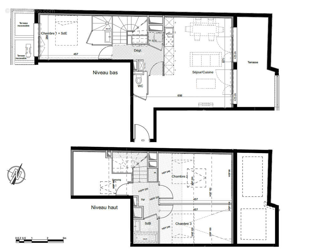
Toulouse Fer à cheval / St Cyprien, Découvrez une adresse d'exception à Toulouse au coeur du quartier emblématique de Saint-Cyprien - Fer à Cheval. 77,73m2 en carrez pour 91,23m2 au sol Appartement 4 pièces en duplex avec sur le niveau bas un séjour cuisine de 29,95m2 (entrée incluse) sur terrasse de 12,19m2 exposée est, une suite parentale, avec salle d'eau de 12,58m2 et un wc indépendant. A l'étage sous combles 2 chambres de 10,99 et 10,07m2 et une salle d'eau. 1 place de parking en sous-sol LABEL RT2012 - prestations de qualité L'appartement vous offre un cadre de vie privilégié dans l'un des plus anciens quartiers de la Ville Rose. A quelques pas de la Prairie des Filtres et des quais de la Garonne, vous vivrez dans une ambiance villageoise proche de toutes les commodités. Marché, espaces verts et hypercentre sont accessibles à pied ou à vélo. Belle copropriété : façade en briques rouges, menuiseries élégantes et grands espaces lumineux. BIEN NON SOUMIS AU DPE Pour tout renseignement : Féänor MAMEO [Coordonnées masquées]
Voir plus

Référence: IDY-53
Appartement à TOULOUSE
Appartement à TOULOUSE
Appartement à TOULOUSE
Géorisques

Les informations sur les risques auxquels ce bien est exposé sont disponibles sur le site Géorisques : www.georisques.gouv.fr

Ce site est protégé par hCaptcha Politique de confidentialité et Conditions d’utilisation s’appliquent.

En poursuivant votre navigation sans modifier vos paramètres, vous acceptez l'utilisation de cookies susceptibles de réaliser des statistiques de visite. Cliquez ici pour plus d'informations