Dernier etage et grande terrasse

— Pins-Justaret 31860 —
329 000 €
93 m²
4 pièces
parkingbalcon/terrasseascenseur

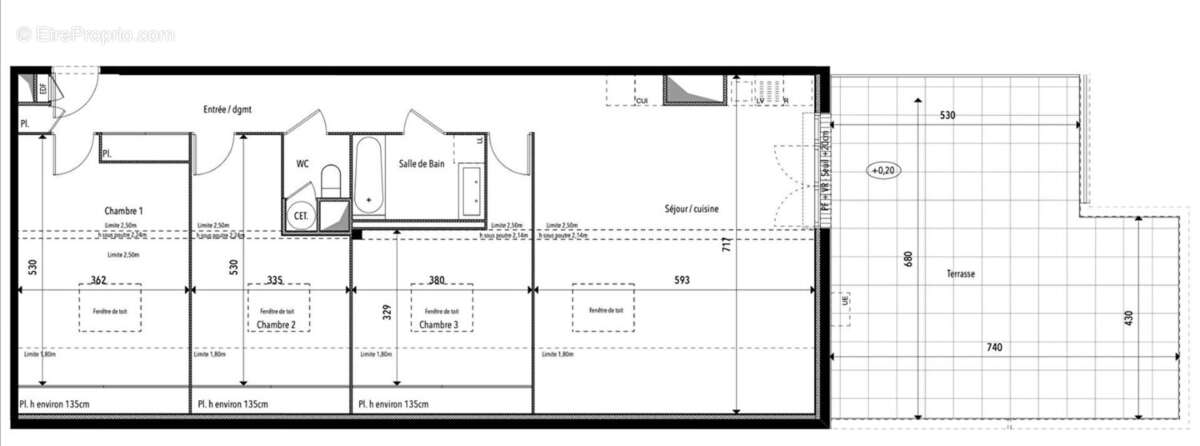
Pins Justaret, A quelques encablures du coeur de ville, dans une copropriété de 28 lots répartis sur 2 bâtiments avec ascenseur on vous propose cet appartement 4 pièces en dernier étage avec une belle terrasse. En dernier étage cet appartement 4 pièces se compose d'un séjour cuisine de 33,44m2 exposé Est ouvert sur la terrasse de 46,94m2, 3 chambres de 15,21, 12,03 et 11,38m2, une salle de bain et un wc séparé. 2 places de parking dont un box complètent cet appartement. De conception RT2012 des prestations soignées : pompe à chaleur air/air, ballon d'eau chaude thermodynamique, carrelage au sol, parquet dans les chambres, peinture lisse, volets roulants électriques .... Bâtie autour d'un espace vert commun aménagé la copropriété conserve le caractère vernaculaire et champêtre de Pins Justaret. L'architecture reprend les codes traditionnels des constructions Toulousaines avec l'intégration moderne des briques blanches. Le coeur d'îlot largement planté et végétalisé offre un espace collectif ombragé. BIEN NON SOUMIS AU DPE Pour tout renseignement : Féänor MAMEO [Coordonnées masquées]
Voir plus

Référence: HOR-A22
Honoraires à la charge du vendeur.
DPE
A
B
C
D
E
F
G
GES
A
B
C
D
E
F
G
Appartement à PINS-JUSTARET
Appartement à PINS-JUSTARET
Appartement à PINS-JUSTARET
Appartement à PINS-JUSTARET
Appartement à PINS-JUSTARET
Appartement à PINS-JUSTARET
Appartement à PINS-JUSTARET
Appartement à PINS-JUSTARET
Appartement à PINS-JUSTARET
Appartement à PINS-JUSTARET
Appartement à PINS-JUSTARET
Appartement à PINS-JUSTARET
Géorisques

Les informations sur les risques auxquels ce bien est exposé sont disponibles sur le site Géorisques : www.georisques.gouv.fr

Ce site est protégé par hCaptcha Politique de confidentialité et Conditions d’utilisation s’appliquent.

En poursuivant votre navigation sans modifier vos paramètres, vous acceptez l'utilisation de cookies susceptibles de réaliser des statistiques de visite. Cliquez ici pour plus d'informations