Bénéficiez des services de nos partenaires locaux soigneusement sélectionnés
pour vous accompagner dans votre parcours d'achat immobilier

CENTRE VILLE - 235 m² habitables sur jardin clos de 1 100 m² à vendre à Triel sur Seine

— Triel-Sur-Seine 78510 —
749 000 €
237 m² / 1 100 m²
8 pièces
parkingbalcon/terrassejardin

Nos partenaires locaux
Dans l'un des secteurs recherchés de Triel-sur-Seine, en plein centre ville, au cœur d'un environnement résidentiel préservé, se dévoile une propriété rare et chargée d'histoire.

Edifiée au XVIIᵉ siècle, cette demeure fut l'annexe de la maison de la nourrice du roi Louis XVI et de son frère (appelé "Monsieur").

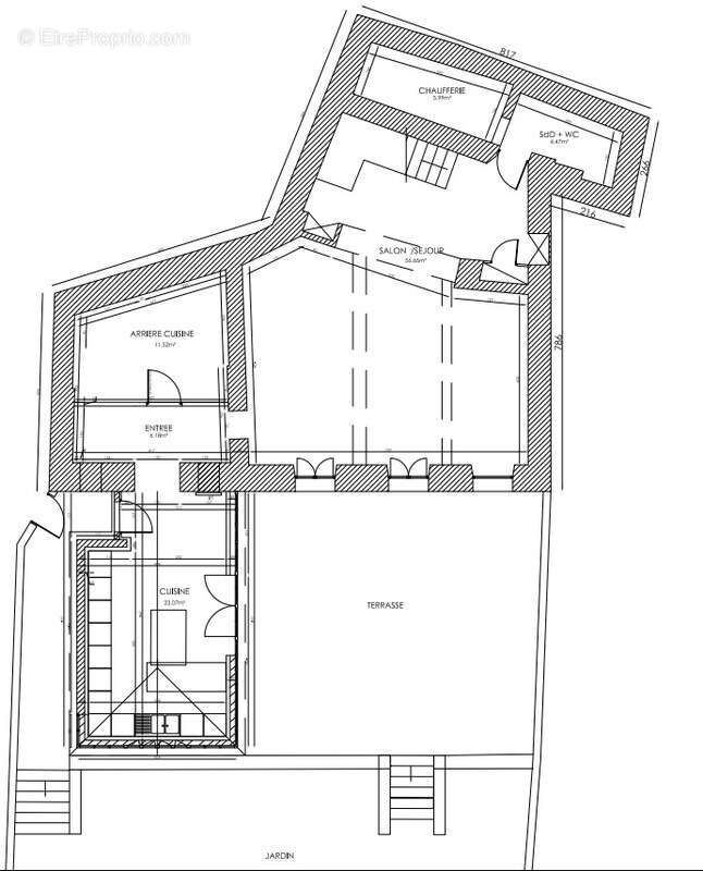
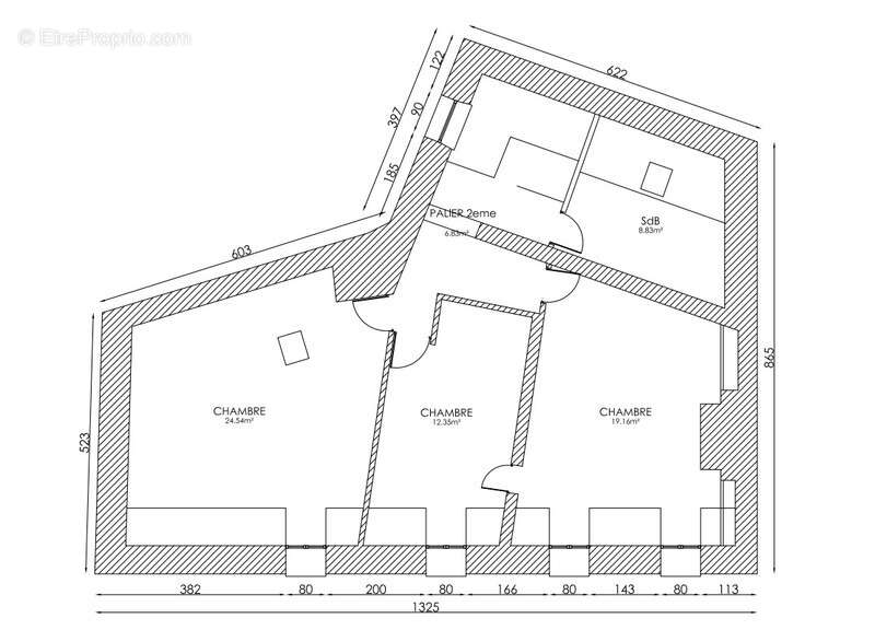
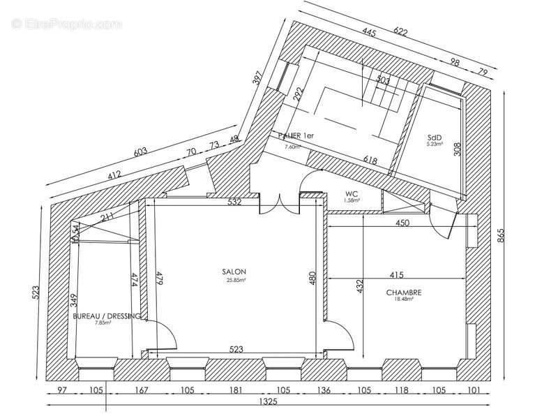
Développant 235 m² habitables environ, répartis sur trois niveaux, la maison a fait l'objet d'une rénovation complète en 2011/2012. La verrière construite en 2015 abrite une cuisine dînatoire de qualité, meublée et équipée, donnant sur une grande terrasse qui prolonge naturellement les espaces de vie de la maison.

Les volumes sont généreux, la lumière omniprésente, chaque espace respirant le calme et la sérénité. Les plans joints aux photos vous permettront d'en apprécier la distribution exacte.

À l'extérieur, la propriété s'inscrit dans un jardin clos et arboré de 1 100 m², entièrement préservé, véritable écrin de verdure propice à la détente et aux moments de convivialité.

Une dépendance d'environ 60 m², faisant office de garage pouvant accueillir plusieurs véhicules, vient parfaire cet ensemble rare – un atout précieux et recherché.

Chauffage par chaudière au GAZ -
DPE : D.
Assainissement conforme.

Les honoraires d'agence sont à la charge de l'acquéreur, soit 4,71% TTC du prix hors honoraires.
Les informations sur les risques auxquels ce bien est exposé sont disponibles sur le site Géorisques : www. georisques. gouv. fr.

Contactez Jérôme GAMBARDELLA Entrepreneur Individuel à Responsabilité Limitée, Agent commercial OptimHome (RSAC N°390 794 618 Greffe de VERSAILLES) [Coordonnées masquées] (réf. 599077 )
Voir plus

Référence: 830036826912
DPE
A
B
C
D
E
F
G
GES
A
B
C
D
E
F
G
Maison à TRIEL-SUR-SEINE
Maison à TRIEL-SUR-SEINE
Maison à TRIEL-SUR-SEINE
Maison à TRIEL-SUR-SEINE
Maison à TRIEL-SUR-SEINE
Maison à TRIEL-SUR-SEINE
Maison à TRIEL-SUR-SEINE
Maison à TRIEL-SUR-SEINE
Maison à TRIEL-SUR-SEINE
Maison à TRIEL-SUR-SEINE
Maison à TRIEL-SUR-SEINE
Maison à TRIEL-SUR-SEINE
Maison à TRIEL-SUR-SEINE
Maison à TRIEL-SUR-SEINE
Maison à TRIEL-SUR-SEINE
Maison à TRIEL-SUR-SEINE
Maison à TRIEL-SUR-SEINE
Maison à TRIEL-SUR-SEINE
Maison à TRIEL-SUR-SEINE
Maison à TRIEL-SUR-SEINE
Maison à TRIEL-SUR-SEINE
Maison à TRIEL-SUR-SEINE
Géorisques

Les informations sur les risques auxquels ce bien est exposé sont disponibles sur le site Géorisques : www.georisques.gouv.fr

Ce site est protégé par hCaptcha Politique de confidentialité et Conditions d’utilisation s’appliquent.

En poursuivant votre navigation sans modifier vos paramètres, vous acceptez l'utilisation de cookies susceptibles de réaliser des statistiques de visite. Cliquez ici pour plus d'informations