Bénéficiez des services de nos partenaires locaux soigneusement sélectionnés
pour vous accompagner dans votre parcours d'achat immobilier

Maison T3 59m² - Chantilly - 1870.1.7.7

— Chantilly 60500 —
185 000 €
59 m²
3 pièces

Nos partenaires locaux
CHANTILLY 15, rue des Aubépines
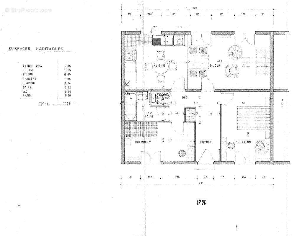
Maison de type 3 de 59 m² environ, sur parcelle de 200 m².
La maison comprend : entrée, séjour, cuisine, 2 chambres, WC, salle de bain, jardin et box séparé.
Chauffage individuel gaz de ville, menuiseries PVC double vitrage.
CLASSE ENERGIE : E- CLASSE CLIMAT : E
Montant estimé des dépenses annuelles d'énergie pour un usage standard : entre 1.512 € et 2.046 € par an. Prix moyens des énergies indexés sur les années 2021, 2022 et 2023 (abonnements compris).
Prix : 185.000,00 €
Vous pouvez bénéficier d'une subvention de 8.000 € pour l'achat de ce bien ! *
* selon les conditions d'attribution votées par le Portail des aides et subventions du Conseil départemental de l'Oise - Département de l'Oise .
Les informations sur les risques éventuels auxquels ce bien est exposé sont disponibles sur le site Géorisques : www.georisques.gouv.fr
Voir plus

Référence: 1870.1.7.7
DPE
A
B
C
D
E
F
G
GES
A
B
C
D
E
F
G
Maison à CHANTILLY
Maison à CHANTILLY
Maison à CHANTILLY
Maison à CHANTILLY
Maison à CHANTILLY
Maison à CHANTILLY
Maison à CHANTILLY
Maison à CHANTILLY
Maison à CHANTILLY
Géorisques

Les informations sur les risques auxquels ce bien est exposé sont disponibles sur le site Géorisques : www.georisques.gouv.fr

Ce site est protégé par hCaptcha Politique de confidentialité et Conditions d’utilisation s’appliquent.

En poursuivant votre navigation sans modifier vos paramètres, vous acceptez l'utilisation de cookies susceptibles de réaliser des statistiques de visite. Cliquez ici pour plus d'informations