Bénéficiez des services de nos partenaires locaux soigneusement sélectionnés
pour vous accompagner dans votre parcours d'achat immobilier

Opportunité

— Begles 33130 —
190 000 €
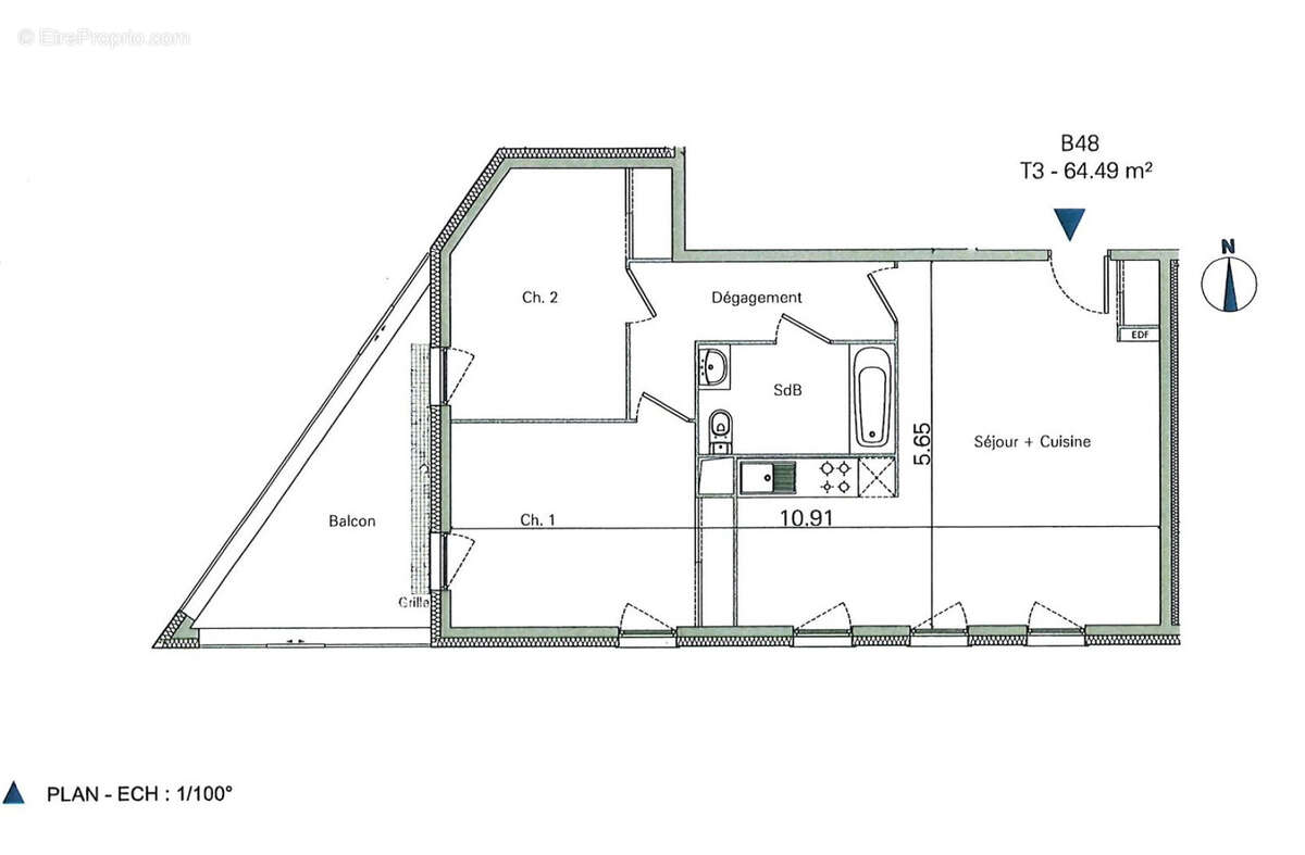
64 m²
3 pièces
parkingbalcon/terrasse

Nos partenaires locaux
Dans un immeuble de 2011 nous vous proposons un appartement de 64.68m2 avec 2 chambres situé au rez-de-chaussée d'un immeuble de 3 étages
Celui ci est composé d'une pièce de vie avec cusine ouverte de 29.13m2, une salle de bain avec toilettes 5.22m2, un dégagement qui améne aux 2 chambres de 13.2m2 et 11m2 avec placard et permet de couper les pièces de vie et la partie nuit 6.13m2.
Un balcon de 7 m2 permet de profiter d'un espace extérieur et une place de parking compléte ce bien
Cet appartement est situé proche de l'arret de tram LA BELLE ROSE à Bègles.
Les charges de copro de 2024 sont de 1700€
Pour plus d'information n'hésitez pas à nous contacter, une visite virtuelle est disponible.
Voir plus

Honoraires d'agence de 7.04% à la charge de l'acquéreur
Barème des honoraires
DPE
A
B
C
D
E
F
G
GES
A
B
C
D
E
F
G
Appartement à BEGLES
Appartement à BEGLES
Appartement à BEGLES
Appartement à BEGLES
Appartement à BEGLES
Appartement à BEGLES
Appartement à BEGLES
Appartement à BEGLES
Géorisques

Les informations sur les risques auxquels ce bien est exposé sont disponibles sur le site Géorisques : www.georisques.gouv.fr

Ce site est protégé par hCaptcha Politique de confidentialité et Conditions d’utilisation s’appliquent.

En poursuivant votre navigation sans modifier vos paramètres, vous acceptez l'utilisation de cookies susceptibles de réaliser des statistiques de visite. Cliquez ici pour plus d'informations