Bénéficiez des services de nos partenaires locaux soigneusement sélectionnés
pour vous accompagner dans votre parcours d'achat immobilier

Belle maison 7 pièces de 196m² avec grand jardin Bagneux

— Bagneux 92220 —
749 800 €
196 m² / 498 m²
7 pièces
parkingjardin

Nos partenaires locaux
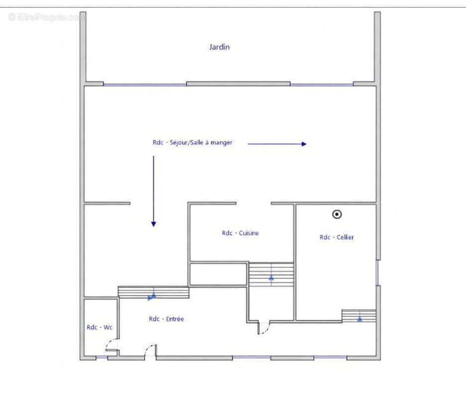
** Opportunité Expressimmo ** A Bagneux-sur-Seine, découvrez une maison familiale de caractère d'environ 200 m², idéale pour ceux qui recherchent de l'espace et du potentiel . Dès l'entrée, la maison annonce une organisation pratique : WC indépendant et chaufferie. Le coeur de la maison se dévoile ensuite avec une superbe pièce de vie d'environ 50 m². Lumineuse et spacieuse, elle accueille une cuisine ouverte récente, entièrement aménagée et équipée , un vrai lieu de vie convivial où l'on se projette facilement. A l'étage, une grande chambre d'environ 30 m² avec salle de bain privative (double vasque) offre un bel espace parental. La salle de bain et la salle d'eau sont restées dans le style d'origine des années 70, nécessitera un rafraîchissement c'est une belle opportunité de la repenser à votre goût. Deux autres chambres complètent ce niveau. Sous les combles, deux chambres supplémentaires, chacune avec leur salle d'eau et WC, permettent d'accueillir famille, adolescents ou invités en toute indépendance. A l'extérieur, le terrain de 498m² réserve un vrai avantage : deux accès sur deux rues différentes. Un atout rare qui apporte à la fois praticité et potentiel d'aménagement. Le jardin dispose également d'un cabanon, parfait pour le rangement ou un espace bricolage et de plusieurs arbres fruitiers. La maison est en très bon état général. Seules les pièces d'eau méritent d'être modernisées pour révéler tout le potentiel du bien. Le DPE est classé D, un bon équilibre pour ce type de surface. Une maison saine, lumineuse et généreuse, qui offre une base solide et de nombreuses possibilités pour créer un lieu de vie à votre image. pied. Une place et stationnement en extérieur ainsi q'une cour pavée complètent cette maison. Prix de vente : 749 800 euros HAI Mandat 1109 Bien très rare dans le secteur. A visiter sans tarder !!!
Voir plus

Honoraires à la charge du vendeur.
DPE
A
B
C
D
E
F
G
Maison à BAGNEUX
Maison à BAGNEUX
Maison à BAGNEUX
Maison à BAGNEUX
Maison à BAGNEUX
Maison à BAGNEUX
Maison à BAGNEUX
Maison à BAGNEUX
Maison à BAGNEUX
Maison à BAGNEUX
Maison à BAGNEUX
Maison à BAGNEUX
Géorisques

Les informations sur les risques auxquels ce bien est exposé sont disponibles sur le site Géorisques : www.georisques.gouv.fr

Ce site est protégé par hCaptcha Politique de confidentialité et Conditions d’utilisation s’appliquent.

En poursuivant votre navigation sans modifier vos paramètres, vous acceptez l'utilisation de cookies susceptibles de réaliser des statistiques de visite. Cliquez ici pour plus d'informations