Bénéficiez des services de nos partenaires locaux soigneusement sélectionnés
pour vous accompagner dans votre parcours d'achat immobilier

Voir tous les partenaires locaux

Appartement 38 m² à Paris-15e

— Paris-15e 75015 —
355 500 €
38 m²
3 pièces

Nos partenaires locaux
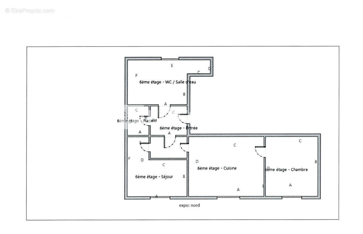
CHARME DE L'ANCIEN - DERNIER ÉTAGE LUMINEUX Idéalement situé au pied du métro Lourmel, votre agence Laforêt Lourmel vous propose ce charmant APPARTEMENT 3 pièces de 2 chambres niché au 6ème et dernier étage d'une copropriété ancienne de standing sécurisée sans ascenseur. Vous profiterez d'un emplacement privilégié à proximité immédiate des commerces, écoles et transports : métro Ligne 8 Lourmel à seulement 1 minute et nombreuses lignes de bus. Traversant Nord-Sud, ce bien bénéficie d'une belle luminosité tout au long de la journée et d'un agencement optimisé en plan étoile offrant un beau potentiel d'aménagement. Il se compose : d'une entrée, un cuisine/séjour, de deux chambres, d'un placard de rangement ainsi qu'une salle d'eau avec WC. Un rafraîchissement est à prévoir laissant l'opportunité de repenser l'espace selon vos envies. Vous serez séduit par le charme de l'ancien : moulures, parquet, belle hauteur sous plafond, mais aussi par le calme, la luminosité et le potentiel de modularité du plan. Une cave complète ce bien. (5.18 % honoraires TTC à la charge de l'acquéreur.) Copropriété de 16 lots. Charges annuelles : 2164 euros.
Voir plus

Référence: 4847
Bien en copropriété. Nombre de lots : 16. Charges de copropriété : 2164 €.
Honoraires d'agence de 5.18% à la charge de l'acquéreur
Barème des honoraires
Appartement à PARIS-15E
Appartement à PARIS-15E
Appartement à PARIS-15E
Appartement à PARIS-15E
Appartement à PARIS-15E
Géorisques

Les informations sur les risques auxquels ce bien est exposé sont disponibles sur le site Géorisques : www.georisques.gouv.fr

Ce site est protégé par hCaptcha Politique de confidentialité et Conditions d’utilisation s’appliquent.

En poursuivant votre navigation sans modifier vos paramètres, vous acceptez l'utilisation de cookies susceptibles de réaliser des statistiques de visite. Cliquez ici pour plus d'informations