Maison 118m² à juvignac

— Juvignac 34990 —
535 000 €
118 m² / 946 m²
6 pièces
parkingjardinpiscine

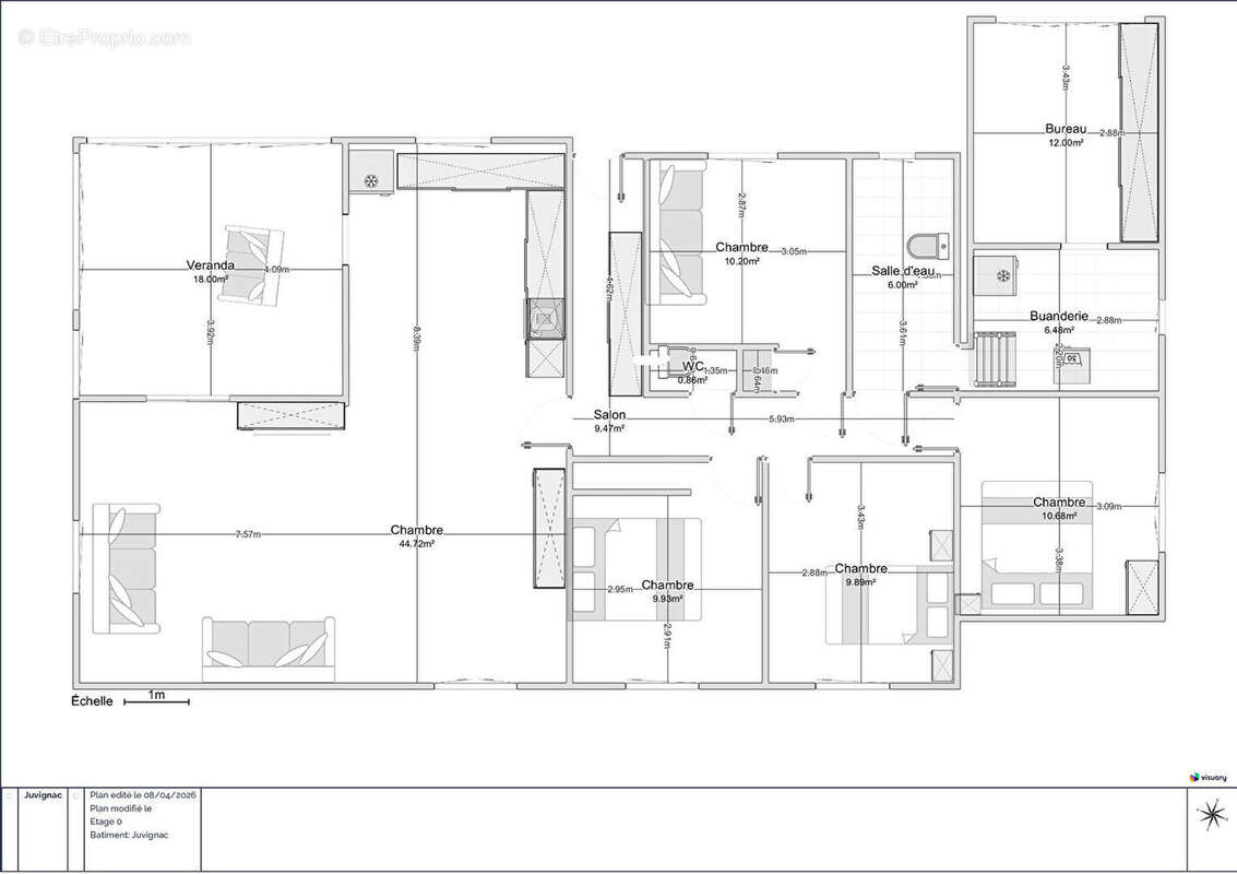
ERA a le plaisir de vous présenter à la vente cette belle maison de plain-pied, d'une surface de 118 m², édifiée sur un terrain arboré de 950 m², idéalement située au fond d'une impasse calme à Juvignac.
Dès l'entrée, vous serez séduits par une agréable pièce de vie de 45 m² avec cuisine ouverte, baignée de lumière et prolongée par une véranda de 18 m², offrant un espace de vie supplémentaire tourné vers le jardin.
Côté nuit, la maison propose quatre chambres avec placards, une salle d'eau avec WC, un WC séparé, une buanderie ainsi qu'un espace bureau. Des combles aménagés viennent compléter l'ensemble, idéals pour le rangement.
En excellent état général, ce bien offre un confort moderne avec climatisation gainable, volets centralisés, parquet et cuisine récente, façade refaite...
Le jardin arboré, sans vis-à-vis et exposé sud-ouest, offre un véritable havre de paix. Vous profiterez pleinement des beaux jours grâce à une piscine au sel en béton projeté, une spacieuse terrasse en bois de 35 m², ainsi qu'un espace cuisine d'été déjà en place, prêt à être aménagé selon vos envies
Le stationnement est facilité grâce à un carport ainsi qu'à plusieurs places dans l'allée.
Située dans le secteur des Hauts de Fontcaude, à proximité du golf, des transports et des écoles, cette maison offre un parfait équilibre entre tranquillité, cadre de vie et accessibilité.
Ce bien n'attend plus que vous, appelez-nous pour venir le découvrir.
Voir plus

Référence: 5064
DPE
A
B
C
D
E
F
G
GES
A
B
C
D
E
F
G
Maison à JUVIGNAC
Maison à JUVIGNAC
Maison à JUVIGNAC
Maison à JUVIGNAC
Maison à JUVIGNAC
Maison à JUVIGNAC
Maison à JUVIGNAC
Maison à JUVIGNAC
Maison à JUVIGNAC
Maison à JUVIGNAC
Maison à JUVIGNAC
Maison à JUVIGNAC
Maison à JUVIGNAC
Maison à JUVIGNAC
Géorisques

Les informations sur les risques auxquels ce bien est exposé sont disponibles sur le site Géorisques : www.georisques.gouv.fr

Ce site est protégé par hCaptcha Politique de confidentialité et Conditions d’utilisation s’appliquent.

En poursuivant votre navigation sans modifier vos paramètres, vous acceptez l'utilisation de cookies susceptibles de réaliser des statistiques de visite. Cliquez ici pour plus d'informations