Dernier étage d'exception avec grande terrasse et vue dégagée

— Toulon 83100 —
399 000 €
80 m²
4 pièces
parkingbalcon/terrasse

En exclusivité, nous vous présentons un appartement d’exception situé au dernier étage d’une résidence contemporaine de 2022, où élégance, confort et sérénité se conjuguent au quotidien.
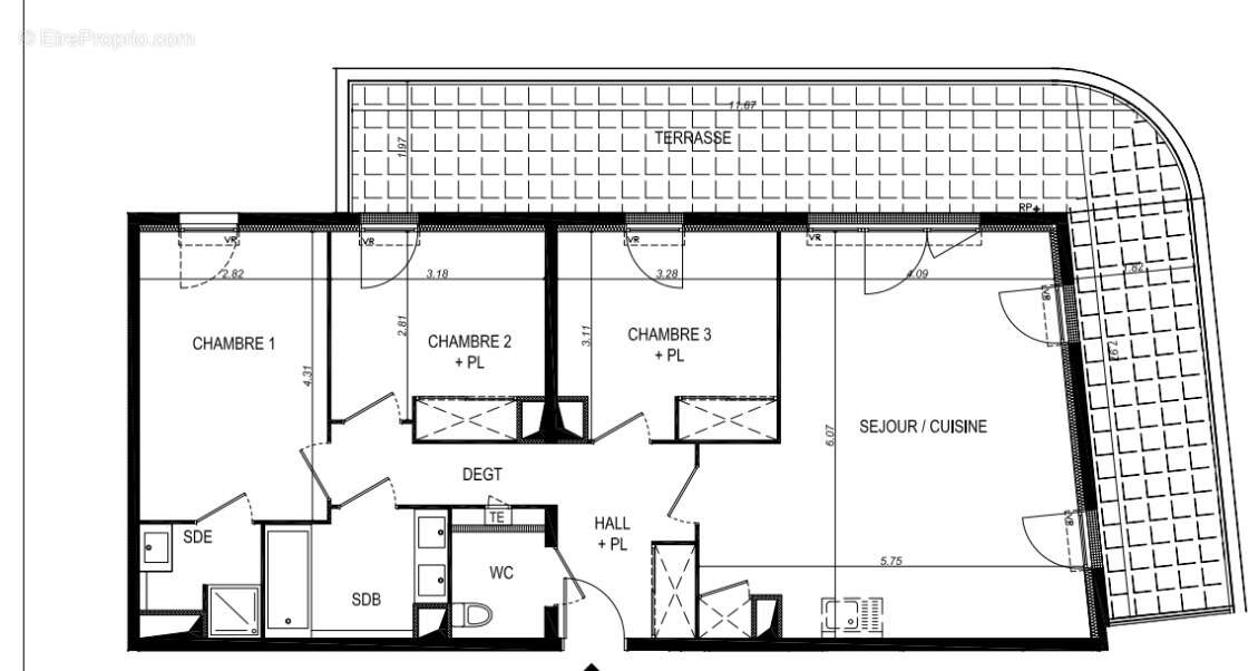
Dès l’entrée, l’appartement révèle des volumes harmonieux et une luminosité remarquable.
La pièce de vie, prolongée par une cuisine ouverte entièrement aménagée et équipée, offre un espace chaleureux et raffiné, pensé pour recevoir et profiter pleinement de chaque instant avec un accès de plain-pied à la terrasse de 36 m2, lieu de vie extérieur offrant une vue dégagée sur le Mont Faron et la ville de Toulon..
Côté nuit, une suite parentale avec salle d’eau et deux chambres bénéficiant d’un accès à la terrasse.
L’environnement est à l’image du bien : calme, privilégié et recherché, à proximité immédiate d’une école privée, des commerces, des services et des transports, tout en préservant une atmosphère paisible.
En sous-sol, une double place de parking permet de stationner deux véhicules en toute facilité (moyennant 30 000€ en plus du prix de vente), complété par un local vélo indépendant. La résidence, entièrement sécurisée et sous surveillance, garantit un cadre de vie serein et confidentiel.
Un bien rare, où chaque détail a été pensé pour offrir une qualité de vie exceptionnelle. Une opportunité unique, disponible exclusivement pour une clientèle en quête d’un appartement contemporain, lumineux et doté d’un extérieur d’exception.
Prix : 399 000€ honoraires inclus à la charge du vendeur.
DPE : B/A indique des performances énergétiques performantes.
Terrasse en ville immatriculé au R.S.A.C. MARSEILLE no 478 760 218
Nombre de Lots de Copropriétés 43 lots. Aucun travaux à prévoir. Pas de procédure en cours.
Les informations sur les risques auxquels ce bien est exposé sont disponibles sur le site Géorisques : www.georisques.gouv.fr
Voir plus

Référence: 1600
Bien en copropriété. Nombre de lots : 86. Charges de copropriété : 2000 €.
Honoraires à la charge du vendeur.
Barème des honoraires
DPE
A
B
C
D
E
F
G
GES
A
B
C
D
E
F
G
Appartement à TOULON
Appartement à TOULON
Appartement à TOULON
Appartement à TOULON
Appartement à TOULON
Appartement à TOULON
Appartement à TOULON
Appartement à TOULON
Appartement à TOULON
Appartement à TOULON
Appartement à TOULON
Appartement à TOULON
Appartement à TOULON
Appartement à TOULON
Géorisques

Les informations sur les risques auxquels ce bien est exposé sont disponibles sur le site Géorisques : www.georisques.gouv.fr

Ce site est protégé par hCaptcha Politique de confidentialité et Conditions d’utilisation s’appliquent.

En poursuivant votre navigation sans modifier vos paramètres, vous acceptez l'utilisation de cookies susceptibles de réaliser des statistiques de visite. Cliquez ici pour plus d'informations