Bénéficiez des services de nos partenaires locaux soigneusement sélectionnés
pour vous accompagner dans votre parcours d'achat immobilier

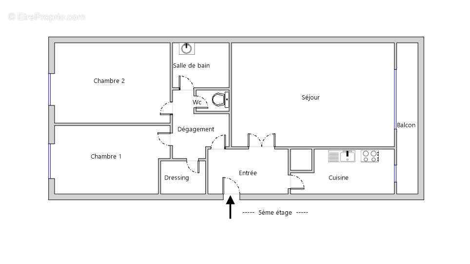
COURBEVOIE - Rue Armand Sylvestre - dernier étage 3 pièces 64m² + balcon 6m² vendu occupé

— Courbevoie 92400 —
460 000 €
64 m²
3 pièces
parkingascenseur

Nos partenaires locaux
Le cabinet THISSE vous propose ce 3 pièces de 64 m² traversant, lumineux et ensoleillé au 5éme étage avec ascenseur dans une résidence moderne 1970 avec gardien. Plan fonctionnel sans aucune perte de place. Le bien comprend une entrée - un séjour de 19.90 m² ouvert sur balcon de 6 m² - cuisine 7.7 m² ( possibilité d'ouvrir sur séjour soit pièce à vivre 27.70 m ² ) - 2 chambres - 1 dressing - 1 salle de bain - WC séparés - cave - Chauffage et eau chaude collective ( gaz naturel ) - parking en sous -sol inclus accessible par ascenseur 8 min à pied gare Bécon les Bruyéres ou Asnières sur seine Bien vendu occupé bail en cours jusqu'au 01/06/2027 Bien avec travaux à prévoir notamment double vitrage / DPE F Bien soumis au statut de la copropriété - nb de lot : - syndic : Cabinet DUBREUIL - quote-part annuelles de charges : 4200 euros dont 3900 euros récupérables sur locataires. Pour une visite contacter Geoffroy [Coordonnées masquées] (4.55 % honoraires TTC à la charge de l'acquéreur.)
Voir plus

Honoraires d'agence de 4.55% à la charge de l'acquéreur
DPE
A
B
C
D
E
F
G
GES
A
B
C
D
E
F
G
Appartement à COURBEVOIE
Appartement à COURBEVOIE
Appartement à COURBEVOIE
Appartement à COURBEVOIE
Appartement à COURBEVOIE
Appartement à COURBEVOIE
Appartement à COURBEVOIE
Appartement à COURBEVOIE
Appartement à COURBEVOIE
Appartement à COURBEVOIE
Appartement à COURBEVOIE
Appartement à COURBEVOIE
Appartement à COURBEVOIE
Appartement à COURBEVOIE
Géorisques

Les informations sur les risques auxquels ce bien est exposé sont disponibles sur le site Géorisques : www.georisques.gouv.fr

Ce site est protégé par hCaptcha Politique de confidentialité et Conditions d’utilisation s’appliquent.

En poursuivant votre navigation sans modifier vos paramètres, vous acceptez l'utilisation de cookies susceptibles de réaliser des statistiques de visite. Cliquez ici pour plus d'informations