Bénéficiez des services de nos partenaires locaux soigneusement sélectionnés
pour vous accompagner dans votre parcours d'achat immobilier

Appartement 31 m² à Riom

— Riom 63200 —
121 000 €
31 m²
1 pièce
balcon/terrasseascenseur

Nos partenaires locaux
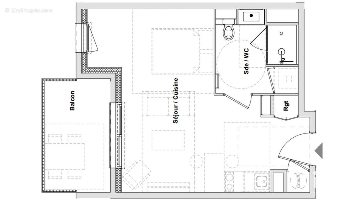
Iad France - Sarah Rozière ([Coordonnées masquées]) vous propose : Appartement T1 avec balcon à Riom. Située au cOEur de l'écoquartier de l'Ambène, dans un environnement moderne et verdoyant, la résidence contemporaine Les Rives de l'Ambène conjugue élégance architecturale et confort de vie. À proximité des commerces, des transports, des bassins de vie et des espaces naturels, cette adresse offre un cadre paisible et qualitatif à seulement quelques minutes du centre de Riom et de Clermont-Ferrand. Disponible 2027. Un appartement raffiné : Situé au 3 ème étage, cet appartement T1 de 31 m² environ habitables se prolonge par un balcon de 7 m² environ.- Pièce de vie de 26 m² environ.- Salle d'eau moderne. De belles prestations : - Chauffage et production d'eau chaude via système collectif.- Menuiseries extérieures avec double vitrage isolant, volets roulants électriques.- Résidence sécurisée avec visiophone, contrôle d'accès Vigik et ascenseur.- Locaux vélos sécurisés, espaces paysagers, sous-sols aménagés. L'art de vivre aux Rives de l'Ambène : - À deux pas des commerces et services du quartier.- À proximité des axes majeurs vers Clermont-Ferrand.- Environnement paisible, moderne et parfaitement desservi.- Accès rapide aux zones d'activités, écoles et transports. N'hésitez pas à me contacter pour plus d'informations ou pour un accompagnement sur mesure. Honoraires d'agence à la charge du vendeur. Bien non soumis au DPE. Les informations sur les risques auxquels ce bien est exposé sont disponibles sur le site Géorisques : www.georisques.gouv.fr. La présente annonce immobilière a été rédigée sous la responsabilité éditoriale de Mlle Sarah Rozière EI (ID 83696), mandataire indépendant en immobilier (sans détention de fonds), agent commercial de la SAS I@D France immatriculé au RSAC de Clermont-Ferrand sous le numéro 978616993, titulaire de la carte de démarchage immobilier pour le compte de la société I@D France SAS. Retrouvez tous nos biens sur notre site internet. www.iadfrance.fr.Informations LOI ALUR : Honoraires charge vendeur. (gedeon_6727_32176494)
Voir plus

Référence: 1889902-2
Honoraires à la charge du vendeur.
Barème des honoraires
Photo 1 - Appartement à RIOM
Photo 1
Photo 2 - Appartement à RIOM
Photo 2
Photo 3 - Appartement à RIOM
Photo 3
Photo 4 - Appartement à RIOM
Photo 4
Photo 5 - Appartement à RIOM
Photo 5
Photo 6 - Appartement à RIOM
Photo 6
Géorisques

Les informations sur les risques auxquels ce bien est exposé sont disponibles sur le site Géorisques : www.georisques.gouv.fr

Ce site est protégé par hCaptcha Politique de confidentialité et Conditions d’utilisation s’appliquent.

En poursuivant votre navigation sans modifier vos paramètres, vous acceptez l'utilisation de cookies susceptibles de réaliser des statistiques de visite. Cliquez ici pour plus d'informations