Bénéficiez des services de nos partenaires locaux soigneusement sélectionnés
pour vous accompagner dans votre parcours d'achat immobilier

Appartement 56 m² à Saint-Gratien

— Saint-Gratien 95210 —
189 000 €
56 m² / 21 m²
2 pièces
parkingbalcon/terrasse

Nos partenaires locaux
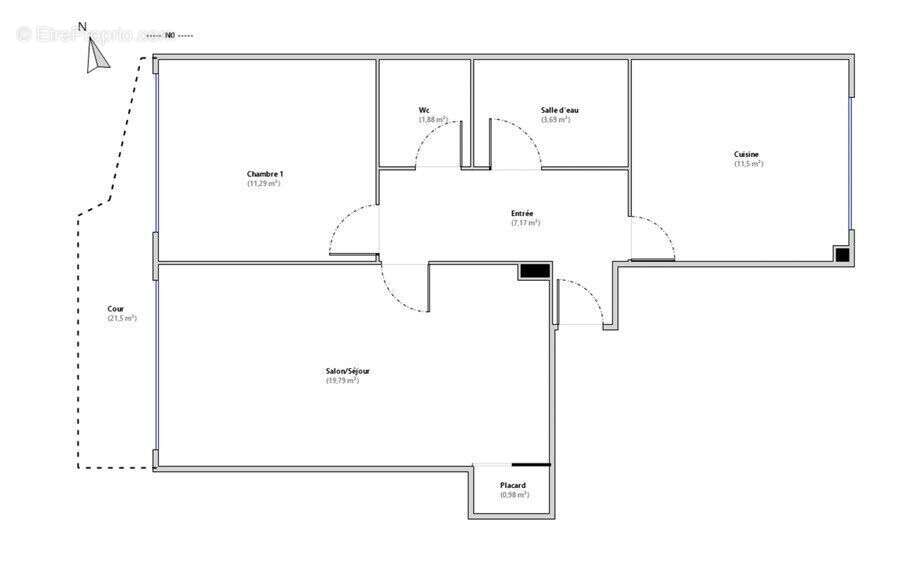
Iad France - Olivier Vigouroux vous propose : Dans un environnement très recherché, situé à seulement 5 minutes à pied de la gare et à proximité des commerces, bel appartement d'une surface loi Carrez de 56.30 m² comprenant une entrée, un séjour avec un accès direct à la terrasse et au jardin, une cuisine parfaitement aménagée et équipée, une chambre, une salle d'eau, un wc séparé. Une place de stationnement en extérieur complète ce bien. La presente annonce immobiliere vise 2 lots situés dans une copropriété de 91 lots au total et ne faisant l'objet d'aucune procédure en cours citée à l'article L. 721-1 du code de la construction et de l'habitation. Montant moyen mensuel de charges déclaré par le vendeur : 231.67¤ par mois (soit 2780 ¤ annuel). Honoraires d'agence à la charge du vendeur. Information d'affichage énergétique sur ce bien : classe ENERGIE F indice 292 et classe CLIMAT F indice 91. Les informations sur les risques auxquels ce bien est exposé, y compris l'obligation légale de débroussaillement, sont disponibles sur le site Géorisques : http://www.georisques.gouv.fr.La présente annonce immobilière a été rédigée sous la responsabilité éditoriale de M Olivier Vigouroux mandataire indépendant en immobilier (sans détention de fonds), agent commercial de la SAS I@D France immatriculé au RSAC de PONTOISE sous le numéro 838387827, titulaire de la carte de démarchage immobilier pour le compte de la société I@D France SAS.Informations LOI ALUR : Soumis au régime de copropriété. Nombre de lots : 91. Quote part annuelle(moyenne) : 2780 euros. Honoraires charge vendeur. (gedeon_6727_32185033)
Voir plus

Référence: 1889543
Bien en copropriété. Nombre de lots : 91. Charges de copropriété : 2780 €.
Honoraires à la charge du vendeur.
Barème des honoraires
DPE
A
B
C
D
E
F
G
GES
A
B
C
D
E
F
G
Photo 1 - Appartement à SAINT-GRATIEN
Photo 1
Photo 2 - Appartement à SAINT-GRATIEN
Photo 2
Photo 3 - Appartement à SAINT-GRATIEN
Photo 3
Photo 4 - Appartement à SAINT-GRATIEN
Photo 4
Photo 5 - Appartement à SAINT-GRATIEN
Photo 5
Photo 6 - Appartement à SAINT-GRATIEN
Photo 6
Photo 7 - Appartement à SAINT-GRATIEN
Photo 7
Géorisques

Les informations sur les risques auxquels ce bien est exposé sont disponibles sur le site Géorisques : www.georisques.gouv.fr

Ce site est protégé par hCaptcha Politique de confidentialité et Conditions d’utilisation s’appliquent.

En poursuivant votre navigation sans modifier vos paramètres, vous acceptez l'utilisation de cookies susceptibles de réaliser des statistiques de visite. Cliquez ici pour plus d'informations