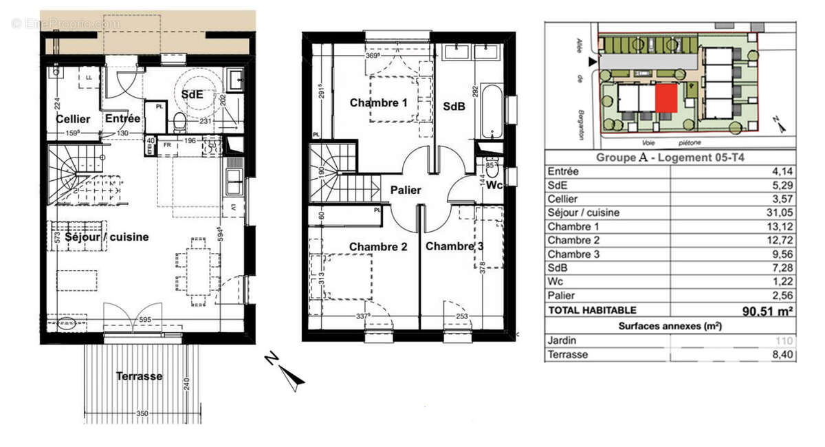
Maison 91 m² à Saint-Jean-D'illac

— Saint-Jean-D'illac 33127 —
365 000 €
91 m² / 110 m²
4 pièces
jardin

Iad France - Thibaut Faure vous propose : St Jean D'illac - Le LasA proximité immédiate des écoles, dans un environnement résidentiel et calme. Maison de 91 m² env avec un jardin de 110 m² env + terrasse Elle se compose rdc, d'une entrée, un cellier, une salle d'eau avec wc, une pièce de vie avec salon-séjour ouvert sur cuisine. À l'étage dégagement, 3 chambres, salle de bain et wc indépendant. La presente annonce immobiliere vise 3 lots situés dans une copropriété de 21 lots au total et ne faisant l'objet d'aucune procédure en cours citée à l'article L. 721-1 du code de la construction et de l'habitation. Montant moyen mensuel de charges déclaré par le vendeur : 70¤ par mois (soit 840 ¤ annuel). Honoraires d'agence à la charge du vendeur. Bien non soumis au DPE. Les informations sur les risques auxquels ce bien est exposé, y compris l'obligation légale de débroussaillement, sont disponibles sur le site Géorisques : http://www.georisques.gouv.fr.La présente annonce immobilière a été rédigée sous la responsabilité éditoriale de M Thibaut Faure mandataire indépendant en immobilier (sans détention de fonds), agent commercial de la SAS I@D France immatriculé au RSAC de bordeaux sous le numéro 804099117, titulaire de la carte de démarchage immobilier pour le compte de la société I@D France SAS.Informations LOI ALUR : Soumis au régime de copropriété. Nombre de lots : 21. Quote part annuelle(moyenne) : 840 euros. Honoraires charge vendeur. (gedeon_6727_32203301)
Voir plus

Référence: 1892006
Bien en copropriété. Nombre de lots : 21. Charges de copropriété : 840 €.
Honoraires à la charge du vendeur.
Barème des honoraires
Photo 1 - Maison à SAINT-JEAN-D'ILLAC
Photo 1
Photo 2 - Maison à SAINT-JEAN-D'ILLAC
Photo 2
Géorisques

Les informations sur les risques auxquels ce bien est exposé sont disponibles sur le site Géorisques : www.georisques.gouv.fr

Ce site est protégé par hCaptcha Politique de confidentialité et Conditions d’utilisation s’appliquent.

En poursuivant votre navigation sans modifier vos paramètres, vous acceptez l'utilisation de cookies susceptibles de réaliser des statistiques de visite. Cliquez ici pour plus d'informations