Bénéficiez des services de nos partenaires locaux soigneusement sélectionnés
pour vous accompagner dans votre parcours d'achat immobilier

Maison 138 m² à Yerres

— Yerres 91330 —
335 000 €
138 m² / 668 m²
6 pièces
parkingbalcon/terrassejardin

Nos partenaires locaux
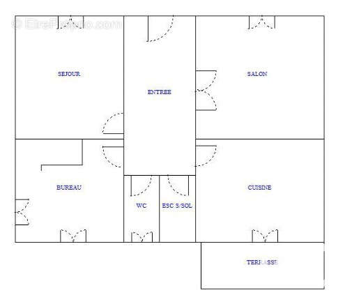
Iad France - Scarlett Noël vous propose : Cette grande maison en pierres de 1951 est idéalement située : à quelques minutes à pied de la gare de Yerres, de place Gambetta, des commerces et des écoles. Elle est bâtie sur un beau terrain de 668 m², elle nécessite une rénovation globale pour la remettre au goût du jour. Elle serait idéale pour une grande famille, une collocation intergénérationnelle ou des investisseurs, car elle est facilement divisible. En effet, la propriété comprend deux portails et la pièce menant à l'étage dispose d'un accès direct sur l'extérieur. Le rez-de-chaussée dispose d'une entrée desservant le salon, le séjour avec sa cheminée, la cuisine et sa terrasse, des WC ainsi qu'un bureau donnant accès à l'escalier. Ce niveau avec une très belle hauteur sous plafond est traversant, lumineuxL'étage offre trois grandes chambres, un bureau, des WC ainsi qu'une salle de bains. Le bien dispose d'un sous-sol total dont une partie en rez-de-jardin qui fût habité (salle de bains à rénover...) ainsi que d'une partie indépendante qui, elle aussi, fût par le passé aménagée en studio. Une dalle permet de stationnée un véhicule et offre un espace de stockage. Honoraires d'agence à la charge du vendeur. Information d'affichage énergétique sur ce bien : classe ENERGIE G indice 470 et classe CLIMAT C indice 15. Les informations sur les risques auxquels ce bien est exposé, y compris l'obligation légale de débroussaillement, sont disponibles sur le site Géorisques : http://www.georisques.gouv.fr.La présente annonce immobilière a été rédigée sous la responsabilité éditoriale de Mme Scarlett Noël mandataire indépendant en immobilier (sans détention de fonds), agent commercial de la SAS I@D France immatriculé au RSAC de EVRY sous le numéro 848340816, titulaire de la carte de démarchage immobilier pour le compte de la société I@D France SAS.Informations LOI ALUR : Honoraires charge vendeur. (gedeon_6727_32214235)
Voir plus

Référence: 1892669
Honoraires à la charge du vendeur.
Barème des honoraires
DPE
A
B
C
D
E
F
G
GES
A
B
C
D
E
F
G
Photo 1 - Maison à YERRES
Photo 1
Photo 2 - Maison à YERRES
Photo 2
Photo 3 - Maison à YERRES
Photo 3
Photo 4 - Maison à YERRES
Photo 4
Photo 5 - Maison à YERRES
Photo 5
Photo 6 - Maison à YERRES
Photo 6
Photo 7 - Maison à YERRES
Photo 7
Photo 8 - Maison à YERRES
Photo 8
Photo 9 - Maison à YERRES
Photo 9
Géorisques

Les informations sur les risques auxquels ce bien est exposé sont disponibles sur le site Géorisques : www.georisques.gouv.fr

Ce site est protégé par hCaptcha Politique de confidentialité et Conditions d’utilisation s’appliquent.

En poursuivant votre navigation sans modifier vos paramètres, vous acceptez l'utilisation de cookies susceptibles de réaliser des statistiques de visite. Cliquez ici pour plus d'informations