Appartement 37 m² à Chennevieres-Sur-Marne

— Chennevieres-Sur-Marne 94430 —
189 000 €
37 m²
2 pièces
parkingascenseur

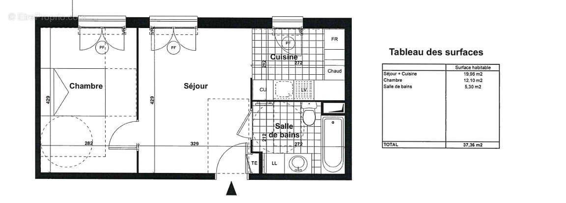
Iad France - Aurelia Fernandes vous propose : À Chennevières sur Marne, un appartement de type 2 pièces dans une résidence construite en 2021, au 1er étage sur 2 avec ascenseur, comprenant : pièce de vie, cuisine aménagée et équipée, chambre avec placards (12 m²) et salle de bains avec wc. Une place de stationnement en sous-sol complète ce bien. Des informations ou visite ? N'hésitez pas à me contacter ! La presente annonce immobiliere vise 2 lots situés dans une copropriété de 79 lots au total et ne faisant l'objet d'aucune procédure en cours citée à l'article L. 721-1 du code de la construction et de l'habitation. Montant moyen mensuel de charges déclaré par le vendeur : 105¤ par mois (soit 1260 ¤ annuel). Honoraires d'agence à la charge du vendeur. Information d'affichage énergétique sur ce bien : classe ENERGIE C indice 86 et classe CLIMAT C indice 18. Les informations sur les risques auxquels ce bien est exposé, y compris l'obligation légale de débroussaillement, sont disponibles sur le site Géorisques : http://www.georisques.gouv.fr.La présente annonce immobilière a été rédigée sous la responsabilité éditoriale de Mme Aurelia Fernandes mandataire indépendant en immobilier (sans détention de fonds), agent commercial de la SAS I@D France immatriculé au RSAC de creteil sous le numéro 538327040, titulaire de la carte de démarchage immobilier pour le compte de la société I@D France SAS.Informations LOI ALUR : Soumis au régime de copropriété. Nombre de lots : 79. Quote part annuelle(moyenne) : 1260 euros. Honoraires charge vendeur. (gedeon_6727_32219533)
Voir plus

Référence: 1895523
Bien en copropriété. Nombre de lots : 79. Charges de copropriété : 1260 €.
Honoraires à la charge du vendeur.
Barème des honoraires
DPE
A
B
C
D
E
F
G
GES
A
B
C
D
E
F
G
Photo 1 - Appartement à CHENNEVIERES-SUR-MARNE
Photo 1
Photo 2 - Appartement à CHENNEVIERES-SUR-MARNE
Photo 2
Photo 3 - Appartement à CHENNEVIERES-SUR-MARNE
Photo 3
Photo 4 - Appartement à CHENNEVIERES-SUR-MARNE
Photo 4
Photo 5 - Appartement à CHENNEVIERES-SUR-MARNE
Photo 5
Photo 6 - Appartement à CHENNEVIERES-SUR-MARNE
Photo 6
Photo 7 - Appartement à CHENNEVIERES-SUR-MARNE
Photo 7
Photo 8 - Appartement à CHENNEVIERES-SUR-MARNE
Photo 8
Géorisques

Les informations sur les risques auxquels ce bien est exposé sont disponibles sur le site Géorisques : www.georisques.gouv.fr

Ce site est protégé par hCaptcha Politique de confidentialité et Conditions d’utilisation s’appliquent.

En poursuivant votre navigation sans modifier vos paramètres, vous acceptez l'utilisation de cookies susceptibles de réaliser des statistiques de visite. Cliquez ici pour plus d'informations