Maison 110 m² à Creon

— Creon 33670 —
360 000 €
110 m² / 400 m²
5 pièces
jardin

Iad France - Mikael Carrilho vous propose : Nouveauté - Exclusivité : Maison neuve de plain-pied 110 m² + garage 20 m² - Lotissement La Tuileries.

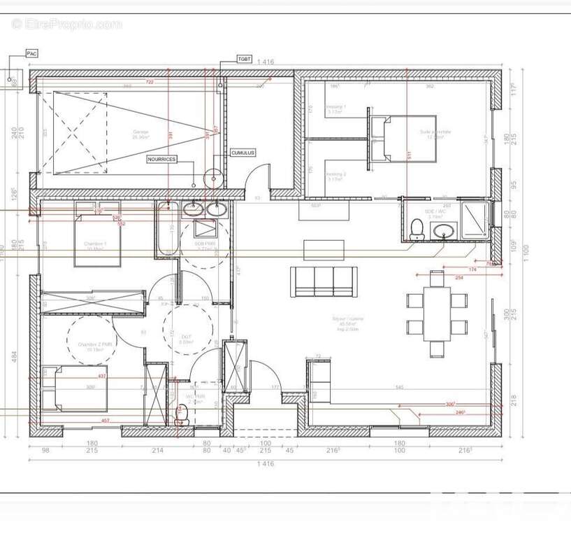
Mikaël Carrilho vous propose en exclusivité cette maison RE 2020 de plain-pied, actuellement en cours de construction, idéalement située dans le nouveau lotissement La Tuileries. La livraison est prévue pour avril / mai 2026, avec les garanties décennales.

D'une surface de 110 m², elle offrira :
oUne entrée donnant sur une vaste pièce de vie lumineuse avec cuisine ouverte,
oUne buanderie prévue pour lave-linge et sèche-linge,
oTrois chambres, dont une suite parentale avec double dressing, salle d'eau et WC privatif,
oUne salle de bain,
oUn WC indépendant,
oUn garage isolé et carrelé de 20 m².

Le tout sera implanté sur une parcelle de 400 m², dans un secteur recherché, proche du centre, des écoles et des transports (bus), offrant un quotidien pratique et agréable.

La maison sera livrée clé en main, hors cuisine équipée et revêtement de terrasse, vous laissant la possibilité de personnaliser ces espaces selon vos envies.

Pour plus de renseignements ou pour organiser une visite, n'hésitez pas à me contacter.
C'est avec plaisir que je vous accompagnerai dans votre projet.


Honoraires d'agence à la charge du vendeur.
Bien non soumis au DPE. Les informations sur les risques auxquels ce bien est exposé, y compris l'obligation légale de débroussaillement, sont disponibles sur le site Géorisques : http://www.georisques.gouv.fr.
La présente annonce immobilière a été rédigée sous la responsabilité éditoriale de M Mikael Carrilho mandataire indépendant en immobilier (sans détention de fonds), agent commercial de la SAS I@D France immatriculé au RSAC de Bordeaux sous le numéro 495153405, titulaire de la carte de démarchage immobilier pour le compte de la société I@D France SAS.Informations LOI ALUR : Honoraires charge vendeur. (gedeon_6727_32310078)
Voir plus

Référence: 1907818
Honoraires à la charge du vendeur.
Barème des honoraires
Photo 1 - Maison à CREON
Photo 1
Photo 2 - Maison à CREON
Photo 2
Photo 3 - Maison à CREON
Photo 3
Photo 4 - Maison à CREON
Photo 4
Géorisques

Les informations sur les risques auxquels ce bien est exposé sont disponibles sur le site Géorisques : www.georisques.gouv.fr

Ce site est protégé par hCaptcha Politique de confidentialité et Conditions d’utilisation s’appliquent.

En poursuivant votre navigation sans modifier vos paramètres, vous acceptez l'utilisation de cookies susceptibles de réaliser des statistiques de visite. Cliquez ici pour plus d'informations