Bénéficiez des services de nos partenaires locaux soigneusement sélectionnés
pour vous accompagner dans votre parcours d'achat immobilier

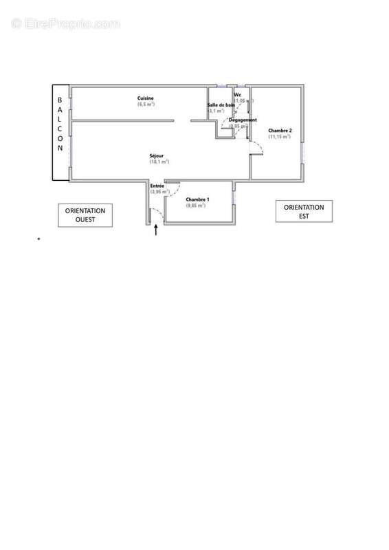
Appartement 55 m² à Limeil-Brevannes

— Limeil-Brevannes 94450 —
170 000 €
55 m²
3 pièces
balcon/terrasse

Nos partenaires locaux
Iad France - Myriam MICELI vous propose : AU COEUR de Limeil Brévannes, dans une RÉSIDENCE FERMÉE et SÉCURISÉE de 3 ÉTAGES, AU CALME à proximité des commerces et des écoles. Venez découvrir ce SPACIEUX appartement 3 pièces proposant une entrée avec GRANDS PLACARDS, une pièce de vie avec CUISINE SEMI-OUVERTE FONCTIONNELLE et RÉCENTE, 2 chambres avec PLACARDS, une salle de bains avec ouverture et un WC séparé. La pièce de vie ouvre sur UN BALCON équipé d'un STORE. UNE CAVE complète cet appartement et possibilité de SE GARER dans la résidence. Les charges de copropriété comprennent LE CHAUFFAGE COLLECTIF, l'eau FROIDE et les frais liés à la copropriété. * SES ATOUTS * : NOMBREUX RANGEMENTS, appartement FONCTIONNEL et LUMINEUX, CHAUDIÈRE GAZ COLLECTIVE CHANGÉE en 2022, CUISINE et ELECTROMENEGER de 2021, BALLON D'EAU CHAUDE ÉLECTRIQUE changé en 2023, fenêtres PVC DOUBLE VITRAGE. À visiter sans tarder ! Conseillère en immobilier disponible 7j / 7La presente annonce immobiliere vise 2 lots situés dans une copropriété de 135 lots au total et ne faisant l'objet d'aucune procédure en cours citée à l'article L. 721-1 du code de la construction et de l'habitation. Montant moyen mensuel de charges déclaré par le vendeur : 213.33¤ par mois (soit 2560 ¤ annuel). Honoraires d'agence à la charge du vendeur. Information d'affichage énergétique sur ce bien : classe ENERGIE E indice 322 et classe CLIMAT E indice 57. Les informations sur les risques auxquels ce bien est exposé, y compris l'obligation légale de débroussaillement, sont disponibles sur le site Géorisques : http://www.georisques.gouv.fr.La présente annonce immobilière a été rédigée sous la responsabilité éditoriale de Mme Myriam MICELI mandataire indépendant en immobilier (sans détention de fonds), agent commercial de la SAS I@D France immatriculé au RSAC de CRETEIL sous le numéro 893685313, titulaire de la carte de démarchage immobilier pour le compte de la société I@D France SAS.Informations LOI ALUR : Soumis au régime de copropriété. Nombre de lots : 135. Quote part annuelle(moyenne) : 2560 euros. Honoraires charge vendeur. (gedeon_6727_32327009)
Voir plus

Référence: 1908932
Bien en copropriété. Nombre de lots : 135. Charges de copropriété : 2560 €.
Honoraires à la charge du vendeur.
Barème des honoraires
DPE
A
B
C
D
E
F
G
GES
A
B
C
D
E
F
G
Photo 1 - Appartement à LIMEIL-BREVANNES
Photo 1
Photo 2 - Appartement à LIMEIL-BREVANNES
Photo 2
Photo 3 - Appartement à LIMEIL-BREVANNES
Photo 3
Photo 4 - Appartement à LIMEIL-BREVANNES
Photo 4
Photo 5 - Appartement à LIMEIL-BREVANNES
Photo 5
Photo 6 - Appartement à LIMEIL-BREVANNES
Photo 6
Photo 7 - Appartement à LIMEIL-BREVANNES
Photo 7
Photo 8 - Appartement à LIMEIL-BREVANNES
Photo 8
Géorisques

Les informations sur les risques auxquels ce bien est exposé sont disponibles sur le site Géorisques : www.georisques.gouv.fr

Ce site est protégé par hCaptcha Politique de confidentialité et Conditions d’utilisation s’appliquent.

En poursuivant votre navigation sans modifier vos paramètres, vous acceptez l'utilisation de cookies susceptibles de réaliser des statistiques de visite. Cliquez ici pour plus d'informations