Maison 120 m² à Ploeren

— Ploeren 56880 —
465 000 €
120 m² / 660 m²
1 pièce
jardin

Iad France - Melissa Levanen vous propose : Ploeren en LIMITE DE VANNES

- Maison hors d'eau, hors d'air à agencer à votre goût !
- Quartier résidentiel,
- Proche des commerces et des axes routiers.

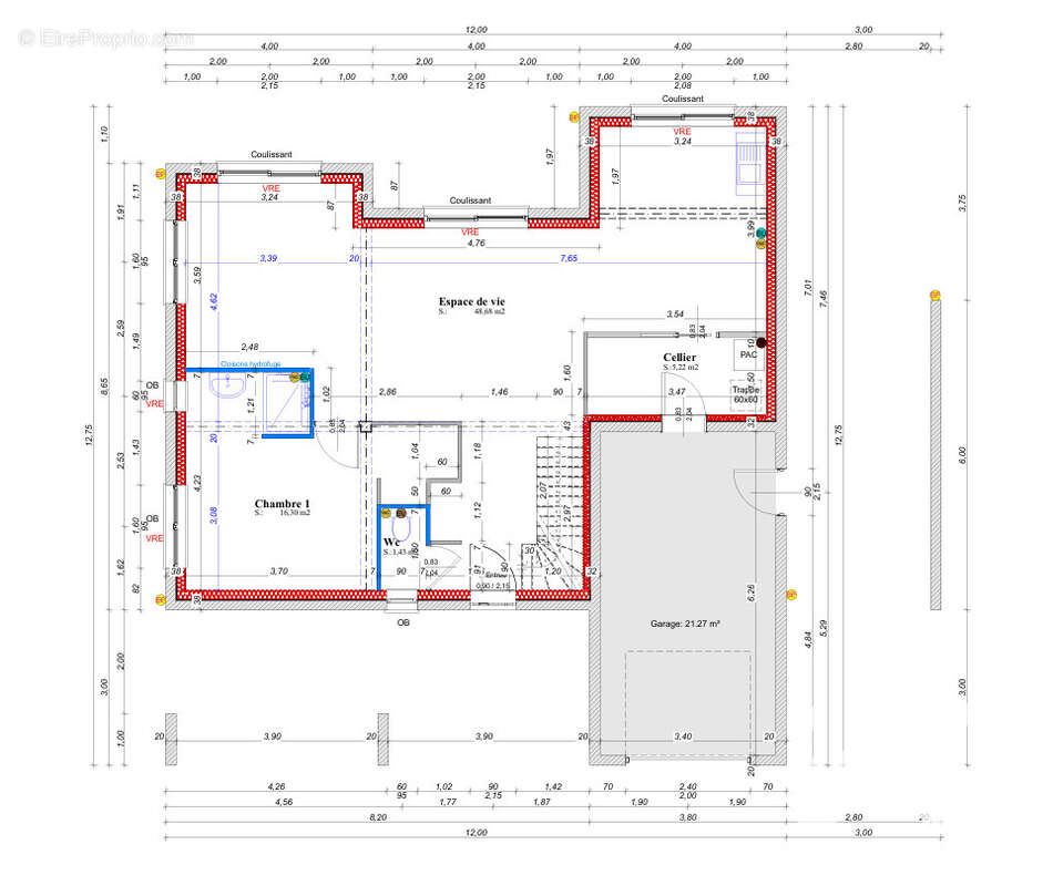
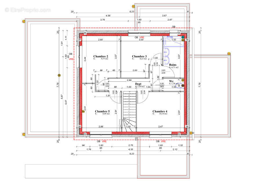
Maison construite sur la base des plans présentés en photos, comprenant cinq chambres dont une suite parentale au rez-de-chaussée. Une pièce de vie d'environ 50 m² avec séjour et cuisine ouverte ainsi qu'un garage attenant.

Profitez de cette opportunité avec la liberté d'aménager les espaces selon vos besoins et votre style
Contactez-moi dès aujourd'hui pour plus d'informations et pour visiter ce bien plein de possibilités.


Honoraires d'agence à la charge du vendeur.
Bien non soumis au DPE. Les informations sur les risques auxquels ce bien est exposé, y compris l'obligation légale de débroussaillement, sont disponibles sur le site Géorisques : http://www.georisques.gouv.fr.
La présente annonce immobilière a été rédigée sous la responsabilité éditoriale de Mme Melissa Levanen mandataire indépendant en immobilier (sans détention de fonds), agent commercial de la SAS I@D France immatriculé au RSAC de Vannes sous le numéro 832433254, titulaire de la carte de démarchage immobilier pour le compte de la société I@D France SAS.Informations LOI ALUR : Honoraires charge vendeur. (gedeon_6727_32348693)
Voir plus

Référence: 1903688
Honoraires à la charge du vendeur.
Barème des honoraires
Photo 1 - Maison à PLOEREN
Photo 1
Photo 2 - Maison à PLOEREN
Photo 2
Photo 3 - Maison à PLOEREN
Photo 3
Photo 4 - Maison à PLOEREN
Photo 4
Photo 5 - Maison à PLOEREN
Photo 5
Photo 6 - Maison à PLOEREN
Photo 6
Photo 7 - Maison à PLOEREN
Photo 7
Géorisques

Les informations sur les risques auxquels ce bien est exposé sont disponibles sur le site Géorisques : www.georisques.gouv.fr

Ce site est protégé par hCaptcha Politique de confidentialité et Conditions d’utilisation s’appliquent.

En poursuivant votre navigation sans modifier vos paramètres, vous acceptez l'utilisation de cookies susceptibles de réaliser des statistiques de visite. Cliquez ici pour plus d'informations