Bénéficiez des services de nos partenaires locaux soigneusement sélectionnés
pour vous accompagner dans votre parcours d'achat immobilier

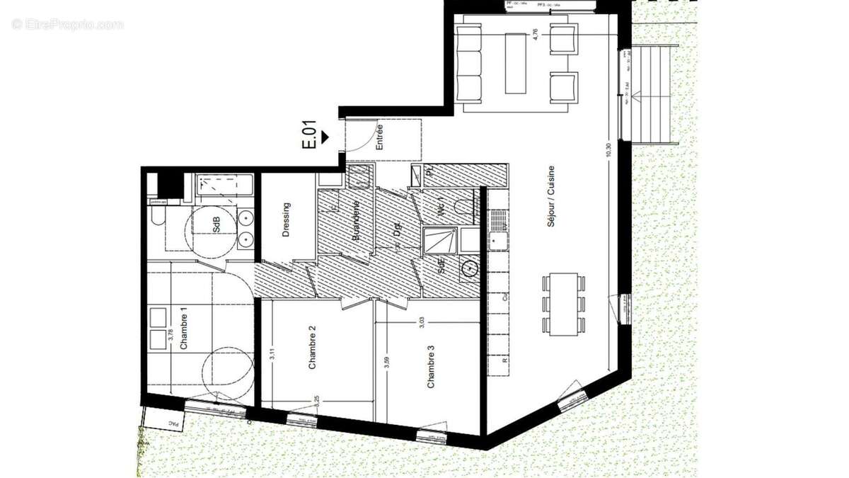
Appartement 114 m² à Marseille-8e

— Marseille-8e 13008 —
965 000 €
114 m²
4 pièces
parkingbalcon/terrasseascenseur

Nos partenaires locaux
Iad France - Sarah Rozière ([Coordonnées masquées]) vous propose : Appartement T4 avec jardin à Marseille. Située sur la mythique avenue du Prado, la résidence La Marsa, signée PietriArchitectes, s'inspire des demeures prestigieuses de la fin du XIX ème siècle et de l'esprit des villages balnéaires méditerranéens. Son architecture blanche et lumineuse, ponctuée de larges terrasses filantes et de jardins suspendus, offre un cadre de vie iconique, à proximité immédiate du Parc Borély, des plages et des plus belles adresses du 8 ème arrondissement. Disponible 2026. Un appartement raffiné : Situé au rez-de-jardin, cet appartement T4 de 114 m² environ habitables se prolonge par un extérieur de 368 m² environ.- Séjour / cuisine de 48 m² environ.- Trois chambres confortables.- Salle d'eau et salle de bains modernes.- Un dressing et une buanderie.- Annexes : deux garages. De belles prestations : - Résidence sécurisée et intimiste.- Prestations et finitions haut de gamme.- Chauffage et rafraîchissement par équipements performants.- Menuiseries de grande qualité avec volets roulants motorisés.- Garages fermés en sous-sol. L'art de vivre sur l'avenue du Prado : - À deux pas du Parc Borély et des plages du Prado.- Quartier résidentiel prisé, élégant et arboré.- Proximité immédiate de restaurants renommés, commerces raffinés et galeries d'art.- Accès rapide aux établissements scolaires d'excellence et aux grands axes.- Un équilibre parfait entre sérénité méditerranéenne et dynamisme urbain. N'hésitez pas à me contacter pour plus d'informations ou pour un accompagnement sur mesure. Honoraires d'agence à la charge du vendeur. Bien non soumis au DPE. Les informations sur les risques auxquels ce bien est exposé sont disponibles sur le site Géorisques : www.georisques.gouv.fr. La présente annonce immobilière a été rédigée sous la responsabilité éditoriale de Mlle Sarah Rozière EI (ID 83696), mandataire indépendant en immobilier (sans détention de fonds), agent commercial de la SAS I@D France immatriculé au RSAC de Clermont-Ferrand sous le numéro 978616993, titulaire de la carte de démarchage immobilier pour le compte de la société I@D France SAS. Retrouvez tous nos biens sur notre site internet. www.iadfrance.fr.Informations LOI ALUR : Honoraires charge vendeur. (gedeon_6727_32348791)
Voir plus

Référence: 1908524-3
Honoraires à la charge du vendeur.
Barème des honoraires
Photo 1 - Appartement à MARSEILLE-8E
Photo 1
Photo 2 - Appartement à MARSEILLE-8E
Photo 2
Photo 3 - Appartement à MARSEILLE-8E
Photo 3
Photo 4 - Appartement à MARSEILLE-8E
Photo 4
Photo 5 - Appartement à MARSEILLE-8E
Photo 5
Photo 6 - Appartement à MARSEILLE-8E
Photo 6
Photo 7 - Appartement à MARSEILLE-8E
Photo 7
Photo 8 - Appartement à MARSEILLE-8E
Photo 8
Photo 9 - Appartement à MARSEILLE-8E
Photo 9
Géorisques

Les informations sur les risques auxquels ce bien est exposé sont disponibles sur le site Géorisques : www.georisques.gouv.fr

Ce site est protégé par hCaptcha Politique de confidentialité et Conditions d’utilisation s’appliquent.

En poursuivant votre navigation sans modifier vos paramètres, vous acceptez l'utilisation de cookies susceptibles de réaliser des statistiques de visite. Cliquez ici pour plus d'informations