Maison 120 m² à Saint-Vallier

— Saint-Vallier 26240 —
299 000 €
120 m² / 800 m²
5 pièces
balcon/terrassejardin

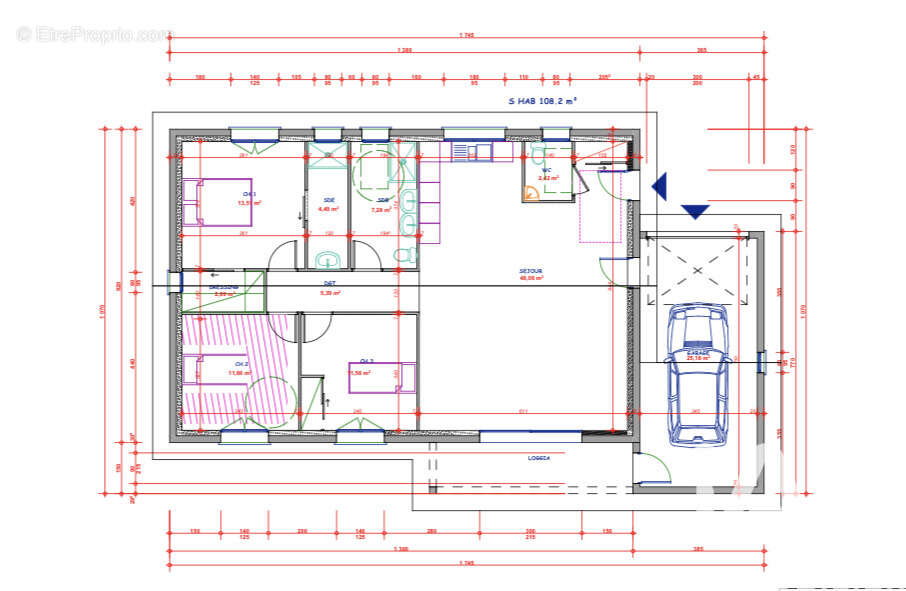
Iad France - Audrey Gillot vous propose : À VENDRE - Saint-Vallier (26240) - Villa de plain-pied RE2020 de 120 m² environ sur un terrain PLAT de 800 m² de idéalement située sur les hauteurs avec une MAGNIFIQUE VUE dégagée. À seulement 5 min de toutes commodités et grands axes routiers (N7, gare, commerces, écoles. ) et située dans un environnement CALME et résidentiel, cette villa offre des prestations de qualité conforme à la réglementation RE2020 (haute performance énergétique). Elle sera composée de : Une GRANDE et LUMINEUSE pièce à vivre TRAVERSANTE (environ 50 m²) avec cuisine aménagée et équipée donnant sur terrasse et jardin, 3 chambres dont une suite parentale de 20 m² avec son dressing et sa salle d'eau privative, une salle de bains / wc, wc, rangements intégrés, un garage de 25 m² avec porte motorisée et coin buanderie (garage DOUBLE réalisable en option).Chauffage : Pompe à chaleur gainable et réversible pour un confort optimal été comme hiver. Vous pourrez choisir selon vos goûts différents modèles de : cuisine, carrelage 60×120 cm, effet parquet pour les chambres, portes de fin de chantier. Le bien est en auto-construction avec garantie décennale des artisans. Pour plus d'informations, contactez-nous par téléphone ! Honoraires d'agence à la charge du vendeur. Bien non soumis au DPE. Les informations sur les risques auxquels ce bien est exposé, y compris l'obligation légale de débroussaillement, sont disponibles sur le site Géorisques : http://www.georisques.gouv.fr.La présente annonce immobilière a été rédigée sous la responsabilité éditoriale de Mme Audrey Gillot mandataire indépendant en immobilier (sans détention de fonds), agent commercial de la SAS I@D France immatriculé au RSAC de ROMANS sous le numéro 890101694, titulaire de la carte de démarchage immobilier pour le compte de la société I@D France SAS.Informations LOI ALUR : Honoraires charge vendeur. (gedeon_6727_32371277)
Voir plus

Référence: 1911162
Honoraires à la charge du vendeur.
Barème des honoraires
Photo 1 - Maison à SAINT-VALLIER
Photo 1
Photo 2 - Maison à SAINT-VALLIER
Photo 2
Photo 3 - Maison à SAINT-VALLIER
Photo 3
Photo 4 - Maison à SAINT-VALLIER
Photo 4
Photo 5 - Maison à SAINT-VALLIER
Photo 5
Photo 6 - Maison à SAINT-VALLIER
Photo 6
Photo 7 - Maison à SAINT-VALLIER
Photo 7
Photo 8 - Maison à SAINT-VALLIER
Photo 8
Photo 9 - Maison à SAINT-VALLIER
Photo 9
Géorisques

Les informations sur les risques auxquels ce bien est exposé sont disponibles sur le site Géorisques : www.georisques.gouv.fr

Ce site est protégé par hCaptcha Politique de confidentialité et Conditions d’utilisation s’appliquent.

En poursuivant votre navigation sans modifier vos paramètres, vous acceptez l'utilisation de cookies susceptibles de réaliser des statistiques de visite. Cliquez ici pour plus d'informations