Bénéficiez des services de nos partenaires locaux soigneusement sélectionnés
pour vous accompagner dans votre parcours d'achat immobilier

Appartement 117 m² à Treguier

— Treguier 22220 —
262 000 €
117 m²

Nos partenaires locaux
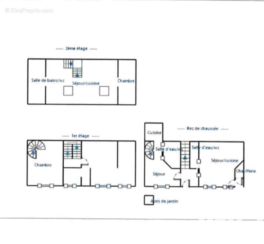
Iad France - Pauline CARVENNEC vous propose : Bienvenue à Tréguier, au cOEur de la Bretagne, où l'histoire et le charme se rencontrent. Cette authentique bâtisse en pierre de 117 m², répartis sur trois niveaux, est située au centre de cette « Petite Cité de Caractère ».Cette monopropriété se compose de quatre appartements : - Au rez-de-chaussée : Un studio entièrement rénové.- En duplex : Un T2 à finir de rénover, actuellement occupé par un locataire à l'année.- Au premier étage : Un studio lumineux avec pierres apparentes et un bel espace nuit.- Sous les toits : Un dernier studio comprenant une salle de bain, un coin nuit et une agréable pièce de vie. L'ensemble du bâtiment dispose de chauffages électriques individuels, ainsi que de compteurs d'eau et d'électricité indépendants pour chaque lot. Côté entretien, des travaux de toiture ont été réalisés récemment (faîtage et démoussage).Venez découvrir le potentiel de cet immeuble plein de cachet. Honoraires d'agence à la charge du vendeur. Information d'affichage énergétique sur ce bien : classe ENERGIE D indice 223 et classe CLIMAT B indice 7. Les informations sur les risques auxquels ce bien est exposé, y compris l'obligation légale de débroussaillement, sont disponibles sur le site Géorisques : http://www.georisques.gouv.fr.La présente annonce immobilière a été rédigée sous la responsabilité éditoriale de Mme Pauline CARVENNEC mandataire indépendant en immobilier (sans détention de fonds), agent commercial de la SAS I@D France immatriculé au RSAC de saint-bireuc sous le numéro 850439480, titulaire de la carte de démarchage immobilier pour le compte de la société I@D France SAS.Informations LOI ALUR : Honoraires charge vendeur. (gedeon_6727_32455247)
Voir plus

Référence: 1922695
Honoraires à la charge du vendeur.
Barème des honoraires
DPE
A
B
C
D
E
F
G
GES
A
B
C
D
E
F
G
Photo 1 - Appartement à TREGUIER
Photo 1
Photo 2 - Appartement à TREGUIER
Photo 2
Photo 3 - Appartement à TREGUIER
Photo 3
Photo 4 - Appartement à TREGUIER
Photo 4
Photo 5 - Appartement à TREGUIER
Photo 5
Photo 6 - Appartement à TREGUIER
Photo 6
Photo 7 - Appartement à TREGUIER
Photo 7
Photo 8 - Appartement à TREGUIER
Photo 8
Photo 9 - Appartement à TREGUIER
Photo 9
Géorisques

Les informations sur les risques auxquels ce bien est exposé sont disponibles sur le site Géorisques : www.georisques.gouv.fr

Ce site est protégé par hCaptcha Politique de confidentialité et Conditions d’utilisation s’appliquent.

En poursuivant votre navigation sans modifier vos paramètres, vous acceptez l'utilisation de cookies susceptibles de réaliser des statistiques de visite. Cliquez ici pour plus d'informations