Bénéficiez des services de nos partenaires locaux soigneusement sélectionnés
pour vous accompagner dans votre parcours d'achat immobilier

Maison 162 m² à Arnas

— Arnas 69400 —
385 000 €
162 m² / 847 m²
8 pièces
jardin

Nos partenaires locaux
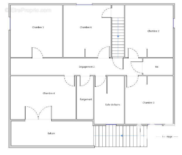
Iad France - Karine Saignant vous propose : Maison beaujolaise familiale de 7 chambresSituée à 10 minutes à pied du centre d'Arnas, de ses commerces, écoles et commodités, et bénéficiant d'un accès rapide à l'A6, cette maison de style beaujolais construite en 1982 offre un cadre de vie idéal, alliant confort et praticité. Édifiée sur un terrain clos, plat et piscinable de 847 m², la maison développe une surface habitable d'environ 162 m² et séduit par ses volumes et son agencement adapté à la vie de famille. Au rez-de-chaussée, vous découvrirez une belle pièce de vie chaleureuse et conviviale d'environ 53 m² propice aux moments de partage. Ce niveau accueille également un espace parental complet, comprenant une chambre, un bureau, une salle d'eau, un WC ainsi qu'un coin buanderie, offrant confort et fonctionnalité au quotidien. À l'étage, l'espace nuit se compose de quatre chambres, d'un bureau, d'une salle de bains familiale équipée d'une baignoire, d'une douche et de deux vasques, ainsi que d'un WC indépendant. La maison est très bien entretenue et dispose : double vitrage, climatisation dans le séjour, chaudière récente, ainsi qu'un garage permettant le stationnement d'un véhicule avec espace de stockage et coin atelier. Une maison familiale agréable et soignée, idéalement située, à découvrir sans tarder. Honoraires d'agence à la charge du vendeur. Information d'affichage énergétique sur ce bien : classe ENERGIE D indice 158 et classe CLIMAT D indice 33. Les informations sur les risques auxquels ce bien est exposé, y compris l'obligation légale de débroussaillement, sont disponibles sur le site Géorisques : http://www.georisques.gouv.fr.La présente annonce immobilière a été rédigée sous la responsabilité éditoriale de Mme Karine Saignant mandataire indépendant en immobilier (sans détention de fonds), agent commercial de la SAS I@D France immatriculé au RSAC de VILLEFRANCHE TARARE sous le numéro 930200837, titulaire de la carte de démarchage immobilier pour le compte de la société I@D France SAS.Informations LOI ALUR : Honoraires charge vendeur. (gedeon_6727_32501365)
Voir plus

Référence: 1928230
Honoraires à la charge du vendeur.
Barème des honoraires
DPE
A
B
C
D
E
F
G
GES
A
B
C
D
E
F
G
Photo 1 - Maison à ARNAS
Photo 1
Photo 2 - Maison à ARNAS
Photo 2
Photo 3 - Maison à ARNAS
Photo 3
Photo 4 - Maison à ARNAS
Photo 4
Photo 5 - Maison à ARNAS
Photo 5
Photo 6 - Maison à ARNAS
Photo 6
Photo 7 - Maison à ARNAS
Photo 7
Photo 8 - Maison à ARNAS
Photo 8
Photo 9 - Maison à ARNAS
Photo 9
Géorisques

Les informations sur les risques auxquels ce bien est exposé sont disponibles sur le site Géorisques : www.georisques.gouv.fr

Ce site est protégé par hCaptcha Politique de confidentialité et Conditions d’utilisation s’appliquent.

En poursuivant votre navigation sans modifier vos paramètres, vous acceptez l'utilisation de cookies susceptibles de réaliser des statistiques de visite. Cliquez ici pour plus d'informations