Bénéficiez des services de nos partenaires locaux soigneusement sélectionnés
pour vous accompagner dans votre parcours d'achat immobilier

Appartement 38 m² à Angers

— Angers 49100 —
165 792 €
38 m²
2 pièces
parkingbalcon/terrasseascenseur

Nos partenaires locaux
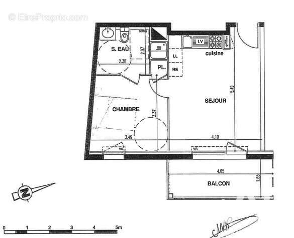
Iad France - Hélène Grard vous propose : À Angers, dans un secteur recherché pour son calme et son cadre de vie, découvrez cet appartement T2 de 38,36 m², situé au sein d'une résidence récente de 2012 (Bouygues Immobilier).La résidence est sécurisée et dispose d'un ascenseur. L'accès aux parties communes (intérieur comme extérieur) se fait via interphone et digicode. Le parking est également sécurisé par digicode. Le quartier, agréable et bien entretenu, offre une bonne desserte par le tramway (secteur Lycée Jean Moulin) et se situe à proximité des bords de Maine, des commerces et des services. L'appartement présente un agencement fonctionnel et un très bon état général, sans travaux à prévoir. La pièce de vie, lumineuse, s'ouvre sur un balcon sans vis-à-vis, avec une vue dégagée en direction de la Maine. Une place de stationnement couverte complète le bien, un atout appréciable dans le secteur. Caractéristiques : ? Résidence récente et sécurisée ? Ascenseur? Appartement moderne et fonctionnel, en très bon état? Sans vis-à-vis, vue dégagée ? Balcon ? Parking couvert sécurisé? Appartement actuellement loué jusqu'en octobre 2026, offrant une sécurité locative immédiate. Un bien idéal pour un investisseur à la recherche d'un placement fiable et pérenne dans un quartier attractif d'Angers ou un premier achat. À découvrir sans tarder. La presente annonce immobiliere vise 2 lots situés dans une copropriété de 212 lots au total et ne faisant l'objet d'aucune procédure en cours citée à l'article L. 721-1 du code de la construction et de l'habitation. Montant moyen mensuel de charges déclaré par le vendeur : 80¤ par mois (soit 960 ¤ annuel). Honoraires d'agence à la charge du vendeur. Information d'affichage énergétique sur ce bien : classe ENERGIE C indice 94 et classe CLIMAT C indice 15. Les informations sur les risques auxquels ce bien est exposé, y compris l'obligation légale de débroussaillement, sont disponibles sur le site Géorisques : http://www.georisques.gouv.fr.La présente annonce immobilière a été rédigée sous la responsabilité éditoriale de Mme Hélène Grard mandataire indépendant en immobilier (sans détention de fonds), agent commercial de la SAS I@D France immatriculé au RSAC de ANGERS sous le numéro 935091439, titulaire de la carte de démarchage immobilier pour le compte de la société I@D France SAS.Informations LOI ALUR : Soumis au régime de copropriété. Nombre de lots : 212. Quote part annuelle(moyenne) : 960 euros. Honoraires charge vendeur. (gedeon_6727_32501469)
Voir plus

Référence: 1928597
Bien en copropriété. Nombre de lots : 212. Charges de copropriété : 960 €.
Honoraires à la charge du vendeur.
Barème des honoraires
DPE
A
B
C
D
E
F
G
GES
A
B
C
D
E
F
G
Photo 1 - Appartement à ANGERS
Photo 1
Photo 2 - Appartement à ANGERS
Photo 2
Photo 3 - Appartement à ANGERS
Photo 3
Photo 4 - Appartement à ANGERS
Photo 4
Photo 5 - Appartement à ANGERS
Photo 5
Photo 6 - Appartement à ANGERS
Photo 6
Photo 7 - Appartement à ANGERS
Photo 7
Photo 8 - Appartement à ANGERS
Photo 8
Géorisques

Les informations sur les risques auxquels ce bien est exposé sont disponibles sur le site Géorisques : www.georisques.gouv.fr

Ce site est protégé par hCaptcha Politique de confidentialité et Conditions d’utilisation s’appliquent.

En poursuivant votre navigation sans modifier vos paramètres, vous acceptez l'utilisation de cookies susceptibles de réaliser des statistiques de visite. Cliquez ici pour plus d'informations