Bénéficiez des services de nos partenaires locaux soigneusement sélectionnés
pour vous accompagner dans votre parcours d'achat immobilier

Maison 131 m² à Villejuif

— Villejuif 94800 —
722 500 €
131 m² / 244 m²
7 pièces
jardin

Nos partenaires locaux
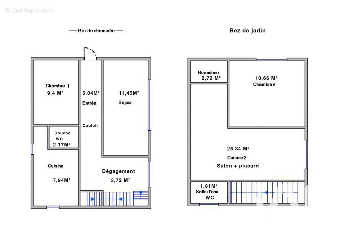
Iad France - Fang Zhang vous propose : Située dans un quartier pavillonnaire prisé de Villejuif (94), cette élégante maison individuelle offre une surface de 131 m², édifiée sur un terrain de 244 m². Elle bénéficie d'un jardin privatif et d'un cadre de vie calme et agréable. À seulement 2 minutes à pied du métro ligne 7, du futur métro ligne 15 et du tramway T7 (station Louis Aragon), avec liaison directe vers l'aéroport d'Orly. Rénovation complète en 2024 - DPE : CComposition du bien : Rez-de-jardin : 1 chambre, une salle d'eau et des WCRez-de-chaussée : séjour lumineux, 1 chambre, cuisine entièrement équipée, WC avec douchePremier étage : 3 chambres avec cuisine, 2 salles d'eau et 2 WC communsCombles aménagés : 1 chambre avec cuisine et WCUne place de parking?, Idéal pour résidence principale, colocation ou investissement locatifTrès fort rendement locatif : ? Location Airbnb autorisée toute l'année, avec un revenu mensuel estimé à 6 500 ¤Proche des universités, établissements scolaires, commerces et transports, à seulement 4 km de Paris - Porte d'ItaliePermis de construire en cours (PCMI) pour un projet d'environ 160 m² bâtis, avec 137 m² constructibles supplémentaires. Honoraires d'agence à la charge du vendeur. Information d'affichage énergétique sur ce bien : classe ENERGIE C indice 147 et classe CLIMAT C indice 29. Les informations sur les risques auxquels ce bien est exposé, y compris l'obligation légale de débroussaillement, sont disponibles sur le site Géorisques : http://www.georisques.gouv.fr.La présente annonce immobilière a été rédigée sous la responsabilité éditoriale de Mme Fang Zhang mandataire indépendant en immobilier (sans détention de fonds), agent commercial de la SAS I@D France immatriculé au RSAC de Créteil sous le numéro 513105601, titulaire de la carte de démarchage immobilier pour le compte de la société I@D France SAS.Informations LOI ALUR : Honoraires charge vendeur. (gedeon_6727_32523140)
Voir plus

Référence: 1932040
Honoraires à la charge du vendeur.
Barème des honoraires
DPE
A
B
C
D
E
F
G
GES
A
B
C
D
E
F
G
Photo 1 - Maison à VILLEJUIF
Photo 1
Photo 2 - Maison à VILLEJUIF
Photo 2
Photo 3 - Maison à VILLEJUIF
Photo 3
Photo 4 - Maison à VILLEJUIF
Photo 4
Photo 5 - Maison à VILLEJUIF
Photo 5
Photo 6 - Maison à VILLEJUIF
Photo 6
Photo 7 - Maison à VILLEJUIF
Photo 7
Photo 8 - Maison à VILLEJUIF
Photo 8
Photo 9 - Maison à VILLEJUIF
Photo 9
Géorisques

Les informations sur les risques auxquels ce bien est exposé sont disponibles sur le site Géorisques : www.georisques.gouv.fr

Ce site est protégé par hCaptcha Politique de confidentialité et Conditions d’utilisation s’appliquent.

En poursuivant votre navigation sans modifier vos paramètres, vous acceptez l'utilisation de cookies susceptibles de réaliser des statistiques de visite. Cliquez ici pour plus d'informations