Bénéficiez des services de nos partenaires locaux soigneusement sélectionnés
pour vous accompagner dans votre parcours d'achat immobilier

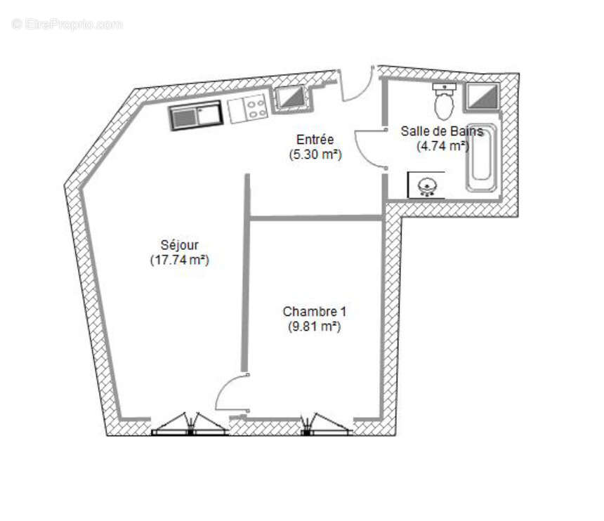
Appartement 37 m² à Creteil

— Creteil 94000 —
195 000 €
37 m²
2 pièces
parkingascenseur

Nos partenaires locaux
Iad France - Fabrice Roth vous propose : Appartement de 2 pièces situé à Créteil dans le quartier recherché du Port. Ce bien de 37,59 m² se trouve au premier étage d'une résidence de 1986 et bénéficie d'une localisation privilégiée.

Atouts :
- Vue dégagée et imprenable sur le lac de Créteil.
- Proximité immédiate du centre commercial Créteil Soleil à 450 m.
- Accès rapide au métro ligne 8 station Préfecture à 750 m.
- Place de parking privative incluse dans la vente.
- Très bon état général, rénové avec des matériaux modernes.
- Excellente performance énergétique avec un diagnostic classé C.
- Chauffage collectif urbain utilisant la géothermie.

* ConsOEurs, confrères d'agences et autres professionnels, je suis ouvert à toutes collaborations et partage inter-agence dans l'intérêt de nos clients. N'hésitez pas à me contacter ! *


La presente annonce immobiliere vise 2 lots situés dans une copropriété de 204 lots au total et faisant l'objet d'une ou plusieurs procédures en cours citée à l'article L. 721-1 du code de la construction et de l'habitation. Montant moyen mensuel de charges déclaré par le vendeur : 137.24¤ par mois (soit 1646.84 ¤ annuel). Honoraires d'agence à la charge du vendeur.
Information d'affichage énergétique sur ce bien : classe ENERGIE C indice 125 et classe CLIMAT B indice 8. Les informations sur les risques auxquels ce bien est exposé, y compris l'obligation légale de débroussaillement, sont disponibles sur le site Géorisques : http://www.georisques.gouv.fr.
La présente annonce immobilière a été rédigée sous la responsabilité éditoriale de M Fabrice Roth mandataire indépendant en immobilier (sans détention de fonds), agent commercial de la SAS I@D France immatriculé au RSAC de evry sous le numéro 514204700, titulaire de la carte de démarchage immobilier pour le compte de la société I@D France SAS.Informations LOI ALUR : Soumis au régime de copropriété. Nombre de lots : 204. Quote part annuelle(moyenne) : 1646.84 euros. Syndic soumis à une procédure d'alerte. Honoraires charge vendeur. (gedeon_6727_32558643)
Voir plus

Référence: 1935071
Bien en copropriété. Nombre de lots : 204. Charges de copropriété : 1646 €.
Honoraires à la charge du vendeur.
Barème des honoraires
DPE
A
B
C
D
E
F
G
GES
A
B
C
D
E
F
G
Photo 1 - Appartement à CRETEIL
Photo 1
Photo 2 - Appartement à CRETEIL
Photo 2
Photo 3 - Appartement à CRETEIL
Photo 3
Photo 4 - Appartement à CRETEIL
Photo 4
Photo 5 - Appartement à CRETEIL
Photo 5
Photo 6 - Appartement à CRETEIL
Photo 6
Photo 7 - Appartement à CRETEIL
Photo 7
Photo 8 - Appartement à CRETEIL
Photo 8
Photo 9 - Appartement à CRETEIL
Photo 9
Géorisques

Les informations sur les risques auxquels ce bien est exposé sont disponibles sur le site Géorisques : www.georisques.gouv.fr

Ce site est protégé par hCaptcha Politique de confidentialité et Conditions d’utilisation s’appliquent.

En poursuivant votre navigation sans modifier vos paramètres, vous acceptez l'utilisation de cookies susceptibles de réaliser des statistiques de visite. Cliquez ici pour plus d'informations