Bénéficiez des services de nos partenaires locaux soigneusement sélectionnés
pour vous accompagner dans votre parcours d'achat immobilier

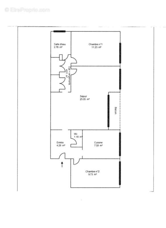
Appartement 66 m² à Limoges

— Limoges 87000 —
121 800 €
66 m²
4 pièces
ascenseur

Nos partenaires locaux
Iad France - Pascal PEROT vous propose : Appartement T4 d'environ 66 m² édifié en centre-ville dans un espace arboré, agencement très lumineux, exposition Sud / Ouest avec loggia et son volet roulant et garage au niveau de la chaussée. Vous aimerez la cuisine équipée et aménagée, la double pièce de vie, la salle d'eau et sa douche à l'italienne et les 2 chambres avec penderies indépendantes. Une cave complète ce patrimoine soumis à la copropriété. Services et mobilités au pied de cet ensemble, à vos visites, Bien à vous

La presente annonce immobiliere vise 3 lots situés dans une copropriété de 296 lots au total et ne faisant l'objet d'aucune procédure en cours citée à l'article L. 721-1 du code de la construction et de l'habitation. Montant moyen mensuel de charges déclaré par le vendeur : 168.67¤ par mois (soit 2024 ¤ annuel). Honoraires d'agence à la charge du vendeur.
Information d'affichage énergétique sur ce bien : classe ENERGIE D indice 197 et classe CLIMAT C indice 28. Les informations sur les risques auxquels ce bien est exposé, y compris l'obligation légale de débroussaillement, sont disponibles sur le site Géorisques : http://www.georisques.gouv.fr.
La présente annonce immobilière a été rédigée sous la responsabilité éditoriale de M Pascal PEROT mandataire indépendant en immobilier (sans détention de fonds), agent commercial de la SAS I@D France immatriculé au RSAC de LIMOGES sous le numéro 500152392, titulaire de la carte de démarchage immobilier pour le compte de la société I@D France SAS.Informations LOI ALUR : Soumis au régime de copropriété. Nombre de lots : 296. Quote part annuelle(moyenne) : 2024 euros. Honoraires charge vendeur. (gedeon_6727_32594813)
Voir plus

Référence: 1941509
Bien en copropriété. Nombre de lots : 296. Charges de copropriété : 2024 €.
Honoraires à la charge du vendeur.
Barème des honoraires
DPE
A
B
C
D
E
F
G
GES
A
B
C
D
E
F
G
Photo 1 - Appartement à LIMOGES
Photo 1
Photo 2 - Appartement à LIMOGES
Photo 2
Photo 3 - Appartement à LIMOGES
Photo 3
Photo 4 - Appartement à LIMOGES
Photo 4
Photo 5 - Appartement à LIMOGES
Photo 5
Photo 6 - Appartement à LIMOGES
Photo 6
Photo 7 - Appartement à LIMOGES
Photo 7
Photo 8 - Appartement à LIMOGES
Photo 8
Géorisques

Les informations sur les risques auxquels ce bien est exposé sont disponibles sur le site Géorisques : www.georisques.gouv.fr

Ce site est protégé par hCaptcha Politique de confidentialité et Conditions d’utilisation s’appliquent.

En poursuivant votre navigation sans modifier vos paramètres, vous acceptez l'utilisation de cookies susceptibles de réaliser des statistiques de visite. Cliquez ici pour plus d'informations